QQ登录

只需一步,快速开始

登录 | 注册 | 找回密码

三维网

 找回密码
 注册

QQ登录

只需一步,快速开始

展开

通知     

查看: 2025|回复: 10
收起左侧

[求助] 大家帮忙看下这张图纸

[复制链接]
发表于 2010-5-8 22:55:38 | 显示全部楼层 |阅读模式 来自: 中国辽宁大连

马上注册,结识高手,享用更多资源,轻松玩转三维网社区。

您需要 登录 才可以下载或查看,没有帐号?注册

x
本帖最后由 wjiafu72 于 2010-5-8 23:04 编辑
3 V+ e+ @3 y9 o' b: G1 q5 j+ }
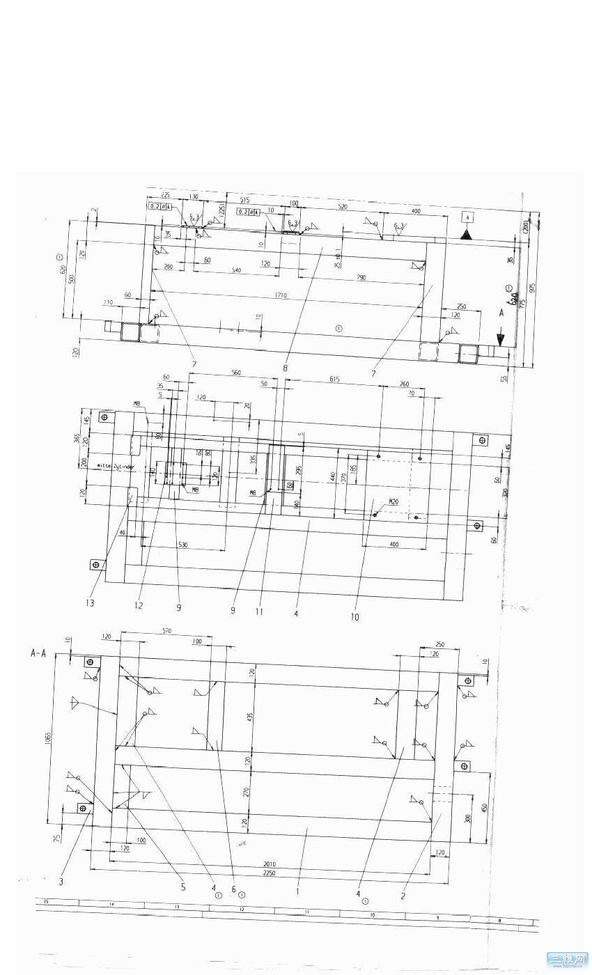
  M: }, i! m  l! _9 N这张图纸有点看不明白?请各位帮忙看一下!谢谢。
% n+ O2 d% a) _" l& h" ?( x第一,底视图最上边人虚线是什么意思?6 p1 P3 o( Q1 a2 I' G0 @& T5 T7 A0 j" e
第二,这张图纸上共有7个圈1是什么意思?第二张照片与第一张是一张图,在第一张的右侧。
照片 001.jpg
无标题.jpg2.jpg
发表于 2010-5-8 23:03:52 | 显示全部楼层 来自: 中国陕西西安
第一次标记,
7 [6 e, z8 e/ j( {5 Q上边不是虚线,是特定指示界线,可能是点划线也可能是其它线型,具体线型选用合符标准就行,
 楼主| 发表于 2010-5-8 23:06:56 | 显示全部楼层 来自: 中国辽宁大连
2# 天地行008
6 s, m( B4 c1 J什么意思?那些圈1呢?
发表于 2010-5-9 22:04:37 | 显示全部楼层 来自: 中国江苏常州
圈是用来区分需要测量的数值的,表示这是符号,有可能是第一次更改标记
头像被屏蔽
发表于 2010-5-10 12:26:51 | 显示全部楼层 来自: 中国辽宁大连
提示: 作者被禁止或删除 内容自动屏蔽
头像被屏蔽
发表于 2010-5-10 12:27:36 | 显示全部楼层 来自: 中国辽宁大连
提示: 作者被禁止或删除 内容自动屏蔽
发表于 2010-5-10 19:54:03 | 显示全部楼层 来自: 中国辽宁阜新
图太不清晰了。+ X- l( v! P9 N8 q/ r: O4 h
最上是一条双点划线,要结合图纸内容来确定属于什么特定线。4 [6 }+ [  p* P# V7 C4 g% w/ w5 ?
7处标记属于同一次进行的。
 楼主| 发表于 2010-5-11 19:53:50 | 显示全部楼层 来自: 中国辽宁大连
谢谢各位了的帮助!
头像被屏蔽
发表于 2010-5-12 00:27:20 | 显示全部楼层 来自: 中国北京
提示: 该帖被管理员或版主屏蔽
发表于 2010-5-12 07:45:29 | 显示全部楼层 来自: 中国黑龙江哈尔滨
圆圈 1 的标注 有可能是有同一个技术要求项,请楼主看看随图的技术资料或图纸上有没有相应的技术要求。
发表于 2010-5-12 17:39:50 | 显示全部楼层 来自: 中国陕西西安
图看不太清,第一张看不是虚线,是点划线。7 @- r+ `$ Y  P% Z
圈1表示方法有两种:更改标记,看标题栏处或者更改说明是否有;测量控制要求标记,看技术要求或者检验要求。
发表回复
您需要登录后才可以回帖 登录 | 注册

本版积分规则


Licensed Copyright © 2016-2020 http://www.3dportal.cn/ All Rights Reserved 京 ICP备13008828号

小黑屋|手机版|Archiver|三维网 ( 京ICP备2023026364号-1 )

快速回复 返回顶部 返回列表