QQ登录

只需一步,快速开始

登录 | 注册 | 找回密码

三维网

 找回密码
 注册

QQ登录

只需一步,快速开始

展开

通知     

查看: 1779|回复: 2
收起左侧

[求助] 管板计算

[复制链接]
发表于 2010-5-19 16:23:18 | 显示全部楼层 |阅读模式 来自: 中国江苏泰州

马上注册,结识高手,享用更多资源,轻松玩转三维网社区。

您需要 登录 才可以下载或查看,没有帐号?注册

x
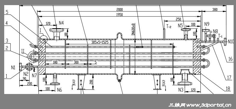
这种管板如何计算呢?
Image00020.jpg
发表于 2010-5-19 23:47:49 | 显示全部楼层 来自: 中国辽宁鞍山
这应该是一个有波纹管膨胀节的管壳式换热器,在GD150中应该有相关的管板设计说明。9 E/ Q9 C2 ]( G3 \4 o- C' E
直径500mm,长2000就设有膨胀节,说明管壳程流体温差较大。
发表于 2010-5-24 10:17:14 | 显示全部楼层 来自: 中国上海
楼上的根本不知道楼主在问什么
% ]( o) ?( F$ l1.没有管箱,楼主就自定义一个柔性非常好的材料用在管箱上。
8 e8 y, G. K- J/ t" @- F2.管箱选用2mm的不锈钢板来计算管板。
  c" k8 {( ?' S第一种精确一点;第二种方法方便一般来说结果可接受。
发表回复
您需要登录后才可以回帖 登录 | 注册

本版积分规则


Licensed Copyright © 2016-2020 http://www.3dportal.cn/ All Rights Reserved 京 ICP备13008828号

小黑屋|手机版|Archiver|三维网 ( 京ICP备2023026364号-1 )

快速回复 返回顶部 返回列表