QQ登录

只需一步,快速开始

登录 | 注册 | 找回密码

三维网

 找回密码
 注册

QQ登录

只需一步,快速开始

展开

通知     

查看: 2761|回复: 3
收起左侧

[求助] UG二维图导CAD的问题

[复制链接]
发表于 2010-5-23 19:55:17 | 显示全部楼层 |阅读模式 来自: 中国陕西西安

马上注册,结识高手,享用更多资源,轻松玩转三维网社区。

您需要 登录 才可以下载或查看,没有帐号?注册

x
本帖最后由 kk7046 于 2010-5-23 19:56 编辑
4 M8 K) _0 |1 ?- H1 K0 B4 ^; N
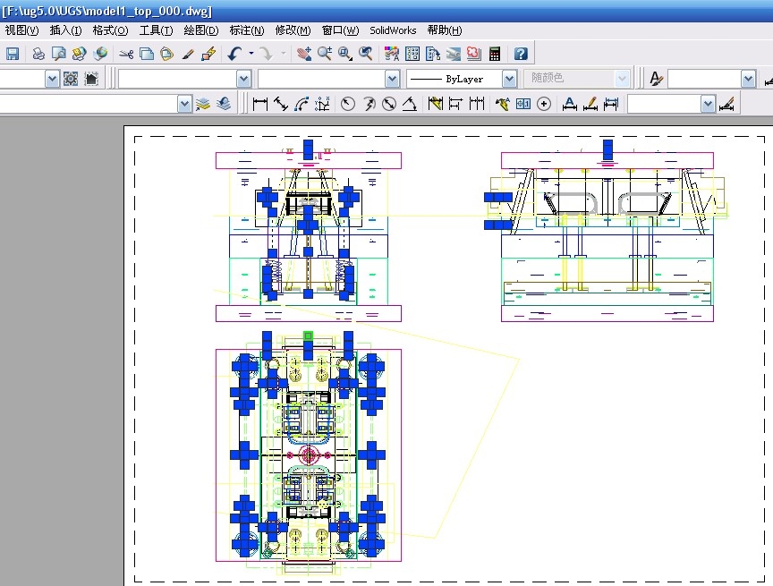
+ _  j" z) U$ v  k( ]% V7 p2 ^我把UG的注塑模装配图(TOP文件)导成了DWG格式,用autoCAD2007打开后虽然所有的线都可以显示,但是只有几条线可以修改。请问怎样才能使每条线都可以修改?按ctrl+A全选只能选几条线,如图
QQ截图未命名.jpg
发表于 2010-5-23 20:55:27 | 显示全部楼层 来自: 中国广东广州
你是直接导出DWG格式的吧?,UG直接导出DWG格式不好很容易出现问题。你先导出成CGM格式,然后再新建一个文件,导入你刚才导出的CGM文件,然后再导出DWG格式就OK了,这种方法可定没问题的。
发表于 2010-5-23 21:11:19 | 显示全部楼层 来自: 中国湖北襄阳
我也跟着学习下呵呵
/ s. V5 |' G. M: a7 i
) |" F: Z) @! j3 h祝论坛越办约好!
发表于 2010-5-24 08:56:04 | 显示全部楼层 来自: 中国江西抚州
试一下2DEXCHANGE命令,可能能解决你的问题
发表回复
您需要登录后才可以回帖 登录 | 注册

本版积分规则


Licensed Copyright © 2016-2020 http://www.3dportal.cn/ All Rights Reserved 京 ICP备13008828号

小黑屋|手机版|Archiver|三维网 ( 京ICP备2023026364号-1 )

快速回复 返回顶部 返回列表