QQ登录

只需一步,快速开始

登录 | 注册 | 找回密码

三维网

 找回密码
 注册

QQ登录

只需一步,快速开始

展开

通知     

全站
5天前
查看: 4229|回复: 28
收起左侧

[求助] ug工程图

[复制链接]
发表于 2010-5-28 18:23:03 | 显示全部楼层 |阅读模式 来自: 中国江苏常州

马上注册,结识高手,享用更多资源,轻松玩转三维网社区。

您需要 登录 才可以下载或查看,没有帐号?注册

x
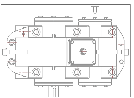
大家看看这个图有多少错误,怎样改啊!特别是轴承的剖视图。怎样剖可以解决啊,头都大了。 1.png 2.png
发表于 2010-5-28 19:35:04 | 显示全部楼层 来自: 中国浙江杭州
你指的是什么方面的问题啊!UG断面中可以删除线条,但增加线条不知道可不可以
 楼主| 发表于 2010-5-29 13:12:20 | 显示全部楼层 来自: 中国江苏常州
增加线条的,主要是怎么剖,才可以达到这样的效果[
12.png
发表于 2010-5-30 08:16:50 | 显示全部楼层 来自: 中国浙江宁波
上3D~来看看                             .
发表于 2010-5-30 08:22:20 | 显示全部楼层 来自: 中国江苏扬州
我根本就看不明白楼主的意思   呵呵
 楼主| 发表于 2010-5-30 10:40:31 | 显示全部楼层 来自: 中国江苏常州
呵呵,我是想证明一下UG工程图可以达到什么地步,是否可以随心所欲的表达自己的意愿。
 楼主| 发表于 2010-5-30 10:45:53 | 显示全部楼层 来自: 中国江苏常州
这是要剖的3D 1.png 这是我期望的效果 2.png 呵呵,一个是UG出图,一个是CAD绘制的,想问一下UG是否可以达到。
 楼主| 发表于 2010-5-30 10:48:02 | 显示全部楼层 来自: 中国江苏常州
希望大家指点,出的是装配图。
发表于 2010-5-30 18:44:09 | 显示全部楼层 来自: 中国山东泰安
请上传个Part文件。另外,UG的制图功能确实是可以随心所欲的表达。
 楼主| 发表于 2010-5-31 12:31:01 | 显示全部楼层 来自: 中国江苏常州
9# tianyatongming 你的 邮箱是多少,我发给你吧,我是真的想求教,如果你嫌麻烦,你联系我吧,qq:1157842026
发表于 2010-5-31 12:33:43 | 显示全部楼层 来自: 中国河南洛阳
基本可以达到随心所欲的地步,原来所有的AutoCAD的功能都可以实现,过之而无不及
 楼主| 发表于 2010-5-31 12:39:00 | 显示全部楼层 来自: 中国江苏常州
基本可以达到随心所欲的地步,原来所有的AutoCAD的功能都可以实现,过之而无不及
% O. H  N5 ]1 s# s1 ?) q1 F1 I: {hanxh03 发表于 2010-5-31 12:33 http://www.3dportal.cn/discuz/images/common/back.gif
你可否出一个教程啊,让我们新手见识一下ug的神奇魅力,说 -我感觉有点空洞。拜托了,真心求教。
发表于 2010-5-31 13:51:30 | 显示全部楼层 来自: 中国四川成都
你发一个Part文件给我,我的邮箱是taotao-wei@qq.com
发表于 2010-5-31 14:03:54 | 显示全部楼层 来自: 中国四川成都
本帖最后由 taotao-wei@qq.c 于 2010-5-31 14:06 编辑 & y( k. a9 D: Z

7 q  k: n! P1 [6 V1 M! a* \1 R在UG中要表达平面图,我感觉比OUTCAD还好用,如果你要去掉一些线条,首先进入drafting,你可以点如图1: 1A.jpg 选择下拉菜单的最后一项,如图2: 1B.jpg 你想去掉什么,就可以去掉什么
发表于 2010-5-31 14:25:43 | 显示全部楼层 来自: 中国四川成都
如果你希望在工程图中增加线条,那么首先在DRAFTING模式下,点取DRAWING下拉菜单的DISPLAY  DRAWING,在这个窗口下,你想怎么增加线条都可以,但是请注意坐标平面哈,还有就是要删掉线条时要特别注意,不要把不需要删掉的也删掉了哈,如图3 2.jpg 4 G3 |/ ^8 I/ S8 }
图4 4.jpg ,你去多试试嘛。相信你会很快上手的。
 楼主| 发表于 2010-5-31 18:06:05 | 显示全部楼层 来自: 中国江苏常州
你这个师傅,我收了。呵呵,十分感谢
发表于 2010-5-31 19:07:50 | 显示全部楼层 来自: 中国四川成都
AA.jpg 这个就是我根据你的数据转的平面图,只是我没有时间做的很仔细,因为出图是很花时间的,特别是要表达的很清楚的话,就太花时间了。在这里只能够来个抛砖引玉吧
 楼主| 发表于 2010-5-31 19:09:10 | 显示全部楼层 来自: 中国江苏常州
师傅,4.0里剖面线怎么删除,删了之后怎么从新添加
发表于 2010-6-3 02:13:11 | 显示全部楼层 来自: 中国湖南株洲
感觉ug出工程图时老出现有的圆角处掉线的问题(ug出了二维图导入到dwg中后检查发现),我用的是ug6版本,6.0.2.8版本,请高手指导下如何解决这个问题。谢谢了
 楼主| 发表于 2010-6-4 18:57:18 | 显示全部楼层 来自: 中国江苏常州
你先导出CGM文件,再创建一个新文件,将先前生成的CGM文件引入 (Import)。然后再用 UG TODXF输出成DXF文件格式。你试一下,看看效果。
发表于 2010-6-5 07:20:19 | 显示全部楼层 来自: 中国湖北武汉
受教了   谢谢taotao-wei@qq.c ~~~7 X: Z% j" a: o
7 m$ N' s9 z( V7 e
高手   谢谢   ~~~
 楼主| 发表于 2010-6-20 10:46:35 | 显示全部楼层 来自: 中国江苏常州
QQ截图未命名.png 这二者之间的间隙,怎么控制啊。是不是,分开做,先做公差,在画指引线;还是二者一起做?
发表于 2010-6-20 12:48:09 | 显示全部楼层 来自: 中国浙江台州
22# 寒风不冷 一起做呀 怎么会分开做呢
 楼主| 发表于 2010-6-21 14:23:25 | 显示全部楼层 来自: 中国江苏常州
那间距怎么控制呢?
发表于 2010-6-21 23:28:45 | 显示全部楼层 来自: 中国上海
不怎么能看得明白,可否再详细点呢
发表回复
您需要登录后才可以回帖 登录 | 注册

本版积分规则

Licensed Copyright © 2016-2020 http://www.3dportal.cn/ All Rights Reserved 京 ICP备13008828号

小黑屋|手机版|Archiver|三维网 ( 京ICP备2023026364号-1 )

快速回复 返回顶部 返回列表