QQ登录

只需一步,快速开始

登录 | 注册 | 找回密码

三维网

 找回密码
 注册

QQ登录

只需一步,快速开始

展开

通知     

全站
6天前
查看: 5641|回复: 8
收起左侧

[求助] 关于轴的轴向定位问题(使用了滑动轴承)

[复制链接]
发表于 2010-5-29 19:26:04 | 显示全部楼层 |阅读模式 来自: 中国山东淄博

马上注册,结识高手,享用更多资源,轻松玩转三维网社区。

您需要 登录 才可以下载或查看,没有帐号?注册

x
本帖最后由 dlw1962 于 2010-5-29 19:27 编辑
. _* `# r3 a$ [2 J  x
3 H( N( p$ z; l, _我正在设计一个简单机器,有一根工作轴,使用了滑动轴承,那轴向能不能用轴上转动的零件的侧面和机体壁贴合定位啊?没有轴向力。  谢谢啊!!!
发表于 2010-5-30 08:38:54 | 显示全部楼层 来自: 中国山东临沂
可使用轴向轴承。
发表于 2010-5-30 09:46:34 | 显示全部楼层 来自: 中国山西太原
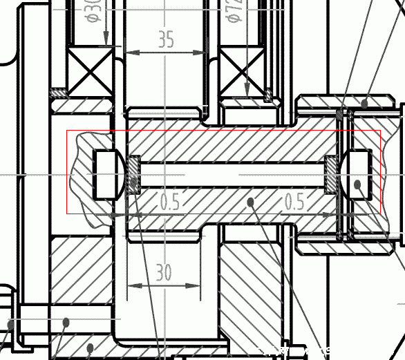
使用滑动轴承时,轴的轴向定位靠轴肩与瓦侧面的滑动接触,如下图,另与端与这端对称,可抵挡两个方向的轴向力。
滑动轴承轴向定位.jpg
发表于 2010-5-30 17:07:26 | 显示全部楼层 来自: 中国四川自贡
外圈用法兰固定在机架上,内圈用锁紧螺母固定在轴上就行了。
发表于 2010-5-30 21:49:47 | 显示全部楼层 来自: 中国江苏泰州
本帖最后由 poxiangzi 于 2010-5-30 21:51 编辑 9 I4 Y- C6 I4 G( q/ I7 w
2 X; L  d3 O% Q  ?3 u
楼主的问题不是很明确:如果是需要在一根轴的中部定位则可以使用轴肩定位;如果是一根轴的两端可以使用端面轴承;如果不是同一根轴则可以使用“球顶”。
未命名.GIF
发表于 2010-5-31 23:00:49 | 显示全部楼层 来自: 中国湖北十堰
这个可以考虑借鉴普通磨床主轴的安装结构。很经典的结构。
发表于 2010-6-28 17:53:35 | 显示全部楼层 来自: 中国浙江杭州
不能用轴上转动的零件的侧面和机体壁贴合定位,因为即使没有轴向力,但是在搬运和安装过程中不能保证转动的零件与侧面和机体壁会有合适的间隙,如果没有足够间隙,那么转动中必然造成转动零件与箱壁摩擦,有可能造成发热、零件损坏等。如过连接转动的轴的外部零件在使用中有固定的轴向位置,同时安装时保证转动的零件的侧面与机体壁不贴合(同时保证使用变形后也不接触),可以考虑不设轴向限位轴承,否则从可靠性设计要求,应该设计有轴向固定的机构。
发表于 2011-4-7 10:35:07 | 显示全部楼层 来自: 中国重庆
学习了,我也在想这个问题5 e. L6 ?2 f$ _( y! }# E5 ?
如果靠滑动轴承端面直接与轴肩接触滑动的话,那么摩擦是不是很大呢
发表于 2011-4-9 09:40:11 | 显示全部楼层 来自: 中国山东莱芜
滑动轴承可以设计定位台肩!
发表回复
您需要登录后才可以回帖 登录 | 注册

本版积分规则


Licensed Copyright © 2016-2020 http://www.3dportal.cn/ All Rights Reserved 京 ICP备13008828号

小黑屋|手机版|Archiver|三维网 ( 京ICP备2023026364号-1 )

快速回复 返回顶部 返回列表