QQ登录

只需一步,快速开始

登录 | 注册 | 找回密码

三维网

 找回密码
 注册

QQ登录

只需一步,快速开始

展开

通知     

查看: 1910|回复: 2
收起左侧

[讨论] 一种非标减速机输入轴输出轴轴承的方式是否合理?

[复制链接]
发表于 2010-5-29 22:44:33 | 显示全部楼层 |阅读模式 来自: 中国江苏泰州

马上注册,结识高手,享用更多资源,轻松玩转三维网社区。

您需要 登录 才可以下载或查看,没有帐号?注册

x
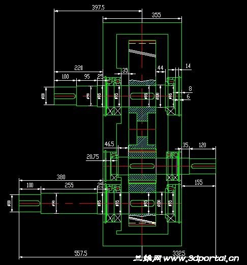
一种拉丝机上用的减速机,中间的轴作为输入,两侧的轴为输出主轴。
, C& C. i+ P6 N! L在输入输出靠近轴伸的部位分别安装了两只轴承(球轴承在箱体内侧,圆锥滚子轴承在外侧),轴的另一头安装一只圆锥滚子轴承(设调节螺丝)。3 o1 T# _' x2 }8 l
为方便检修,采用嵌盖结构。
/ O: |/ T$ n4 S8 E8 A: u请网友谈谈这样设置是否合理?为什么?有没有更好的方式?' @5 z1 U) t: J* T8 @/ T9 ]8 `
该类减速机负荷大,24小时连续运行。4 t1 a& E/ {. W$ C: w( ?
该类减速机市场上应用非常多。
发表于 2010-5-29 23:05:41 | 显示全部楼层 来自: 中国广东汕头
可否上传照片或示意图纸?! Q* z- L: k+ `
使大家能更方便探讨学习。
 楼主| 发表于 2010-5-30 02:35:54 | 显示全部楼层 来自: 中国江苏泰州
结构截图
" o* R" g$ ?& U* C 未命名.JPG
' y( ?9 U$ |: X  W这比语言叙述清楚些。
发表回复
您需要登录后才可以回帖 登录 | 注册

本版积分规则


Licensed Copyright © 2016-2020 http://www.3dportal.cn/ All Rights Reserved 京 ICP备13008828号

小黑屋|手机版|Archiver|三维网 ( 京ICP备2023026364号-1 )

快速回复 返回顶部 返回列表