QQ登录

只需一步,快速开始

登录 | 注册 | 找回密码

三维网

 找回密码
 注册

QQ登录

只需一步,快速开始

展开

通知     

全站
10天前
查看: 2332|回复: 14
收起左侧

[求助] 求救,需要做个这样的离合装置,该怎么做呢

[复制链接]
发表于 2010-6-7 15:10:29 | 显示全部楼层 |阅读模式 来自: 中国浙江宁波

马上注册,结识高手,享用更多资源,轻松玩转三维网社区。

您需要 登录 才可以下载或查看,没有帐号?注册

x
本帖最后由 maj2003 于 2010-6-7 15:13 编辑 3 @* C" j' N$ K+ D$ H1 y. ^5 r

1 J6 s) c! V# ?5 s/ W
+ ]; t% T7 ?) C# ^( _

8 Z7 N& v! C% F7 n- _- x- r$ ~+ |+ x# q/ D0 Y
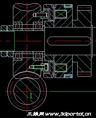
   电机上固定的是蜗杆,涡轮和摇臂上的轴为同轴,当用电机驱动时,通过蜗杆涡轮的传动,摇臂能上下转动。但当电机不工作时,要求用外力扳动摇臂,摇臂也能转动,但需要和涡轮离合(因为涡轮系是自锁的,不然摇臂会转不动)。不知道涡轮和轴上或单单在轴上搞个什么结构,起到离合的效果。见图示:  e0 g4 I% P- A5 H4 G' v
希望大家帮我想想办法啊。
01.JPG
02.JPG
03.JPG
 楼主| 发表于 2010-6-7 16:36:33 | 显示全部楼层 来自: 中国浙江宁波
大家集思广益啊。。。。。。。。。
发表于 2010-6-7 17:36:05 | 显示全部楼层 来自: 中国山西太原
蜗轮上作一段毂,与摇臂同钻一定位销孔,运行时插上销子,仃止后手动拔掉销子,就可摇动,这样最简单。

评分

参与人数 1三维币 +2 收起 理由
虎强 + 2 积极讨论

查看全部评分

发表于 2010-6-7 21:26:56 | 显示全部楼层 来自: 中国湖南岳阳
可以在蜗轮上装个电磁离合器,当电动时,离合器吸合,手动时分离。但需要控制好手动时的偏转极限位置和偏转的灵活度,不宜太灵活(太灵活了不好掌控)。电磁离合器结构请参考附图(仅供参考)。
11.jpg

评分

参与人数 1三维币 +3 收起 理由
虎强 + 3 技术讨论

查看全部评分

 楼主| 发表于 2010-6-8 11:57:02 | 显示全部楼层 来自: 中国浙江宁波
3# gaoyns
  \" F2 o$ l! E; }* x0 z这样不行的,要求智能化,在碰撞时,不一定是手在碰撞,像别的物体碰撞的话,也要能撞开,这个工作的转速和力矩不用很大。就是起一个档道的作用而已。不承受其它的力的。
 楼主| 发表于 2010-6-8 12:01:50 | 显示全部楼层 来自: 中国浙江宁波
4# TKG-09 + z4 F8 _; o+ g  _3 ?( l
/ x7 m5 B) a: }% o: q
这个思路是对的,但费用会增加很大。这个起的作用就像是门禁的性质,用摇臂升起来后挡在那里,通过遥控可以自由的升降,但有别的物体碰撞摇臂时,摇臂在外力的作用下能做轴向转动,而不会损坏内部的其他结构,就此而已,其它的没什么要求,因为电机的转速已是比较慢的,升降时除了自身的摇臂重量外,也没别的阻力。
发表于 2010-6-9 13:40:29 | 显示全部楼层 来自: 中国上海
看你工作的力矩大不大,不大可采用类似摩擦片的结构,运动时给于摩擦力,不需要一起运动时弹开摩擦片,
发表于 2010-6-9 15:20:06 | 显示全部楼层 来自: 中国安徽淮南
加弹簧。
  p$ a+ i6 F2 c5 O! u7 t/ L通电时,电机下移(或仅移动丝杆或涡轮),电机此时通电运转;& x/ A9 R* i$ s% d
断电时,靠弹簧力使涡杆涡轮分离。
 楼主| 发表于 2010-6-10 08:22:04 | 显示全部楼层 来自: 中国浙江宁波
7# stone10
5 Y' }3 I: X8 `5 c4 _
+ L) s; d6 V- c! }; \+ k- N+ j' w可不可以帮我出个简图呢,需要什么样的摩擦片装置?
 楼主| 发表于 2010-6-10 08:25:55 | 显示全部楼层 来自: 中国浙江宁波
8# cloudpeng
) a( B+ F( I' J0 o这样大概不行,蜗杆涡轮具有自锁的特性,当摇臂竖起来时,若蜗杆涡轮分离了,摇臂它会自动的倒下去了吧。假如有个阻力让摇臂竖立在那也行。
发表于 2010-6-10 09:15:24 | 显示全部楼层 来自: 中国黑龙江佳木斯
根据你的要求可以考虑使用两个方向不同的超越离合器,以便适应两个旋转方向,且遇阻力即可与动力脱离。
 楼主| 发表于 2010-6-13 16:15:39 | 显示全部楼层 来自: 中国浙江宁波
11# shifeng18 9 C0 i* h  s' v6 e
可否说得再清楚点呢,有没有简图贴上来啊
发表于 2010-6-14 08:21:04 | 显示全部楼层 来自: 中国辽宁沈阳
楼主对具体工艺要求还未介绍清楚。& l& Y7 V# H. h) v
如果,电机驱动摇臂和手动摇臂的扭矩相差较大的话,采用4#方案,再适当增加些电控即可实现。- e9 [! R0 D! M) g% V# E. I
如果,电机驱动摇臂和手动摇臂的扭矩不是很大,并且,可以相同的话,则可将结构设计修改为:, l% x4 A* x  O! }) V0 q2 M
①将涡轮内孔与轴间按动配合设计成可相互周向转动;
. O5 e5 o8 a1 `②在涡轮两侧端面,增设摩擦片;# e& }+ A6 m( a4 j  E0 r
③在摇臂轴上,增设调整螺母(双螺母)、压缩弹簧和摩擦压盘;6 P9 o0 U# E" R: t
④可根据需要,调整摩擦力矩大小;
; ?: ?$ f; U9 @( K# C⑤电机驱动时,涡轮靠摩擦力矩带动摇臂转动;
, |9 t4 e& y# s$ [8 T⑥手动摇臂时,只要克服摩擦力矩,摇臂就可双向转动。

评分

参与人数 1三维币 +2 收起 理由
虎强 + 2 技术讨论

查看全部评分

发表于 2010-6-14 09:09:48 | 显示全部楼层 来自: 中国江苏苏州
电机输出先接电磁离合器,然后再接蜗杆,蜗杆两端用轴承架起,即可处理。
& H' t4 l, J" C' V3 U' `' W2 _2 ^市面上找找有直接带电磁离合器的电机出售。控制也很简单,电机不停止,只需控制电磁离合器的吸合及可。
 楼主| 发表于 2010-6-17 15:31:26 | 显示全部楼层 来自: 中国浙江宁波
好了,谢谢各位大侠的出谋划策,我知道该怎么做了。7 N1 e# N0 y# v: C4 a* _
再次感谢。。。
发表回复
您需要登录后才可以回帖 登录 | 注册

本版积分规则


Licensed Copyright © 2016-2020 http://www.3dportal.cn/ All Rights Reserved 京 ICP备13008828号

小黑屋|手机版|Archiver|三维网 ( 京ICP备2023026364号-1 )

快速回复 返回顶部 返回列表