QQ登录

只需一步,快速开始

登录 | 注册 | 找回密码

三维网

 找回密码
 注册

QQ登录

只需一步,快速开始

展开

通知     

全站
3天前
查看: 1114|回复: 1
收起左侧

[求助] solidworks带块的工程图转化有问题

[复制链接]
发表于 2010-6-18 20:45:46 | 显示全部楼层 |阅读模式 来自: 中国上海

马上注册,结识高手,享用更多资源,轻松玩转三维网社区。

您需要 登录 才可以下载或查看,没有帐号?注册

x
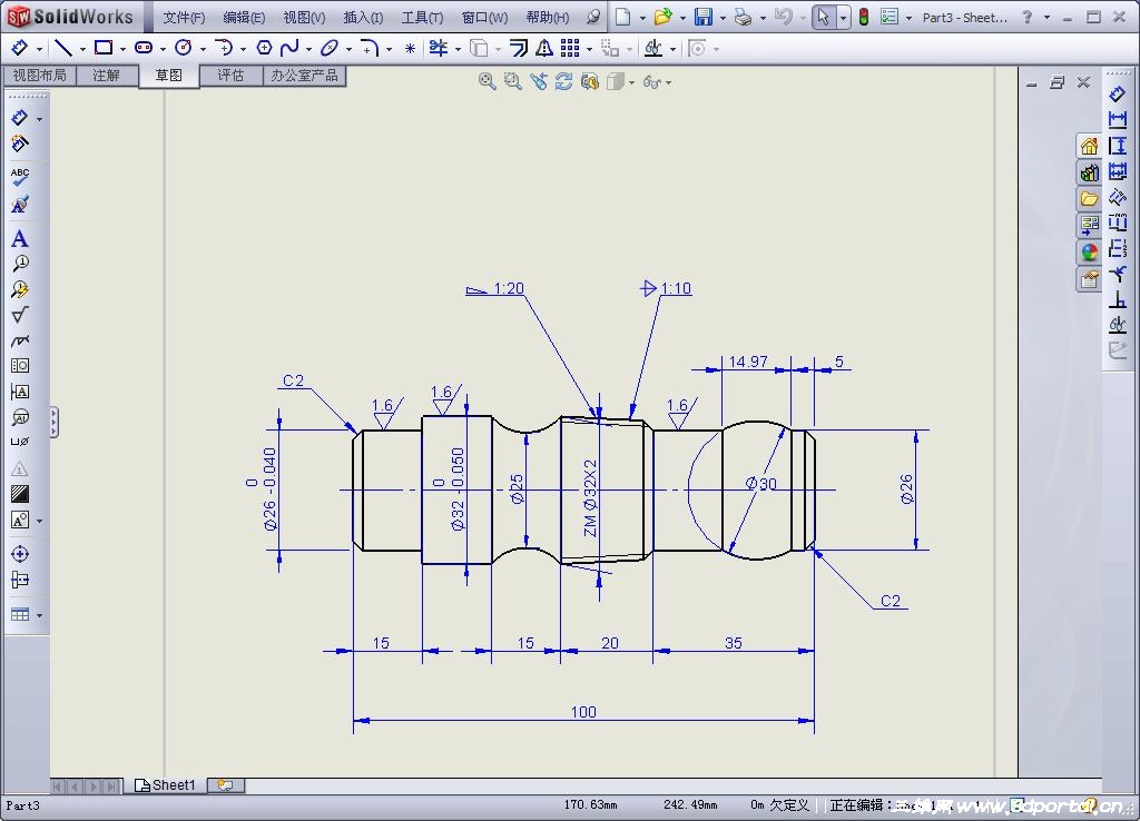
因为SOLIDWORK没有自带锥度符号,我自己用块做了一个,2010版本对于块可以显示尺寸,也不可以不显示,但转化成DWG,却又显示出来了,请教高手,这是为什么呀?还有我锥度符号旁边的1:10是用注释功能做的,锥度和注释其中一个移动了另一个不会移动,请问怎么才能做在一起呀?最好象旁边的斜度一样做成符号,在注释时直接插入符号,请问哪位高手可以做到?
a.JPG
b.JPG
c.JPG

part3.rar

319.64 KB, 下载次数: 4

原文件

 楼主| 发表于 2010-6-18 21:07:22 | 显示全部楼层 来自: 中国上海
这里不知道问问题问的好,比如很有代表性,或者很难但大家经常碰到的问题会不会加分呀?
发表回复
您需要登录后才可以回帖 登录 | 注册

本版积分规则


Licensed Copyright © 2016-2020 http://www.3dportal.cn/ All Rights Reserved 京 ICP备13008828号

小黑屋|手机版|Archiver|三维网 ( 京ICP备2023026364号-1 )

快速回复 返回顶部 返回列表