QQ登录

只需一步,快速开始

登录 | 注册 | 找回密码

三维网

 找回密码
 注册

QQ登录

只需一步,快速开始

展开

通知     

查看: 22155|回复: 11
收起左侧

[已解决] CAD2010自动显示特性如何去掉?有图

[复制链接]
发表于 2010-6-26 09:10:25 | 显示全部楼层 |阅读模式 来自: 中国广东茂名

马上注册,结识高手,享用更多资源,轻松玩转三维网社区。

您需要 登录 才可以下载或查看,没有帐号?注册

x
本帖最后由 slang868 于 2010-6-27 11:36 编辑 0 K6 T+ h- z$ t7 r' j. B; d+ w

. }7 G5 l4 D, |5 \. L% d刚开始用CAD2010,不太习惯。
$ f, m. k' O2 {! R4 n
  M! b/ T7 M" Q: E: P) t( B让我极其讨厌的是,鼠标在线条上,旁边就会自动显示线条的属性,2 y; d4 j9 q# n

4 R6 `! g7 `5 R' g5 p6 r这让我很郁闷,气死我了。
0 ?& D+ _7 M. G: x5 P2 ^; g3 p7 C* d. X6 n0 e# W* j
如何去掉这个自动显示的功能啊?
新建 CorelDRAW X3 Graphic.jpg
新建 CorelDRAW X3 Graphic2.jpg
 楼主| 发表于 2010-6-26 09:18:14 | 显示全部楼层 来自: 中国广东茂名
并且明显感觉这个功能会使我的操作有滞后
发表于 2010-6-26 09:30:52 | 显示全部楼层 来自: 中国安徽芜湖
楼主啊,我的机器是很老的那种,865的集显跑2010也没出现停滞现象,我建议你检查一下你的系统。
 楼主| 发表于 2010-6-26 10:12:51 | 显示全部楼层 来自: 中国广东茂名
3# coolboy123 4 j7 I" V6 N+ U; ]9 Y
系统没有任何问题啊,我昨天才装的2010,一直用2008的,% q; K/ C4 S1 @# D) H
我只是想说自动显示特性会影响操作有点“一顿”的滞后的感觉。
- k1 K- Y8 K9 O2 |并且这个功能弊大于利。
4 r9 W( T% N8 @- s5 c8 ~* t! _0 b  G# t' o3 F& M9 B1 B
你知道如何关闭它吗?
发表于 2010-6-26 10:25:52 | 显示全部楼层 来自: 中国天津
1# slang868
4 T) j8 l9 ^2 I% [* X' M窗口底部状态栏绘图工具右侧"快捷特性"按钮
 楼主| 发表于 2010-6-26 16:41:02 | 显示全部楼层 来自: 中国广东茂名
1# slang868  * Z$ P9 F! O; M9 p' p
窗口底部状态栏绘图工具右侧"快捷特性"按钮
4 J) a. M8 R* z9 T2 ^$ mwoaishuijia 发表于 2010-6-26 10:25 http://www.3dportal.cn/discuz/images/common/back.gif
0 u/ R3 N  g" s

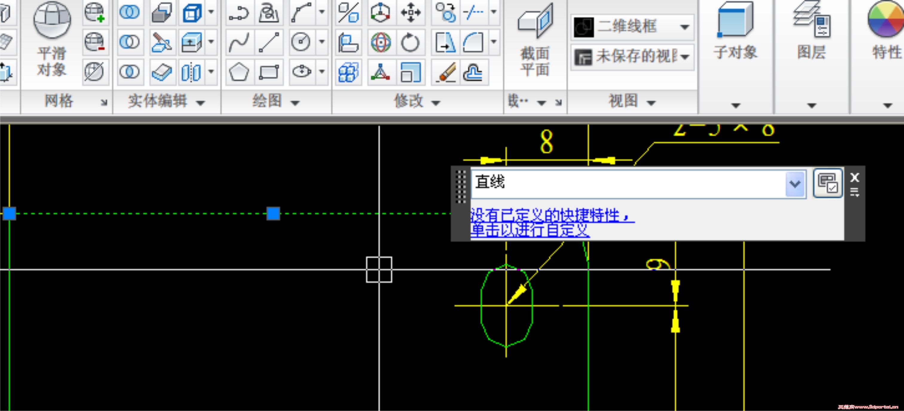
8 N' R4 ]# d0 y- r1 z4 c根据你的提示找到了“快捷特性”,
5 v  x$ Y! Y( H7 i7 |0 A) w: U我把那些选项都不选,
8 {* K! ~" O$ t8 y结果是---
' W( {* U, `6 X, K9 V, E% E2 I没有了“鼠标悬停提示”,
) H# ^" x( Q) p; _& x现在点击线后有“没有已定义的快捷特性”这让的提示。~& `1 K: @& |. D* m) ^% [3 L

, z$ O9 ^4 e& U% H6 a: e8 h" @ft
新建 CorelDRAW X3 Graphic3.jpg
发表于 2010-6-26 20:05:19 | 显示全部楼层 来自: 中国天津
首先表示抱歉,你在主帖中附件显示的是“鼠标悬停工具提示”,不是"快捷特性"选项卡,我在5楼的回复错了.- b/ ^# w' f) o" w
关闭“鼠标悬停工具提示”,可以在"选项"对话框的"显示"选项卡中取消对"显示鼠标悬停工具提示"复选框的选择或把相应的系统变量"ROLLOVERTIPS"改为0.# p1 f! i8 y1 h' d5 Q/ Z8 G  t
你6楼的附件显示,你启用了"快捷特性"选项卡,可以使用“快捷特性”按钮关闭它,也可以使用快捷键"Ctrl+Shift+P",或在该按钮的右键弹出菜单上或在"草图设置"对话框上设置是否启用它,以及修改"QPMODE"系统变量等.; c" K9 h( o$ m2 E7 `1 j0 U* l
至于"快捷特性"选项卡上显示“没有已定义的快捷特性”,是由于你在"自定义"对话框上对"快捷特性"做了自定义,取消了"快捷特性"所有自定义特性复选框的选择状态,使"快捷特性"选项板为空.

评分

参与人数 1三维币 +5 收起 理由
wang2003 + 5 应助

查看全部评分

 楼主| 发表于 2010-6-27 11:29:41 | 显示全部楼层 来自: 中国广东茂名
WOW!
# b: `5 K& O! q% f5 _4 K, W: ^7 y- c老大你太厉害了!
7 n8 S" G, l) ]8 z+ O7 n8 F3 vQPMODE改为0,解决了!7 y  W  N) `' F% ]6 h
老大就是老大!
6 `3 z2 E  O7 N& v' o) T" o* }# c/ s谢谢你!
发表于 2010-6-29 09:27:20 | 显示全部楼层 来自: 中国江苏无锡
哥们!偶顶你
发表于 2010-6-29 20:40:39 | 显示全部楼层 来自: 中国浙江嘉兴
虽然我还没装2010但也乘机学了一招。
发表于 2010-6-30 11:37:56 | 显示全部楼层 来自: 中国江苏扬州
7楼的无私,感谢啦!
发表于 2011-9-18 19:50:52 | 显示全部楼层 来自: 中国黑龙江哈尔滨
我现在也解决了这个问题。谢谢!
发表回复
您需要登录后才可以回帖 登录 | 注册

本版积分规则


Licensed Copyright © 2016-2020 http://www.3dportal.cn/ All Rights Reserved 京 ICP备13008828号

小黑屋|手机版|Archiver|三维网 ( 京ICP备2023026364号-1 )

快速回复 返回顶部 返回列表