QQ登录

只需一步,快速开始

登录 | 注册 | 找回密码

三维网

 找回密码
 注册

QQ登录

只需一步,快速开始

展开

通知     

查看: 1182|回复: 1
收起左侧

[求助] 蓄能器在泄压油路中的作用

[复制链接]
发表于 2010-6-30 16:51:13 | 显示全部楼层 |阅读模式 来自: 中国河北沧州

马上注册,结识高手,享用更多资源,轻松玩转三维网社区。

您需要 登录 才可以下载或查看,没有帐号?注册

x
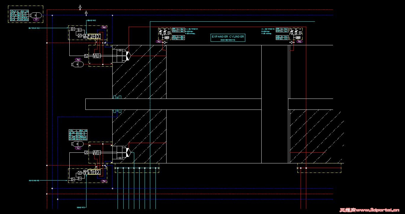
在外控式比例阀系统的泄油路上装上了一个蓄能器,之后直接通油箱。该蓄能器的作用是什么?如图,最左上角的蓄能器油路即是直接回油箱。 Drawing1.JPG
发表于 2010-6-30 17:16:28 | 显示全部楼层 来自: 中国江苏苏州
只见过在主油路加蓄能器,不知道有什么用!
发表回复
您需要登录后才可以回帖 登录 | 注册

本版积分规则


Licensed Copyright © 2016-2020 http://www.3dportal.cn/ All Rights Reserved 京 ICP备13008828号

小黑屋|手机版|Archiver|三维网 ( 京ICP备2023026364号-1 )

快速回复 返回顶部 返回列表