QQ登录

只需一步,快速开始

登录 | 注册 | 找回密码

三维网

 找回密码
 注册

QQ登录

只需一步,快速开始

展开

通知     

查看: 3757|回复: 16
收起左侧

[已答复] 油缸上平衡阀块

[复制链接]
发表于 2010-7-6 19:45:37 | 显示全部楼层 |阅读模式 来自: 中国江苏常州

马上注册,结识高手,享用更多资源,轻松玩转三维网社区。

您需要 登录 才可以下载或查看,没有帐号?注册

x
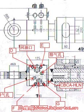
我对于螺纹插装式平衡阀不是很懂!现在遇到个麻烦,就是要在油缸上装的平衡阀块,上面有2个插装式平衡阀,我把外形图和原理图上传,大家帮分析下,内部是个啥结构!
9 p* B" n3 _6 T4 y7 z& ?4 g Snap3.jpg Snap1.jpg
 楼主| 发表于 2010-7-6 19:46:33 | 显示全部楼层 来自: 中国江苏常州
本帖最后由 motorola 于 2010-7-6 19:47 编辑 ! S# N1 D5 I! U5 Q8 x; v

- F* ~3 i  O3 r' [4 {给三维网挡起来的内容是此孔为进油口,希望得到各位的指点,具体不明白 D,E,F,G口具体的连接情况!
头像被屏蔽
发表于 2010-7-6 20:04:20 | 显示全部楼层 来自: 中国江苏泰州
提示: 该帖被管理员或版主屏蔽
发表于 2010-7-6 22:13:48 | 显示全部楼层 来自: 中国四川成都
看油缸的型式象是伸缩臂的伸缩油缸,若是伸缩油缸的话也只在其无杆腔油路中装平衡阀,不知何故装双平衡阀?

评分

参与人数 1三维币 +2 收起 理由
洪哥 + 2 讨论

查看全部评分

 楼主| 发表于 2010-7-6 23:37:00 | 显示全部楼层 来自: 中国浙江嘉兴
这个我还真不清楚哩!!船用的油缸!!应该是自由摆动吧
发表于 2010-7-7 07:35:27 | 显示全部楼层 来自: 中国江苏南通
四个口啊,正常的阀口呢
' w; q# a7 }6 N1 h  A) U压力油口,T口,外控口,外泄口' p( {3 X4 i8 d  G8 f( Q2 u1 w
: f0 A1 `) A% `9 A8 u& f+ g% y
单向阀是这个方向吗?

评分

参与人数 1三维币 +3 收起 理由
洪哥 + 3 感谢帮助!

查看全部评分

 楼主| 发表于 2010-7-7 14:17:52 | 显示全部楼层 来自: 中国江苏常州
单向阀方向没错,不管油缸进出都是需要产生背压的!!用的是插装阀,没有外泄口,外控口是通过工艺孔打通的!!现在我发现上面几个标字母的应该是安装固定螺孔。不知道我说的对不对??
头像被屏蔽
发表于 2010-7-12 20:24:29 | 显示全部楼层 来自: 中国江苏泰州
提示: 该帖被管理员或版主屏蔽
发表于 2010-7-26 23:53:06 | 显示全部楼层 来自: 中国湖北孝感
国内现在的螺纹插装阀也做的蛮不错 支持国产

评分

参与人数 1三维币 +2 收起 理由
洪哥 + 2 讨论

查看全部评分

发表于 2010-8-6 10:32:39 | 显示全部楼层 来自: 中国辽宁鞍山
1# motorola 原理不是 太难啊  
- ~& j, a. M4 S, ~1. 画虚线的部分是 控制油路 。% v2 N/ f) |4 }3 x) r1 Q6 l3 F
也就是供油管的压力 可以控制 回油管路的开闭  及压力。
/ {) b4 T; F8 K! B7 L: x) |2 e! `& z. t9 c+ e' i8 @- |. y5 j
2.当然,也可以调节顺序阀的控制压力。 9 l- u/ q0 S# H
; ^7 H) ^* x3 {- l' S; s
3

评分

参与人数 1三维币 +2 收起 理由
洪哥 + 2 3呢:)

查看全部评分

发表于 2010-8-6 12:34:57 | 显示全部楼层 来自: 中国江苏徐州
伸缩臂的伸缩油缸装双平衡阀应该是吊臂工况存在负角的缘故。
发表于 2010-12-11 21:32:56 | 显示全部楼层 来自: 中国辽宁沈阳
找到厂家就好解决了
发表于 2011-4-21 09:58:09 | 显示全部楼层 来自: 中国江苏扬州
很不错的资料,谢谢上传!!
发表于 2013-3-26 14:37:01 | 显示全部楼层 来自: 中国湖南长沙
CBCA平衡阀图
CBCA平衡阀图.jpg

评分

参与人数 1三维币 +3 收起 理由
洪哥 + 3 感谢帮助!

查看全部评分

发表于 2013-3-27 11:27:52 | 显示全部楼层 来自: 中国四川
你看下SUN插装阀样本就明白了啊

评分

参与人数 1三维币 +2 收起 理由
洪哥 + 2 有道理

查看全部评分

发表于 2013-3-29 11:35:29 | 显示全部楼层 来自: 中国上海
其实只要会做油路块的应该都知道啊,你只要搞明白阀上面有3个口,2个阀6个口,其中2个是进油口,2个控制口分别和对面的进油口通,注意孔径大小,还有2个口直接连接油缸的,有杆腔和无杆腔,

评分

参与人数 1三维币 +3 收起 理由
洪哥 + 3 感谢帮助!

查看全部评分

发表于 2013-4-1 09:25:46 | 显示全部楼层 来自: 中国广东江门
还是很不理解阀的内部通路!!!
发表回复
您需要登录后才可以回帖 登录 | 注册

本版积分规则


Licensed Copyright © 2016-2020 http://www.3dportal.cn/ All Rights Reserved 京 ICP备13008828号

小黑屋|手机版|Archiver|三维网 ( 京ICP备2023026364号-1 )

快速回复 返回顶部 返回列表