QQ登录

只需一步,快速开始

登录 | 注册 | 找回密码

三维网

 找回密码
 注册

QQ登录

只需一步,快速开始

展开

通知     

查看: 1978|回复: 6
收起左侧

[求助] 硅橡胶加工

[复制链接]
发表于 2010-7-10 08:57:26 | 显示全部楼层 |阅读模式 来自: 中国陕西西安

马上注册,结识高手,享用更多资源,轻松玩转三维网社区。

您需要 登录 才可以下载或查看,没有帐号?注册

x
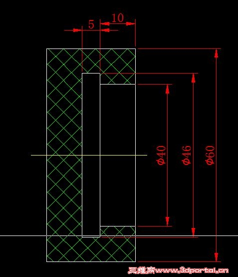
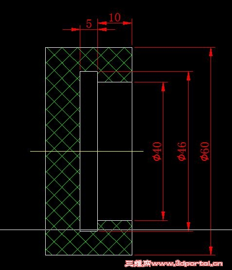
请教高人
$ b5 Z! i( F3 V/ \' q- j$ y: n
2 N& g& k; S( n- h' y7 E2 l$ A( ?这个橡胶零件用在不开模的情况下怎么加工
未命名.JPG
未命名.JPG
发表于 2010-7-10 11:09:21 | 显示全部楼层 来自: 中国河北廊坊
若是硬橡胶,可在车床上加工,夹外圆左端,车内孔、端面及部分外圆,调头车左端面及剩余部分外圆。
 楼主| 发表于 2010-7-10 16:52:46 | 显示全部楼层 来自: 中国陕西西安
硬度在40度左右
发表于 2010-7-10 19:25:25 | 显示全部楼层 来自: 中国四川成都
需要开模。硬度太低了。
 楼主| 发表于 2010-7-13 12:35:02 | 显示全部楼层 来自: 中国陕西西安
能给个模具图吗,想知道这个橡胶模怎么开
发表于 2010-7-14 10:54:43 | 显示全部楼层 来自: 中国江苏南京
橡胶模开模考虑的因素比较多,除了正常的尺寸与公差以外,还要考虑其他情况,比如橡胶的成型收缩率、使用工况下对应的分模线位置等。具体问题具体分析
发表于 2010-7-15 17:17:29 | 显示全部楼层 来自: 中国山东青岛
这个肯定要开模具了,不过你要是用硅橡胶的话,模压应该就可以了!!!!!!
发表回复
您需要登录后才可以回帖 登录 | 注册

本版积分规则


Licensed Copyright © 2016-2020 http://www.3dportal.cn/ All Rights Reserved 京 ICP备13008828号

小黑屋|手机版|Archiver|三维网 ( 京ICP备2023026364号-1 )

快速回复 返回顶部 返回列表