QQ登录

只需一步,快速开始

登录 | 注册 | 找回密码

三维网

 找回密码
 注册

QQ登录

只需一步,快速开始

展开

通知     

查看: 3068|回复: 12
收起左侧

[已解决] 环形槽的加工性

[复制链接]
发表于 2010-7-13 22:22:13 | 显示全部楼层 |阅读模式 来自: 中国四川自贡

马上注册,结识高手,享用更多资源,轻松玩转三维网社区。

您需要 登录 才可以下载或查看,没有帐号?注册

x
本帖最后由 臭屁 于 2010-7-14 15:01 编辑
0 E6 ^5 Y2 X- {8 j) J7 Y  R* r" P2 [6 `6 j
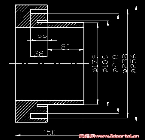
请教一下:下图中的零件的可加工性,加工一环形的槽,宽度较窄,深度较深,如图所示:9 O9 g9 `6 @; J+ O2 z- ~3 X7 [
7 f- _( z/ h; Q, ^6 l
; z: ?; i, l7 Z( f5 t

- z+ w6 S8 i; [/ i7 C' s1、外径189,内径179,加工深度22的环形槽+ r2 ^0 v' V2 U. V& H& O0 F/ c( c4 p
2、外径238,内径218,加工深度38的环形槽4 ?7 I: e1 I/ J0 J; J4 v
可加工吗?
QQ截图未命名.jpg
 楼主| 发表于 2010-7-13 22:24:54 | 显示全部楼层 来自: 中国四川自贡
图中
. I! K/ {; b! ^3 O% K8 b* Z' g1、外径189,内径179,加工深度22的环形槽
4 K4 m) L; }7 U* a' c2、外径238,内径218,加工深度38的环形槽( ^/ v: x! N7 V
可加工吗?
发表于 2010-7-14 10:35:01 | 显示全部楼层 来自: 中国吉林长春
上数控铣,很容易
 楼主| 发表于 2010-7-14 11:45:50 | 显示全部楼层 来自: 中国四川自贡
3# unimont
( X7 D  d" d; `4 l- W4 m上数控铣,很容易
+ h8 p. J" l' x1 Q5 o——————————————————————————————————
  n: H  \: W% L/ Z% V0 _( o车间没有数控铣床,7 a; j2 L0 t. Z) a4 \* f
不知道数控车床能不能加工出来啊?
发表于 2010-7-14 12:31:25 | 显示全部楼层 来自: 中国陕西西安
车不了,车刀没有这么深,铣刀在车床不好偏心, 容易断
发表于 2010-7-14 13:07:25 | 显示全部楼层 来自: 中国台湾
可採取ISCAR端面槽刀
发表于 2010-7-14 13:10:27 | 显示全部楼层 来自: 中国四川资阳
可以考虑专用刀具赛
发表于 2010-7-14 13:44:55 | 显示全部楼层 来自: 美国
楼上的朋友说的是伊斯卡刀具吧,你们用过没有,介绍一下,我司也打算买进这样的车槽刀。
发表于 2010-7-14 13:54:51 | 显示全部楼层 来自: 中国福建三明
本帖最后由 林主0598 于 2010-7-16 08:15 编辑 3 J+ t( t+ d; R" k( R

3 Y  ^8 F2 s& I8 [0 V4 k这个零件设计得不好,工艺性太差了。里面的槽几乎没法加工。数控铣也很难。刀具长度要150以上,且得悬空102长度以上,刀具太容易断了。只加工一两件,多准备几把刀,数控铣慢慢加工也许能成。

评分

参与人数 1三维币 +2 收起 理由
sxw68 + 2 应助

查看全部评分

发表于 2010-7-14 14:02:43 | 显示全部楼层 来自: 中国湖北荆州
这个加工工艺性能不好,加工起来有难度,是否可以考虑分开设计?
发表于 2010-7-14 14:17:08 | 显示全部楼层 来自: 中国广东佛山
工件材质是什么?还有你是大批量生产还是做做样件呢?这个零件铣床也要大功率的,而且刀具必须订做,一般刀具我估计1个零件就要你好几把刀
 楼主| 发表于 2010-7-14 14:59:20 | 显示全部楼层 来自: 中国四川自贡
材质是A105,数量不大,只有2件9 d) _1 W8 r5 F0 F
综合各位的建议和意见,看来我只有分开设计了,多谢各位前辈
发表于 2010-7-21 16:57:56 | 显示全部楼层 来自: 中国江苏苏州
啊  那就没关系了 多准备几把刀 然后数控铣 直接加工 搞定 不就2件嘛  搞
发表回复
您需要登录后才可以回帖 登录 | 注册

本版积分规则


Licensed Copyright © 2016-2020 http://www.3dportal.cn/ All Rights Reserved 京 ICP备13008828号

小黑屋|手机版|Archiver|三维网 ( 京ICP备2023026364号-1 )

快速回复 返回顶部 返回列表