QQ登录

只需一步,快速开始

登录 | 注册 | 找回密码

三维网

 找回密码
 注册

QQ登录

只需一步,快速开始

展开

通知     

全站
3天前
查看: 2366|回复: 9
收起左侧

[讨论] solidworks升级到2010碰到的问题

[复制链接]
发表于 2010-7-15 20:13:56 | 显示全部楼层 |阅读模式 来自: 中国上海

马上注册,结识高手,享用更多资源,轻松玩转三维网社区。

您需要 登录 才可以下载或查看,没有帐号?注册

x
升到2010后请不要后悔呀,工程图转到AUTOCAD后,再编辑其中的汉字,都是乱码了,以前版本没有这种现象的,当然好象只有AUTOCAD2004打开才有这种问题的,好象2007版本没这个问题,不过我单位别人都用2004,所以这个问题不解决真是太郁闷呀!
A.JPG
B.JPG

abc3.rar

16.2 KB, 下载次数: 3

 楼主| 发表于 2010-7-15 20:18:33 | 显示全部楼层 来自: 中国上海
我设置的没问题!请看下图!
c.JPG
 楼主| 发表于 2010-7-15 20:33:22 | 显示全部楼层 来自: 中国上海
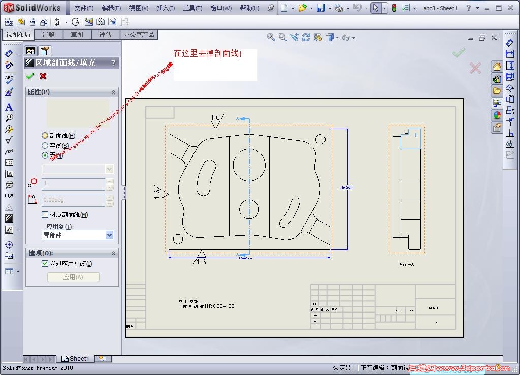
第二个问题!有时想把图纸中的剖面线去掉,但在2010版本把图纸转到AUTOCAD中后却还是出现了!不管什么版本的AUTOCAD都是这样!
d.JPG
e.JPG
f.JPG
 楼主| 发表于 2010-7-15 20:35:38 | 显示全部楼层 来自: 中国上海
这个问题我问过实威科技(SOLIDWORKS国内代理)技术人员,他们也没办法解决!
发表于 2010-7-15 21:00:56 | 显示全部楼层 来自: 中国台湾
使用DraftSight開啟沒這問題~
1.jpg
 楼主| 发表于 2010-7-15 21:09:18 | 显示全部楼层 来自: 中国上海
请问楼上开哪个开关?请贴个图
 楼主| 发表于 2010-7-15 21:11:43 | 显示全部楼层 来自: 中国上海
哦,原来是一个软件,请问哪里下载,操作和AUTOCAD差不多吗?有没有破解版
发表于 2010-7-16 00:51:14 | 显示全部楼层 来自: 中国广东深圳
文字需重新设置,尺寸标注也会有类似的问题
头像被屏蔽
发表于 2010-7-16 09:47:13 | 显示全部楼层 来自: 中国辽宁营口
提示: 作者被禁止或删除 内容自动屏蔽
发表于 2010-7-17 10:04:41 | 显示全部楼层 来自: 中国辽宁丹东
转帖一下别人的:
5 e( ^( l$ D' |) C1 q/ mSolidWorks工程图转成AutoCAD DWG后字体乱码解决8 _- W' [* ^  w1 ]
我在网上找到的方法,其实solidworks帮助文件也有但要一定水平才能看懂,现在复制这个给大家看一下:
* p% w: X# N# j1 m$ j您输入 DXF/DWG 工程图文件时,SolidWorks 可准确显示 AutoCAD 字体,即使您的计算机上没有安装 AutoCAD。SolidWorks 已添加了 True Type 字体以支持常用的 AutoCAD 字体。字体使用位于 \Data\drawFontMap.txt 中的默认映射文件被映射。+ l7 O- e" z# R3 v/ `+ g/ ~1 f  x
2 S) ]3 s  D6 \' T% T6 h( U
在默认映射文件中,左列列举源工程图中的 AutoCAD SHX 或 True Type 字体。右列列举 AutoCAD 工程图文字在新的 SolidWorks 工程图中被映射到的 SolidWorks 或 Windows True Type 字体。您可根据需要编辑映射文件。当将额外的 AutoCAD 字体映射到 SolidWorks 或 Windows True Type 字体时,注意以下情况:
5 d; u% [+ a6 @2 n5 G0 b
  ~1 |- E. L# @两个字体列表必须是简单的字体名称,无扩展名。
& \3 K4 S, A& f( F1 NSolidWorks 或 Windows True Type 字体必须在操作系统的 \Fonts 目录中可用。例如,对于 Windows NT 和 Windows 2000,此为系统驱动器:\WinNT\Fonts;而对于 Windows 9x,此为系统驱动器:\Windows\Fonts。如果 True Type 字体不可用,SolidWorks 工程图文件默认字体将被使用。 - F: `. @3 r  I
SolidWorks 或 Windows True Type 字体还可使用于 SolidWorks 原始文件中。当您保存 SolidWorks 文件为 DXF 或 DWG 文件时,您可使用 drawFontMap.txt 映射文件将任何 SolidWorks 或 Windows True Type 字体反转映射到 AutoCAD SHX 或 True Type 字体。当工程图文件在 AutoCAD 中打开时,将使用确切的字体 - 不需要替换的默认字体。这将改进工程图文件的视觉真实感。# X0 G. J: F/ s) p
3 z$ D* L' M$ |* C
以下列表展示默认映射文件中所包含的字体:: I" s$ r  n$ Q$ T5 `+ \( }
6 ~+ h& P. E. v* L% W
AutoCAD SHX 或 True Type 字体 SolidWorks 或 Windows True Type 字体
: U/ p, c/ H, @complex
' _- e- c2 r( m+ n' ^1 MSWComp & U6 I/ s- I2 m3 L( Z/ o9 R
; Q; R( g$ u$ D
gdt, R6 u* P2 z0 U& M8 R
SWGDT
3 e4 m% y5 s1 f5 O5 G# t; e& A) A% P
gothice
* _: X- V5 @$ h6 g- x0 f) U: @; xSWGothe # J3 P7 J3 X* b) D# _

6 N9 g1 W; r/ B) _2 Vgothicg
# E2 r3 K# r7 B% ]7 k/ o. }SWGothg 8 M; ?+ C% ^) q

/ H7 A1 a1 f  bgothici: n" E& D/ L/ z  E3 x
SWGothi
; @8 W0 F; o8 J9 T5 T9 v: T
2 l: H1 Z+ Z$ D# @6 jgreekc! K0 t6 P" q; ~: m" }
SWGrekc + f+ r; c" o1 l+ X
( @; C& H* h& \1 ^" `
greeks3 `0 M3 l' ]% H
SWGreks
* q) Y; i4 ^( {8 o6 a; ^4 B7 D$ K- e7 L+ ?; C( D7 D* Q
isocp
8 i6 R) j5 C5 H" i; B# dSWIsop1
$ `4 }& `. {7 N/ q7 J* O! p& t6 n
1 {5 a5 [! u# V3 T' |$ l8 s! Z2 ?isocp2
; Z5 ?0 t4 k" L! m; Z3 o" Y) t! RSWIsop2 1 e  i: ?- E# @2 x/ j' ?
6 C6 ~' s( E, w" s7 E
isocp3- p$ ~. _  n- G1 t
SWIsop3 : {' s6 s& I  t# y# Z

! ?5 _( O  D4 U: A  }isoct
  y* }/ L, O+ |& [# l' sSWIsot1
: ^% x9 W- d- B. L; A; r# u9 B& u
$ U* l" ~% U3 {: ?0 k, iisoct2+ H8 \  ?: Y0 f( E6 H
SWIsot2 1 z. j. d- L. B3 g" a0 r

9 v& l3 k8 z( j% f  X6 R, u4 Z' o0 \isoct34 }' R& u* ?' Q. F/ V! I+ i
SWIsot3
$ S3 f6 y. U: m" a) U' m( M6 S) G* p6 U0 [. y+ F- w& W% ~
italic5 j9 u$ z  x6 F. m9 |, D6 ]
SWItal
+ p. ~; I( q+ R5 |+ U
  f; _: f( z  x4 v# u& X# f# U0 xitalicc: W$ C1 w0 D: O( [3 L, E
SWItalc ' x0 ]7 H& j; p! m7 N( H0 C( G
" H  l' D2 {' K6 T: J- t
italict
, c) p& Z. p$ ]' ?; wSWItalt
7 p* e/ y# }; l2 {0 s5 y
# ]# z* H' Z2 Z# K- Kmonotxt0 \$ s+ A: r5 N& W% f
SWMono % ~% _6 w# T9 E+ Q

! h" u. B) X2 N* L+ jromanc5 v2 b- |! t4 m, D4 C' w0 e
SWRomnc
% I6 e$ o. D* H6 }6 r) w
( A* M; u6 B9 N5 n2 ]$ Vromand
/ r3 U2 q$ N# J0 @SWRomnd
( a9 S+ h- C+ b1 V- Z
: M+ ~5 d5 a. [6 V4 W2 O7 Lromans1 g4 B4 t* Y9 I- |5 I5 i6 F( A" y
SWRomns
8 r. K' o4 v: b
; e) n1 S; ~* g4 v4 sromant5 `# |) ~* s1 W& u8 k7 v, }
SWRomnt
. ]" Z/ b4 ~, `8 ~
  V/ c1 S* J3 F6 Uscriptc
  n/ a8 P0 p/ Z+ B/ fSWScrpc 1 W* o) z8 E' Z1 t" J

" ]- [+ L: L) ?9 v' @/ tscripts
0 k( R' ]" O+ ^9 QSWScrps
5 r% I9 J' R1 u* Y) r9 M: \  a4 w! N0 v/ D
simplex
: R& K0 C( e8 w) c9 @  `SWSimp
- \# e9 h' |9 s4 Q) @+ w: h; N& f; ^' \
syastro  Q$ f! H- Z) ~6 R  c0 S7 X
SWAstro ( F; N3 S: w, ?. j$ |

4 @3 Q/ C5 i9 }  L4 h2 P7 Jsymap9 T- r% f  o( r
SWMap ' ^4 T( N* c0 S6 A4 f8 I1 U

2 O3 T" e/ c( S7 c0 j, l! l' \symath. _2 c/ l( g, d7 M6 N$ P. F5 H
SWMath 4 g% ?. A/ `, Y8 `6 d# x

1 R* T' L' g9 l. o5 l, [symeteo
4 L2 S2 E8 [! i$ ^SWMeteo
( @0 v9 h5 }  Q3 |3 q8 {) E3 j4 O1 @- `$ s( P" ?
symusic
" Q* u  Z6 I( i, ~* d  N5 K3 VSWMusic : d$ Z8 m' R9 Q# g* Y
1 b, s/ Q# n+ u( l9 b6 U" {" g
txt
3 S0 a0 ^" s$ V; j$ \SWTxt 8 d4 c" e9 A8 h- x0 Z: f+ h: s! Z9 w
' P1 @# s) Y+ j
- {+ |2 q6 `  x/ {1 n/ p- F) u
看了SolidWorks帮助文件,你是否已经明白了!如果你已经知道如何行动了,下面的就不用看了。如果你还不怎么明白,请继续看下面
3 u; q3 V! t; {1 |: U7 E4 _% M6 S7 q$ U  _) d# n9 F
总结:为什么我们将工程图正常另存为DWG格式后中文编成了问号或乱码不能编辑?原来是AutoCAD字体映射文件中根本就没有中文字体。那我们可以通过编辑AutoCAD字体映射文件drawFontMap.txt来实现。
. n" D- C! B' }# j% e0 b; {2 d& T& `# N" c* |2 L
2.编辑AutoCAD字体映射文件drawFontMap.txt8 y1 S# H/ {4 @3 O& m0 o

( @  W, N. v6 W9 ~; P; Z, yAutoCAD字体映射文件drawFontMap.txt文件位置: SolidWorks安装目录\Data\drawFontMap.txt
$ v* y+ C  l. ^: n. G3 A4 c" N# P% s  F2 u. d3 I
用记事本打开drawFontMap.txt文件,定位到字体最后,添加中文字体,最后保存文件。/ ^$ X# W# N/ f+ q7 h  S" k- A

9 l0 I# e) f. \0 }$ rtxt SWTxt 0.96 (这是未修改原文件中内的一种。txt是AutoCAD SHX 或 True Type 字体。SWTxt是SolidWorks 或 Windows True Type 字体。0.96未知,有可能是字体大小或比例吧,你可以设为0.97。那么我们这么解释:在SolidWorks中用SWTxt字体的文字在AutoCAD就成了txt字体的文字)
5 x* X6 E$ x$ _# l" }! h
7 K, K% ]- c6 q3 k8 X. k7 K我的drawFontMap.txt添加的简体中文字体如下:(适用于简体中文系统)
/ T, n5 h0 _% ]4 `) Q+ c; L# F# p0 c7 }9 \' x3 _
Simplex Simplex 0.97( j8 Y# M+ G1 b2 g
Arial Arial 0.97
; {0 e/ |3 J+ h# p) a6 RSansSerif SansSerif 0.97
4 K" A7 b5 R! c% P' s/ y& w4 pSwis721 Swis721 0.97  t  _. t( I: w3 x6 v1 Z% R
宋体 宋体 0.97# s1 _9 h' c0 n6 C' ~& `6 T0 b
新宋体 新宋体 0.97* c& o, `; h/ [+ \3 k& {
仿宋_GB2312 仿宋_GB2312 0.97
* T( ?* H/ j" E0 ]楷体_GB2312 楷体_GB2312 0.975 i: H7 B: f+ n- _
隶书 隶书 0.97& r/ c  W/ U3 Z5 D- G( A+ J, X  w

1 p" z$ Y. K3 a- r" r& L注:字体名不可错。三种项目项目之间空一格,每种字体三种项目占用一行。编辑时请打开AutoCAD同SolidWorks工程图,看里面有些什么你需要的字体,以确认字体名没有错,且两种软件中都有相同名称的字体。$ O) ~& |0 U$ d% G6 k- w
( L" R# p; q/ d5 ]
繁体中文系统只需对应字体名即可.
, S6 j( S4 e; `1 o  Y# H$ y2 A& }2 `
简体中文系统和繁体中文系统的中文字体名是不相同的,如简体中文系统的宋体,新宋体,繁体中文系统是明细体,新明细体.)
7 |' J. [; F+ U" x; E# W  G7 U5 R2 {3 J. J
是不是就OK了呢?你自己将有中文字体的SolidWorks工程图另存为DWG格式试一下吧,用AutoCAD打开看看达到了你预期的效果没有?如果不满意,请看下一步- w  V- Z$ a( k' g2 ?- ?

. r! X/ b$ c$ T5 s6 P3.设置DXF/DWG输出选项。
* Q- n6 t9 W8 ^
% ~- A5 s: ]+ k: Y% Z在另存为DXF/DWG界面,点击选项进入DXF/DWG输出选项。设置字体为TrueType,线型为AutoCAD标准样式。" t& E! Z8 a" J* H/ i! E

3 [& j( |, Z, P# m& ~5 Y9 q' ]0 a7 |OK,你成功了!
发表回复
您需要登录后才可以回帖 登录 | 注册

本版积分规则


Licensed Copyright © 2016-2020 http://www.3dportal.cn/ All Rights Reserved 京 ICP备13008828号

小黑屋|手机版|Archiver|三维网 ( 京ICP备2023026364号-1 )

快速回复 返回顶部 返回列表