QQ登录

只需一步,快速开始

登录 | 注册 | 找回密码

三维网

 找回密码
 注册

QQ登录

只需一步,快速开始

展开

通知     

全站
4天前
查看: 5462|回复: 26
收起左侧

[已解决] 这个拐角怎么做出来

[复制链接]
发表于 2010-7-20 13:59:38 | 显示全部楼层 |阅读模式 来自: 中国浙江杭州

马上注册,结识高手,享用更多资源,轻松玩转三维网社区。

您需要 登录 才可以下载或查看,没有帐号?注册

x
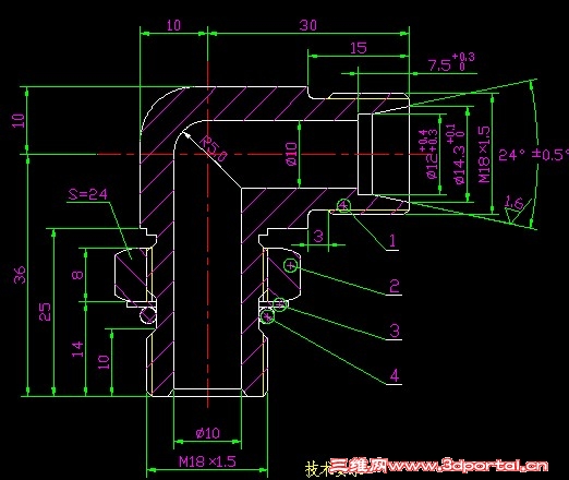
各位大大 帮我看下这个图怎么用SolidWorks做出来 我现在遇到的主要难点就是拐角的地方怎么做出来 只有一边是圆弧过渡,所以扫描是做不出来的
{{KYY0E_XJM]WGDIO}K%9V8.jpg
发表于 2010-7-20 14:05:11 | 显示全部楼层 来自: 中国天津
可以用“扫描+多半径倒角”试试。
 楼主| 发表于 2010-7-20 14:11:57 | 显示全部楼层 来自: 中国浙江杭州
能不能具体点 谢谢
发表于 2010-7-20 14:17:07 | 显示全部楼层 来自: 中国天津
扫描不用解释;变半径倒角可以根据情况在一条边上选择不同的倒角半径。
发表于 2010-7-20 14:29:35 | 显示全部楼层 来自: 中国浙江杭州
这样的拐角,很不符合机械设计。
$ u7 W4 W" u, R9 N8 X5 w( \. p3 i% P' K' d0 b2 M5 E
如果纯粹挑战SW学习画法,可以,
2 ?: D6 G$ S5 ?8 M" G. i5 G$ X
$ E6 P' |1 M4 [- x7 Q8 A实际加工做成这样,那这个设计师,根本就是一个蹩脚货
发表于 2010-7-20 14:35:32 | 显示全部楼层 来自: 中国浙江杭州
设计时,我们还要很注意一点,9 t. }3 a9 ^# `" ]+ A5 L8 y# d- D

( ^- l2 d) Z' X加工工艺的可行性!
 楼主| 发表于 2010-7-20 15:08:48 | 显示全部楼层 来自: 中国浙江杭州
设计成这样可能有特殊的用途吧 我也不知道这个用在哪里的,只知道它叫直角弯头
发表于 2010-7-20 16:01:53 | 显示全部楼层 来自: 中国山东
可以先做外形,最后通孔
发表于 2010-7-20 17:14:41 | 显示全部楼层 来自: 中国浙江杭州
我很真诚的向楼主道歉,是我的武断了!!
, S$ {$ y- W1 c1 G- ?) t没考虑清楚就乱下定论!6 H, i! u0 Z! T/ Q0 m, M
5 l2 h* T: |* d5 i
楼主的90度弯角阀门,是完全符合加工工艺的!!$ |- l, W' D8 B6 z! i: P
是我太武断,我再次向楼主道歉。3 }. W- a3 R8 b4 Z. }/ m" o. I! L
未命名A.jpg
发表于 2010-7-20 17:17:20 | 显示全部楼层 来自: 中国浙江杭州
 点击显示原图大小
2 P1 W5 O6 O4 r
/ {* n' I; V: E 调整大小 未命名aA.jpg
发表于 2010-7-20 17:50:00 | 显示全部楼层 来自: 中国台湾
樓主 您只要在那邊做 旋轉切除就順了
发表于 2010-7-20 19:50:00 | 显示全部楼层 来自: 中国北京
谁说扫描不行?尺寸对了的话就能达到效果
扫描.jpg
发表于 2010-7-20 20:21:54 | 显示全部楼层 来自: 中国北京
扫的时候,轨迹线上拐弯的地方加圆角,圆角半径等于内孔半径即可.....
 楼主| 发表于 2010-7-21 13:26:42 | 显示全部楼层 来自: 中国浙江杭州
我也做出来了 不过我做的比较复杂 分了好几部 基本上是用组合的方式做出来的。, l7 _# |; L$ E
在这里非常感谢以上同仁的热忱指导,帮助很大啊!谢谢
发表于 2010-7-21 14:15:24 | 显示全部楼层 来自: 中国天津
扫的时候,轨迹线上拐弯的地方加圆角,圆角半径等于内孔半径即可...../ x1 S1 n+ r4 Z: A! B0 Q+ d6 p# K
dongxin 发表于 2010-7-20 20:21 http://www.3dportal.cn/discuz/images/common/back.gif
7 x1 Y% k. `2 \- n
与楼主图纸的要求不符。。。。。。
发表于 2010-7-21 15:49:14 | 显示全部楼层 来自: 中国山东烟台
可以说这是solidworks需要改进的地方,像UG、INVENTOR等软件完全能用扫描画出来。而solidworks是不允许扫描的内半径为0即尖角,但只要内半径不为零(比如R=0.0001甚至更小)就能扫描出来。
发表于 2010-7-21 16:04:23 | 显示全部楼层 来自: 中国山东烟台
用扫描也能做出来,但要从中心分开,分别扫描。

aaaa.zip

60.8 KB, 下载次数: 15

发表于 2010-7-22 06:09:46 | 显示全部楼层 来自: 中国山东淄博
这样的拐角,很不符合机械设计。6 d$ p: A4 c% p# I

, W) t& T3 s1 ?' R( [" q如果纯粹挑战SW学习画法,可以,
# t  c* e0 s, F9 ~: |- a$ O2 _/ ?1 E, y5 i7 X  r5 A" o
实际加工做成这样,那这个设计师,根本就是一个蹩脚货5 F6 d7 T2 V9 j; Q
软体动物 发表于 2010-7-20 14:29 http://3dportal.cn/discuz/images/common/back.gif

5 @+ l7 J  f* O; T" l" z: m% ^
哈哈。。。支持楼上这种说法。。。
发表于 2010-7-22 09:45:44 | 显示全部楼层 来自: 中国江苏常州
我很真诚的向楼主道歉,是我的武断了!!
, L! \( M2 E* i没考虑清楚就乱下定论!
3 j( L0 F; w, x9 |# r' ^6 Q+ f4 o# @6 ^- k' K& R' l* a
楼主的90度弯角阀门,是完全符合加工工艺的!!
& S0 m8 v4 r" b% z# k- `# I是我太武断,我再次向楼主道歉。
' t6 A! C; X6 S# R1701293' i5 d: v+ @8 d
软体动物 发表于 2010-7-20 17:14 http://www.3dportal.cn/discuz/images/common/back.gif
* i, L! }2 d: x5 j  Q+ V8 Q% \6 G
用铣刀加工管路合适吗?
发表于 2010-7-22 11:35:51 | 显示全部楼层 来自: 中国浙江杭州
用铣刀加工管路合适吗?
' P) W6 n! C" l  e# C. Tloveelva0 发表于 2010-7-22 09:45 http://www.3dportal.cn/discuz/images/common/back.gif

; h& t! |: }; k7 R
4 M7 t7 Z6 _+ e! C! B) C- f% T* A5 W, m2 \
6 }* p* T- R* G$ c
没问题呀,钻好孔,铣刀沉一下孔就行了,两边沉到底相交就行了。
9 l- l: @8 S9 X' R+ Q
7 L& R( q" U+ w机械加工中,这个孔就是这样加工的呀!!
发表于 2010-7-22 16:53:59 | 显示全部楼层 来自: 中国江苏南京
高手们过招就是热闹啊呵呵
发表于 2010-7-22 17:00:12 | 显示全部楼层 来自: 中国北京
那个应该是铸造圆角,一般都是压铸的铝合金件,再加工。
发表于 2010-7-27 09:54:50 | 显示全部楼层 来自: 中国浙江绍兴
22# fgshrl # U( o% h4 }5 w1 m5 c/ X
19、20楼朋友,我加工这种弯头多年了,实际这种弯头的内壁圆弧要求不高,我们是用钻头头上磨成圆弧直接钻孔成形的。
发表于 2010-7-27 11:09:45 | 显示全部楼层 来自: 中国浙江杭州
同意楼上的!!
发表于 2010-7-27 11:37:40 | 显示全部楼层 来自: 中国江苏苏州
90度管接头,里面ø10的孔,应该不是靠机加工完成的,
4 n. P' e3 h' p! W6 |4 [, z旋转切除应该可以搞定吧
发表回复
您需要登录后才可以回帖 登录 | 注册

本版积分规则


Licensed Copyright © 2016-2020 http://www.3dportal.cn/ All Rights Reserved 京 ICP备13008828号

小黑屋|手机版|Archiver|三维网 ( 京ICP备2023026364号-1 )

快速回复 返回顶部 返回列表