QQ登录

只需一步,快速开始

登录 | 注册 | 找回密码

三维网

 找回密码
 注册

QQ登录

只需一步,快速开始

展开

通知     

查看: 5627|回复: 16
收起左侧

[讨论] 液压阀块的标注方法讨论

[复制链接]
发表于 2010-7-20 21:17:36 | 显示全部楼层 |阅读模式 来自: 中国内蒙古呼和浩特

马上注册,结识高手,享用更多资源,轻松玩转三维网社区。

您需要 登录 才可以下载或查看,没有帐号?注册

x
搞液压的朋友大部分都设计过液压阀块,不论用什么软件绘制,但总存在出图用于加工;其中工程图的标注方法较多,每个人可能都不一样,希望大家各自发表意见,谈谈看法!3 S& M& l. D' v' y# a5 z  C; u
    常用的标注方法如下:. H3 R! w( h0 u" _8 c7 C
    1、阀块的每个面均投影,然后分别以投影边线作为基准标注,然后在表格内表明图上对应编号孔的加工尺寸等;加工方便,但基准边线必须平直,也就是每个基准加工精度须高一些;* R; S# g8 L( F: C8 V8 y- T
    2、如上,在一个图上,以一个孔为基准,其他孔尺寸以此为基准;对于加工工人不方便,累积尺寸误差较大;; z; ~6 D+ p# B$ z& R
    3、按照展开图的方法,以阀块上某一点为原点,进行尺寸标注;工人加工方便,画线方便;! E  J( s2 p9 l/ j; V7 w1 \9 _
    请大家讨论,以上说的可能不太清楚,业内朋友可以图文并茂的来讨论,谢谢大家。

评分

参与人数 1三维币 +2 收起 理由
自流井 + 2 很实用的议题

查看全部评分

发表于 2010-7-21 07:55:21 | 显示全部楼层 来自: 中国宁夏银川
我一直使用展开图标注,清晰、明了。关键还是上面所说,画线累计误差减少。

评分

参与人数 1三维币 +1 收起 理由
自流井 + 1 技术讨论

查看全部评分

发表于 2010-7-21 08:18:19 | 显示全部楼层 来自: 中国江苏南通
我也支持采用一点为基准,展开图示法6 D/ Z  x9 |" {( K
& L1 N* P- p- j/ \* U3 @
主要是生产技工画线和加工上很方便。。从设计的角度看就是为了生产,只有方便于生产才是优秀的设计.
, i5 d0 z* I& ^3 ^9 T
# y6 w4 ~- @3 [4 R5 {8 v并且应加上各孔系的座标及尺寸.相交孔的参数等
 楼主| 发表于 2010-7-21 22:04:01 | 显示全部楼层 来自: 中国内蒙古呼和浩特
大家有图的发个图,更便于描述
 楼主| 发表于 2010-7-21 22:08:22 | 显示全部楼层 来自: 中国内蒙古呼和浩特
4# lszdyx
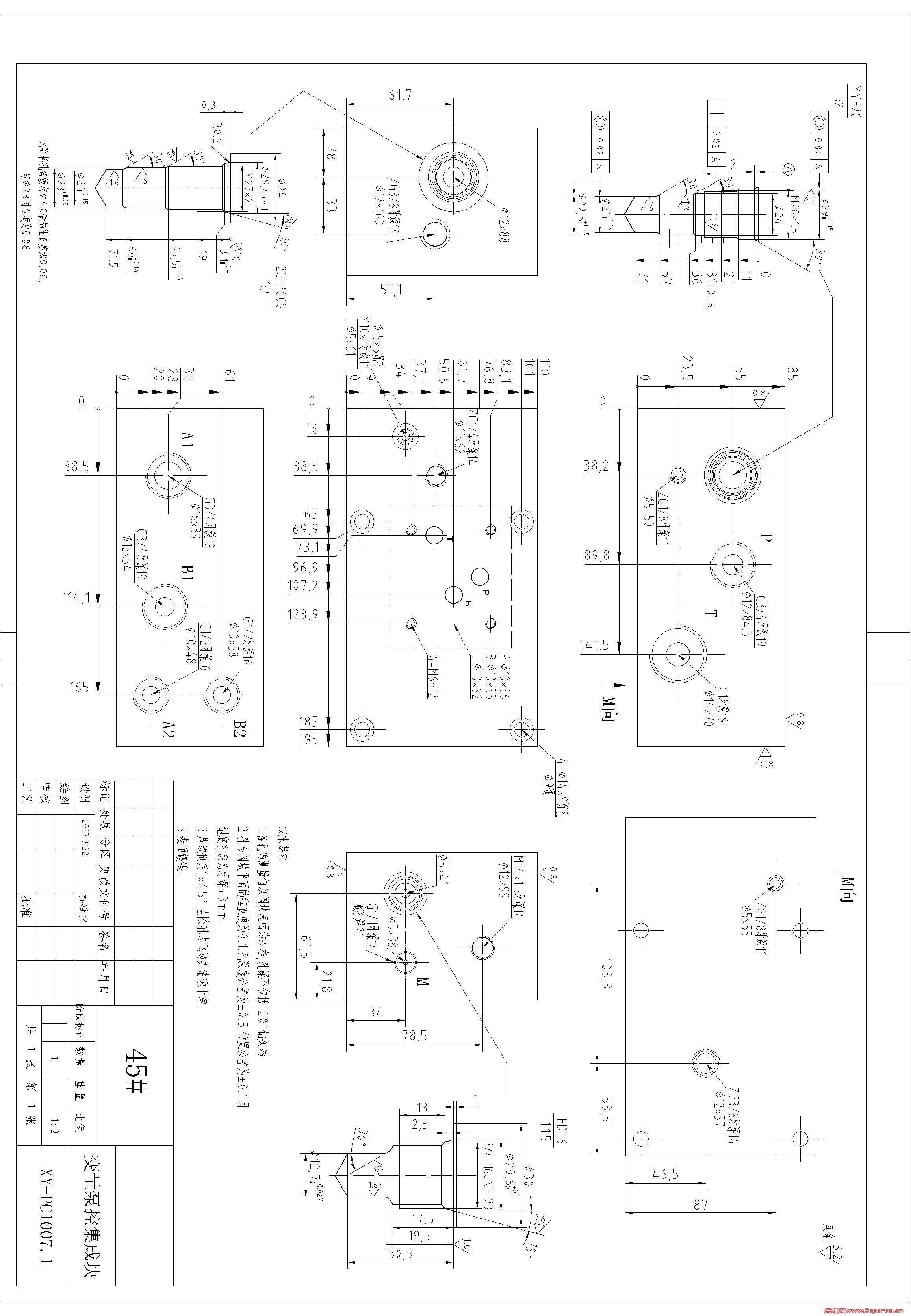
' ]) S* z# ^- z5 j6 j我先发个图,大家说说该图的标注方法,另外大家在展开的时候。6个面是如何展开的?
33333333.jpg
发表于 2010-7-22 19:41:08 | 显示全部楼层 来自: 中国广东深圳
赞成采用零点座标法.我也发一张图参考 变量控制阀块组.jpg
发表于 2010-7-22 21:46:59 | 显示全部楼层 来自: 中国浙江丽水
我都是不标尺寸,只标孔深和大小,我一般都是自己设计自己去打孔,数量多就让工人去做,只有一两块都是自己搞一下算了,让别人去钻一不小心就全完了。自己吧也不画线,打用展开法画图,然后1:1打印,再就是按打印的纸到阀块上打眼。小阀块都是这样搞的,A3纸都打不了的只能是画线了。这样有一点好就是不容易画错线。
 楼主| 发表于 2010-7-22 22:22:05 | 显示全部楼层 来自: 中国内蒙古呼和浩特
6楼的图,不是展开的吧,每个图的0点是三维模型上公共一点吗
 楼主| 发表于 2010-8-11 10:21:06 | 显示全部楼层 来自: 中国内蒙古呼和浩特
高手继续讨论啊
发表于 2010-8-11 13:53:29 | 显示全部楼层 来自: 中国上海
等待高手出来详细举例解答,越详细越好,好让初学之人能够学习学习!
发表于 2010-8-11 16:23:57 | 显示全部楼层 来自: 中国辽宁鞍山
本帖最后由 liuxdliuxd 于 2010-8-11 16:32 编辑 ' W9 x+ h6 Z& N( Y, `9 u$ n
/ |, N! m5 g* d: e8 t
无标题.jpg 我用坐标法标注。
 楼主| 发表于 2010-8-16 16:37:50 | 显示全部楼层 来自: 中国内蒙古呼和浩特
楼上图有点模糊,看不太清楚,能否重新发一份清晰的
发表于 2010-8-17 00:26:14 | 显示全部楼层 来自: 中国辽宁鞍山
本帖最后由 liuxdliuxd 于 2010-8-17 00:28 编辑 / H2 [7 s- `& U$ m9 d; M

. f# h/ A! e! e# |) l' s: i 零件1.rar (49.91 KB, 下载次数: 75)
头像被屏蔽
发表于 2010-8-21 23:34:01 | 显示全部楼层 来自: 中国广东深圳
提示: 作者被禁止或删除 内容自动屏蔽
 楼主| 发表于 2010-12-22 23:26:31 | 显示全部楼层 来自: 中国内蒙古呼和浩特
楼上继续啊
发表于 2012-5-28 18:45:43 | 显示全部楼层 来自: 中国山西太原
拿来学习了,谢谢楼主和各位行业网友、、、
发表于 2013-5-18 10:34:47 | 显示全部楼层 来自: 中国广东佛山
liuxdliuxd 发表于 2010-8-17 00:26 static/image/common/back.gif
6 _. }" S; T/ [: G给你一个CAD图吧2004打开。

2 m; `7 M9 W- _9 A8 `; t5 g2 q' \7 K您的图纸非常好,但字体乱码,可以把字体全部设成宋体,就不会乱码了。这是我的经验之谈
发表回复
您需要登录后才可以回帖 登录 | 注册

本版积分规则


Licensed Copyright © 2016-2020 http://www.3dportal.cn/ All Rights Reserved 京 ICP备13008828号

小黑屋|手机版|Archiver|三维网 ( 京ICP备2023026364号-1 )

快速回复 返回顶部 返回列表