QQ登录

只需一步,快速开始

登录 | 注册 | 找回密码

三维网

 找回密码
 注册

QQ登录

只需一步,快速开始

展开

通知     

查看: 2097|回复: 13
收起左侧

[求助] 公差标注问题,怎么出现这样呢????

[复制链接]
发表于 2010-7-28 09:07:37 | 显示全部楼层 |阅读模式 来自: 中国江苏徐州

马上注册,结识高手,享用更多资源,轻松玩转三维网社区。

您需要 登录 才可以下载或查看,没有帐号?注册

x
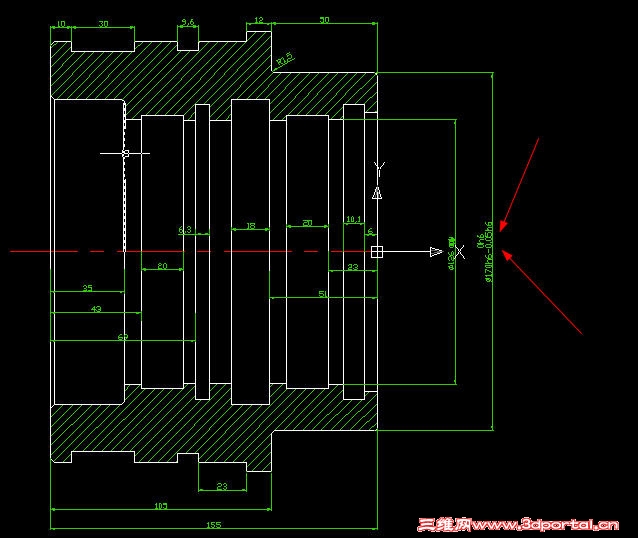
公差标注,上公差和下公差都出现了后缀H。如下图9 e+ m' m. t1 j6 o+ B
cad2006版。不知大家如何解决的啊??
11.png
发表于 2010-7-28 20:32:14 | 显示全部楼层 来自: 中国广东汕头
说下你标准公差的步骤。
发表于 2010-8-6 16:10:25 | 显示全部楼层 来自: 中国北京
从没遇到过这样的问题,应该是公差设置的问题,如2楼说的,过程说下才好判断
发表于 2010-8-9 09:45:36 | 显示全部楼层 来自: 中国江苏无锡
应该是哪设置的问题
发表于 2010-8-9 10:13:37 | 显示全部楼层 来自: 中国辽宁丹东
本帖最后由 wanghy0620 于 2010-8-9 10:19 编辑 & l8 t( m2 {+ |- `

$ ~4 d: n8 J2 E标注公差一般不在标注样式中设定,而是在标注时启动“M”命令,多行文字,输入φ100+0.054^ 0 H8  ,选中公差值单击堆叠。

评分

参与人数 1三维币 +3 收起 理由
2005llnn + 3 应助

查看全部评分

发表于 2010-8-9 12:14:23 | 显示全部楼层 来自: 中国河北唐山
上传文件,立刻就清楚了。
发表于 2010-8-9 15:27:06 | 显示全部楼层 来自: 中国浙江宁波
5楼说的可以试试,
发表于 2010-8-11 15:41:40 | 显示全部楼层 来自: 中国北京
5楼的好强悍,我标公差的时候从没这么干过,
发表于 2010-8-11 15:48:18 | 显示全部楼层 来自: 中国北京
咱都是用天河标公差,省心的很
 楼主| 发表于 2010-8-11 17:17:19 | 显示全部楼层 来自: 中国江苏徐州
这就上传源文件,另做了一个
Snap1.jpg

XG07-56-04.rar

27.09 KB, 下载次数: 4

 楼主| 发表于 2010-8-18 08:59:26 | 显示全部楼层 来自: 中国江苏徐州
怎么又没人关注了呢??
发表于 2010-8-18 09:22:24 | 显示全部楼层 来自: 中国江苏镇江
怎么又没人关注了呢??  `9 X' e5 g8 V/ g! x% y
114669338 发表于 2010-8-18 08:59 http://www.3dportal.cn/discuz/images/common/back.gif

- d! E' w1 s3 D+ I  |2 T6 F. C9 a# q3 b. S8 Z+ |
不是不关注,而是关注了你没好好体会!6 o5 M2 n9 a3 O( C( ^6 w

# {" c& h9 I. j9 f, ^4 g& I8 L# x$ }3 s) u二楼版主问你用什么方法标注的,你没答。6 q( L$ b* `9 x. Y5 i
五楼已经讲了方法你没试!( T/ s8 C! S+ l5 {) H' [, i0 j8 p

/ e* B1 M; ^5 {" ^7 L4 V# V我看了图你就是个后缀h6作怪。. J. @+ K% r9 t! V! i( R
这种标注最好用“堆叠”的方法。
% A, f4 R) U! y& g# |你搜索下版块“公差”就能看到这种方法。
发表于 2010-8-18 12:04:00 | 显示全部楼层 来自: 中国山东烟台
应该是在标注样式中将公差标注的样式设上了
发表于 2010-9-9 15:21:11 | 显示全部楼层 来自: 中国广东广州
是你输入编码出了问题,想这种公差标注,直接在尺寸编辑的时候采用那个a/B来,很方便的!
发表回复
您需要登录后才可以回帖 登录 | 注册

本版积分规则


Licensed Copyright © 2016-2020 http://www.3dportal.cn/ All Rights Reserved 京 ICP备13008828号

小黑屋|手机版|Archiver|三维网 ( 京ICP备2023026364号-1 )

快速回复 返回顶部 返回列表