QQ登录

只需一步,快速开始

登录 | 注册 | 找回密码

三维网

 找回密码
 注册

QQ登录

只需一步,快速开始

展开

通知     

查看: 2956|回复: 24
收起左侧

[已答复] 大家看下这张图,怎么安排工艺比较好

[复制链接]
发表于 2010-8-2 11:28:34 | 显示全部楼层 |阅读模式 来自: 中国江苏无锡

马上注册,结识高手,享用更多资源,轻松玩转三维网社区。

您需要 登录 才可以下载或查看,没有帐号?注册

x
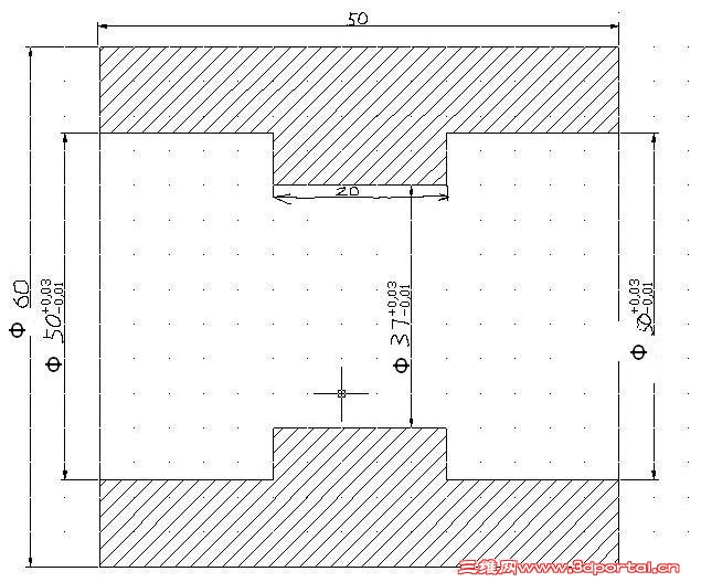
大家看下这张图,怎么安排工艺比较好
5 B* G3 m2 g# K+ {两端Φ50的要同轴度0.01( |* q1 N) e4 h5 c* ~$ n

% J& v1 I! n$ F% p) ~( o 00.JPG
发表于 2010-8-2 13:46:12 | 显示全部楼层 来自: 中国江苏泰州
这个图怎么这么业余,直径符号都没有标。有什么 工艺不工艺,车床车一下就是
发表于 2010-8-2 13:55:31 | 显示全部楼层 来自: 中国江苏无锡
本帖最后由 wyp1234 于 2010-8-2 13:57 编辑 ' p/ U4 q" @+ a# p

8 k' l9 k, R- S5 D9 f0 K- e8 K不需要工艺了,一道车就解决了。太简单的零件可以省略工艺,保证尺寸要求就行了。
发表于 2010-8-2 14:14:37 | 显示全部楼层 来自: 中国湖南长沙
车一下是干不出的,再怎么也得几次对刀走刀谔
发表于 2010-8-2 20:55:52 | 显示全部楼层 来自: 中国陕西汉中
图纸表达不清楚,不知为何物。
发表于 2010-8-2 21:40:15 | 显示全部楼层 来自: 中国河北廊坊
视图表达不清楚,是方还是圆也不清楚,所以无法安排工艺.
发表于 2010-8-2 23:33:21 | 显示全部楼层 来自: 中国江苏苏州
正镗反镗完事。
发表于 2010-8-3 06:03:40 | 显示全部楼层 来自: 中国江苏徐州
在车床上钻孔、镗孔。
发表于 2010-8-3 07:47:08 | 显示全部楼层 来自: 中国江苏徐州
直径5偶的孔正反镗一次加工,可以保证同轴
发表于 2010-8-3 13:33:47 | 显示全部楼层 来自: 中国四川资阳
一次装夹..............
发表于 2010-8-4 08:49:49 | 显示全部楼层 来自: 中国上海
图纸表述不完整吧 ,比如同轴度有要求么
发表于 2010-8-4 11:42:39 | 显示全部楼层 来自: 中国山东青岛
50的长度,一刀能出来
发表于 2010-8-4 11:48:35 | 显示全部楼层 来自: 中国北京
如果只是几根轴的话,建议找正干,如果多,建议做一个芯轴,先夹外圆,37内孔直接到尺寸,然后配做一根芯轴,车一端的孔,掉头,在车另外一端,这样加工出来的同轴度还可以。
发表于 2010-8-4 11:50:19 | 显示全部楼层 来自: 中国北京
一楼说的不错,这图确实很业余
发表于 2010-8-7 13:47:21 | 显示全部楼层 来自: 中国浙江宁波
粗车后,正面搪37MM和50MM2个孔,然后反拉刀加工后面那个50直径的孔......
6 D6 P6 H0 H. |. L! g4 N; f. U8 |% }5 H+ c+ Y! j
测量里面那个孔的量具要找好,不然的话,就得在夹持工装上动脑筋~~~
头像被屏蔽
发表于 2010-8-8 13:08:28 | 显示全部楼层 来自: 中国上海
提示: 作者被禁止或删除 内容自动屏蔽
发表于 2010-8-10 10:13:17 | 显示全部楼层 来自: 中国山东莱芜
在车床上粗钻,但前提一定要保证外圆跳动,上加工中心粗精镗完事。
发表于 2010-8-15 11:04:22 | 显示全部楼层 来自: 中国江苏镇江
车床是可以做的 就是清根有的麻烦
发表于 2010-8-18 22:39:47 | 显示全部楼层 来自: 中国江苏苏州
同轴度0.01mm,一次车出吧,不要考虑二次装夹了,50的长度完全可以的
发表于 2010-8-21 13:32:07 | 显示全部楼层 来自: 中国江苏苏州
毛坯选择好,车好一头端面,外圆,内孔,内孔台阶,调头用芯棒车出总长,内孔,OK,一般的机械都可以满足。
发表于 2010-8-22 18:09:40 | 显示全部楼层 来自: 中国黑龙江齐齐哈尔
视图表达不清楚,是方还是圆也不清楚,所以无法安排工艺 6楼的朋友这图你看不出来是方还是圆¢ 60 看不见
发表于 2010-8-24 13:53:14 | 显示全部楼层 来自: 中国江苏苏州
我发现我的画图已经很烂了,大侠你比我的还烂 呵呵
发表于 2010-8-26 17:29:53 | 显示全部楼层 来自: 中国重庆
首先,你的夹头打跳动要小于0.01;: o& _! x( H9 K; ^' o( J% f- J
其次,一次装夹一刀下,同时注意装夹变形。
发表于 2010-9-2 16:34:04 | 显示全部楼层 来自: 中国江苏苏州
一刀落保证同轴度,- D; L, e3 I; m, Z7 _7 l. Z
单边6.5
" }+ c6 x3 ?1 C/ D# n' L8 a+ C没问题
发表于 2010-9-3 09:09:19 | 显示全部楼层 来自: 中国湖南长沙
车床上,车镗,反镗一次装夹完成,调头平端面
发表回复
您需要登录后才可以回帖 登录 | 注册

本版积分规则


Licensed Copyright © 2016-2020 http://www.3dportal.cn/ All Rights Reserved 京 ICP备13008828号

小黑屋|手机版|Archiver|三维网 ( 京ICP备2023026364号-1 )

快速回复 返回顶部 返回列表