QQ登录

只需一步,快速开始

登录 | 注册 | 找回密码

三维网

 找回密码
 注册

QQ登录

只需一步,快速开始

展开

通知     

全站
9天前
查看: 3760|回复: 12
收起左侧

[已解决] 请教下这弯头怎么脱模

[复制链接]
发表于 2010-8-3 10:17:11 | 显示全部楼层 |阅读模式 来自: 中国河北沧州

马上注册,结识高手,享用更多资源,轻松玩转三维网社区。

您需要 登录 才可以下载或查看,没有帐号?注册

x
本帖最后由 william8499 于 2010-8-3 16:58 编辑 0 R2 }( y% }0 \- U+ H2 Y
8 S6 o% T! ^% g, g  J
求助~~~~5 D; N  P1 N( D) W: O; E' n
请教下这个弯头怎么自动脱模,两端螺纹。- t6 i3 C2 v; S$ p, Q" E

" w: X6 O  k% ?) m8 W* N- w( `  ^( ?( s+ ]2 N
附件为solidworks画的弯头产品三维图。
1.JPG

弯头.part1.rar

1.95 MB, 下载次数: 4

弯头.part2.rar

1.19 MB, 下载次数: 4

发表于 2010-8-3 10:45:34 | 显示全部楼层 来自: 中国浙江嘉兴
应该脱不了模吧,螺纹可以出模以后机床加工上去的
发表于 2010-8-3 11:09:09 | 显示全部楼层 来自: 中国上海
螺纹部分单独加工后嵌入粘合?
发表于 2010-8-3 13:59:30 | 显示全部楼层 来自: 中国广东广州
侧面旋牙,再旋转抽。
 楼主| 发表于 2010-8-3 14:08:26 | 显示全部楼层 来自: 中国河北沧州
怎么侧面旋牙,可以说具体点吗?! I1 ~6 x6 B. P  m+ i  l, m8 z
谢谢 4# 开亮
发表于 2010-8-3 15:47:38 | 显示全部楼层 来自: 中国福建福州
应该用马达可以
发表于 2010-8-5 13:19:57 | 显示全部楼层 来自: 中国四川资阳
两侧均可用旋牙抽再直抽。
 楼主| 发表于 2010-8-5 15:07:37 | 显示全部楼层 来自: 中国河北沧州
旋牙抽再直抽?那侧抽芯的结构好像有点复杂,怎么设计抽芯呢? 7# jwhjj
发表于 2010-8-6 07:43:07 | 显示全部楼层 来自: 中国四川资阳
用两个缸,齿轮齿条就介决了,当然要用拖板,不算复杂也不简单。
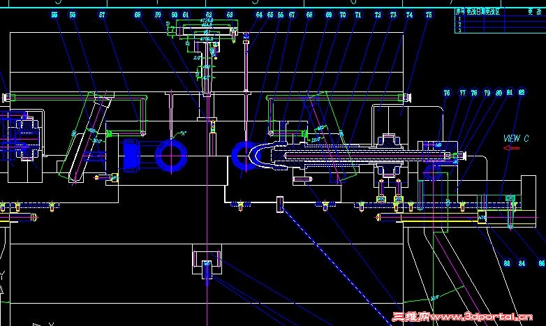
发表于 2010-8-6 15:22:50 | 显示全部楼层 来自: 中国广东广州
本帖最后由 开亮 于 2010-8-6 15:26 编辑
; D  ^& \7 `$ e( N  g
  g) \) ~, o5 p# | 72.jpg
73.jpg

弯管螺纹模具.part1.rar

1.95 MB, 下载次数: 11

弯管螺纹模具.part2.rar

1.95 MB, 下载次数: 9

弯管螺纹模具.part3.rar

1.95 MB, 下载次数: 9

弯管螺纹模具.part4.rar

83.67 KB, 下载次数: 10

评分

参与人数 1三维币 +10 收起 理由
2374 + 10 技术讨论

查看全部评分

发表于 2010-8-7 10:43:17 | 显示全部楼层 来自: 中国北京
好眼熟的模具。
 楼主| 发表于 2010-8-12 08:14:13 | 显示全部楼层 来自: 中国河北沧州
谢谢斑竹,这个方法原来自己想到了,但不知道具体怎么设计,下来好好研究研究。 10# 开亮

评分

参与人数 1三维币 +3 收起 理由
hxg168 + 3 有始有终

查看全部评分

发表于 2012-8-24 09:07:27 | 显示全部楼层 来自: 中国江苏南京
那个文件下不liao哦。
发表回复
您需要登录后才可以回帖 登录 | 注册

本版积分规则


Licensed Copyright © 2016-2020 http://www.3dportal.cn/ All Rights Reserved 京 ICP备13008828号

小黑屋|手机版|Archiver|三维网 ( 京ICP备2023026364号-1 )

快速回复 返回顶部 返回列表