QQ登录

只需一步,快速开始

登录 | 注册 | 找回密码

三维网

 找回密码
 注册

QQ登录

只需一步,快速开始

展开

通知     

全站
7天前
查看: 6649|回复: 34
收起左侧

[求助] 单向跳动0.01怎么保证?

[复制链接]
发表于 2010-8-6 19:38:44 | 显示全部楼层 |阅读模式 来自: 中国广东惠州

马上注册,结识高手,享用更多资源,轻松玩转三维网社区。

您需要 登录 才可以下载或查看,没有帐号?注册

x
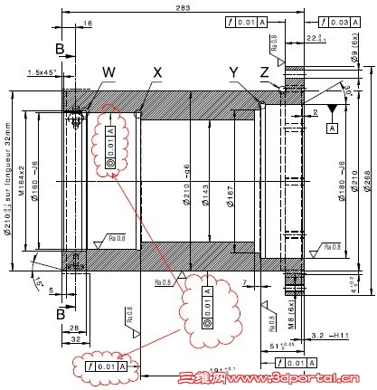
请看附件中的单向跳动怎么保证,车床三爪定位精度都有0.012左右了,何况要加工这么大这么长的0.01的单跳工件?, u; Z+ z3 C) q7 g. q- G
请都高手此工件怎样加工和装夹?2 M% I& T, j5 M, a2 X' u6 I
谢谢!
01.jpg
发表于 2010-8-7 08:14:35 | 显示全部楼层 来自: 中国辽宁大连
这个工件的单向跳动0.01,要求是很严格哈;工装夹具要特别指定,不能使用三爪定位,必须指定心轴定位,利用最大实体原则指定一个定位心轴来加工;

评分

参与人数 1三维币 +2 收起 理由
渔樵 + 2 应助

查看全部评分

发表于 2010-8-7 08:16:38 | 显示全部楼层 来自: 中国辽宁大连
不能使用三爪定位来固定加工,需要制作一个特定工装,利用直径180的最大实体来定位;
 楼主| 发表于 2010-8-12 13:52:54 | 显示全部楼层 来自: 中国广东惠州
谢谢!$ ~% y' I! n$ M" g
我也认为是这样,但实际加工的难度不小啊。
发表于 2010-8-12 14:27:05 | 显示全部楼层 来自: 中国湖南岳阳
从图上看,应该是某主轴套筒,两轴承位的圆柱度、同轴度、端面跳动都必须保证。一般专业化生产都有自己的专用磨床,比如精密双头镗/磨等。

评分

参与人数 1三维币 +2 收起 理由
渔樵 + 2 应助

查看全部评分

发表于 2010-8-18 22:51:23 | 显示全部楼层 来自: 中国江苏苏州
设计小鬼瞎标,为了自己少犯错,根本不考虑加工可行性
发表于 2010-8-19 15:42:59 | 显示全部楼层 来自: 中国江苏无锡
上磨床吧。。。。。。。
发表于 2010-8-19 20:01:34 | 显示全部楼层 来自: 中国上海
加工很麻烦哟,半精加工后要考虑磨内孔来做基准(要专用的磨床)、配心轴(心轴本身首先要达到要求)、磨外圆与端面。
/ \* F. u# h- ]! Q5 i问题是楼主打算用什么方法检测?三座标?

评分

参与人数 1三维币 +1 收起 理由
渔樵 + 1 技术讨论

查看全部评分

发表于 2010-8-24 21:57:43 | 显示全部楼层 来自: 中国河北唐山
先加工210外圆,以210外圆为基准加工180孔
发表于 2010-8-25 05:35:27 | 显示全部楼层 来自: 中国湖南长沙
普通车床精度很难保证工件质量的,上超高精度车床则不如上普通磨床来得容易了
发表于 2010-8-25 07:51:09 | 显示全部楼层 来自: 中国山东烟台
普通机床的回转精度也达不到,用芯轴定位,除非间隙小于0.02,那装夹可就太麻烦了,用涨胎的话,那这个胎具的加工难度就太大了,还得搞精密专用设备

评分

参与人数 1三维币 +1 收起 理由
渔樵 + 1 技术讨论

查看全部评分

头像被屏蔽
发表于 2010-8-25 14:57:57 | 显示全部楼层 来自: 中国辽宁丹东
提示: 作者被禁止或删除 内容自动屏蔽
发表于 2010-8-25 15:26:34 | 显示全部楼层 来自: LAN
这个要用磨床了,车床很难达到的,磨床也够呛啊 !
发表于 2010-8-26 13:33:22 | 显示全部楼层 来自: 中国广东广州
这个图真是你们在用的图吗?  `' q7 X6 b( _7 t" {5 t
件大,同轴度,端面跳动,都是单向0.01,表面粗糙度0.8,要上磨。6 x: ]8 q! g  e4 E8 u
不能一次加工出来,件太长,振刀、有锥度。: V& F. {( G2 }6 N# r
互为基准上精磨,外圆公差及同轴度要控制在0.05范围内。应该可行,就是贵了点。
发表于 2010-8-27 10:20:04 | 显示全部楼层 来自: 中国江苏南京
用四爪定位,爪和工件之间用铜皮垫啊。再用表找正啊。我们就这样干 。
发表于 2012-8-29 23:21:49 | 显示全部楼层 来自: 中国广东东莞
珩磨可以到达
发表于 2012-8-30 09:26:46 | 显示全部楼层 来自: 中国河南信阳
磨床磨轴时靠磨端面,另一面也得靠磨。
发表于 2012-8-30 09:38:29 | 显示全部楼层 来自: 中国山西太原
必须选择加工精度能保证的机床。粗加工后进行热处理,先磨成基准孔,加工成一带芯头的法兰,将工件紧固上去,再磨有同轴度要求和跳动要求求的部位,这样就可保证能达到图纸要求。
发表于 2012-8-30 21:50:10 | 显示全部楼层 来自: 中国浙江宁波
粗加工,热处理,以Φ210外圆为基准,磨右侧Φ180孔,再用芯棒,以右侧Φ180孔为基准,磨Φ210外圆,以及左侧Φ180和其他孔
发表于 2013-11-13 13:19:18 | 显示全部楼层 来自: 中国安徽马鞍山
利用芯轴定位,来进行磨削
发表于 2013-11-13 19:29:44 | 显示全部楼层 来自: 中国浙江杭州
套筒、薄壁累零件用专用涨紧夹具,这样工件在加工过程中不容易变形,当然形位公差也可以有进一步保证
发表于 2013-11-16 12:16:31 | 显示全部楼层 来自: 中国广西钦州
普通车床几乎不能保证那么高的精度,普通车床最极限的做法都要二次装夹,然后打表校正,打表也很难保证这样的精度,所以。。。。。去问问设计的乖乖吧
发表于 2013-11-18 10:02:43 | 显示全部楼层 来自: 中国浙江宁波
在加工中心上一次装夹完全可以做到。
发表于 2013-11-21 10:55:13 | 显示全部楼层 来自: 中国天津
应该是主轴套筒,普通外圆磨床加工就行,他们有专业的工装的
发表于 2013-11-22 08:57:31 | 显示全部楼层 来自: 中国浙江绍兴
主轴套筒精度5级不算高,不过想知道加工完这个东西要多少钱?+ Q3 Z- S6 L, ~- j$ t' @5 Y9 m
发表回复
您需要登录后才可以回帖 登录 | 注册

本版积分规则


Licensed Copyright © 2016-2020 http://www.3dportal.cn/ All Rights Reserved 京 ICP备13008828号

小黑屋|手机版|Archiver|三维网 ( 京ICP备2023026364号-1 )

快速回复 返回顶部 返回列表