QQ登录

只需一步,快速开始

登录 | 注册 | 找回密码

三维网

 找回密码
 注册

QQ登录

只需一步,快速开始

展开

通知     

查看: 2071|回复: 12
收起左侧

[已答复] 加工中遇难题,急!请高手指教!!!

[复制链接]
发表于 2010-8-11 11:12:33 | 显示全部楼层 |阅读模式 来自: 中国江苏苏州

马上注册,结识高手,享用更多资源,轻松玩转三维网社区。

您需要 登录 才可以下载或查看,没有帐号?注册

x
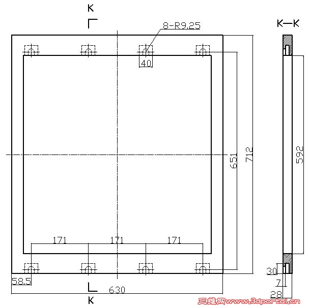
nyk03-01.jpg
2 H/ Z1 E, a4 K! Z2 }4 ~如图所示:图中40×30×10.5方槽怎么加工?
( g8 c8 z# P* G0 ^9 D, W1 c! j) I6 {1 R: b# J1 y
高手指教!!!
3 R0 p' D, G) n/ _0 m, \( F# Z1 F$ s8 C0 t, Q
非常感谢!!!
发表于 2010-8-11 11:29:23 | 显示全部楼层 来自: 中国台湾
使用T型銑刀或圓鋸片銑刀加工
发表于 2010-8-13 21:04:03 | 显示全部楼层 来自: 中国江苏常州
改设计吧。改成40X30的腰型槽。
发表于 2010-8-13 22:10:14 | 显示全部楼层 来自: 中国湖北荆州
这种结构不太合理。不好加工。
发表于 2010-8-14 12:27:06 | 显示全部楼层 来自: 中国浙江绍兴
1  方槽用铸造方法获得,半圆插口可以铣成。
( _, o- m  l, d  _9 S5 o' s2  方槽改成半圆槽,可用半圆头螺栓联接,就可方便加工。2 A9 D: F, Z1 |7 q4 D1 |" W% o* l
3  若非要这样,就用电火花加工,成本高、效率低。

评分

参与人数 1三维币 +3 收起 理由
xl.zhuo + 3 技术讨论

查看全部评分

发表于 2010-8-14 18:37:20 | 显示全部楼层 来自: 中国四川资阳
学习帖子 学习了
发表于 2010-8-14 18:57:50 | 显示全部楼层 来自: 中国江苏常州
应该参考5楼的意见,以采用半圆槽为佳。
发表于 2010-8-16 09:33:17 | 显示全部楼层 来自: 中国湖北十堰
支持五楼的意见!!!!
头像被屏蔽
发表于 2010-8-16 09:54:53 | 显示全部楼层 来自: 中国辽宁大连
提示: 作者被禁止或删除 内容自动屏蔽
头像被屏蔽
发表于 2010-8-17 22:20:41 | 显示全部楼层 来自: 中国上海
提示: 作者被禁止或删除 内容自动屏蔽
发表于 2010-8-18 17:07:49 | 显示全部楼层 来自: 中国黑龙江哈尔滨
建议更改设计,如果实在是不能更改的话和先加工上端豁口后用T型槽刀进行粗加工。
! E8 r5 j* W! m2 K7 S& j然后用立铣刀进行精加工及清根加工,但是也是属于极小圆弧过度,并非直角形槽。

评分

参与人数 1三维币 +2 收起 理由
xl.zhuo + 2 技术讨论

查看全部评分

发表于 2010-8-18 17:16:28 | 显示全部楼层 来自: 中国上海
为什么要设计成方槽?楼主如果数量多的话还是建议更改设计。6 n6 R( q  x1 K4 x! f* [
加工一件同意11楼的方法。

评分

参与人数 1三维币 +2 收起 理由
xl.zhuo + 2 技术讨论

查看全部评分

发表于 2010-8-27 11:18:01 | 显示全部楼层 来自: 中国江苏南京
小铣刀好像不好修吧,毕竟尺寸在那里啊。个人认为这是不是用来配合紧螺栓用的,是的话可以改的。
发表回复
您需要登录后才可以回帖 登录 | 注册

本版积分规则


Licensed Copyright © 2016-2020 http://www.3dportal.cn/ All Rights Reserved 京 ICP备13008828号

小黑屋|手机版|Archiver|三维网 ( 京ICP备2023026364号-1 )

快速回复 返回顶部 返回列表