QQ登录

只需一步,快速开始

登录 | 注册 | 找回密码

三维网

 找回密码
 注册

QQ登录

只需一步,快速开始

展开

通知     

全站
5天前
查看: 1770|回复: 5
收起左侧

[求助] 电路板的受力分析

[复制链接]
发表于 2010-8-26 12:48:23 | 显示全部楼层 |阅读模式 来自: 中国陕西西安

马上注册,结识高手,享用更多资源,轻松玩转三维网社区。

您需要 登录 才可以下载或查看,没有帐号?注册

x
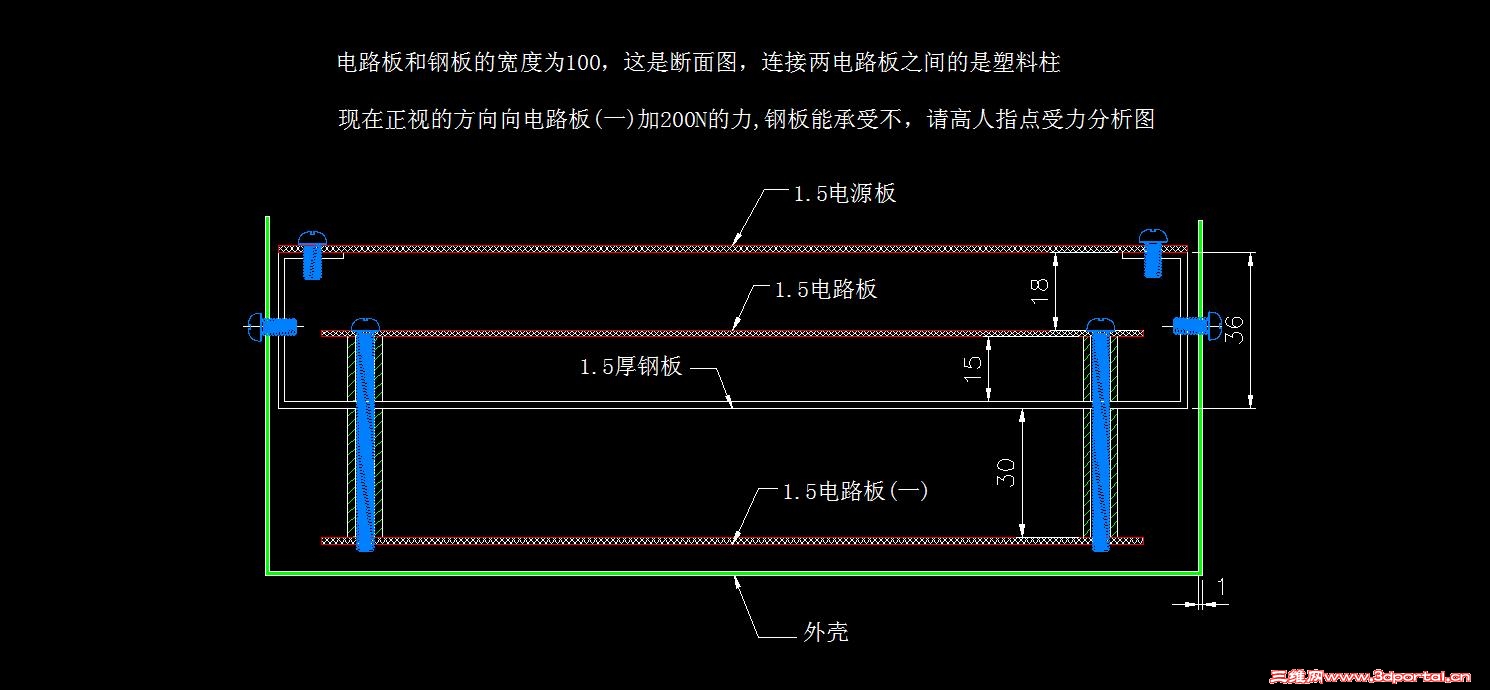
电路板的受力分析
机械图100823.jpg
发表于 2010-8-26 13:56:09 | 显示全部楼层 来自: 中国江苏常州
看你侧面的螺钉有几个?是多大的。
 楼主| 发表于 2010-8-26 18:35:53 | 显示全部楼层 来自: 中国陕西西安
2# 千军一将
! d7 L0 d1 j0 q: J' i! q9 L  b' G+ N
! l# a2 H- E; h) v& J# `! Z单侧面4个M3沉头螺钉
( D7 C2 e# ]: {% ^5 D) Q" I
; _- |9 Y" O. G* |
9 c. R* b' [+ ~  x! m板子尺寸200*100*1.5
发表于 2011-3-21 09:54:34 | 显示全部楼层 来自: 中国湖北武汉
楼主,你的“能承受不”的定义是什么?。。。。。。分析受力图还差些要素,例如受力点,受力是集中载荷?均匀分布载荷?。。。。。
发表于 2011-3-21 09:58:08 | 显示全部楼层 来自: 中国山西太原
“正视方向向电路板加200N的力”,也就是垂直于纸面的力。“单侧面4个M3沉头螺钉(图中画的是半圆头螺钉)”,因钻孔有误差设单侧面有3个螺钉受力,两边共6个螺钉受剪切力。6个螺钉的受力面积为0.2848cm^2,受力为200N=20kgf,受的剪切应力为:20/0.2848/10MPa=7.02MPa: ?( |( e/ n/ i% m
螺钉剪切强度足够!电路板受挤压,受力面积更大,不必进行强校核。

评分

参与人数 1三维币 +2 收起 理由
天际孤帆 + 2 鼓励交流

查看全部评分

发表于 2011-3-24 08:23:56 | 显示全部楼层 来自: 中国广东惠州
螺钉的受力面积为0.2848cm^2,你是怎么计算的
发表回复
您需要登录后才可以回帖 登录 | 注册

本版积分规则

Licensed Copyright © 2016-2020 http://www.3dportal.cn/ All Rights Reserved 京 ICP备13008828号

小黑屋|手机版|Archiver|三维网 ( 京ICP备2023026364号-1 )

快速回复 返回顶部 返回列表