QQ登录

只需一步,快速开始

登录 | 注册 | 找回密码

三维网

 找回密码
 注册

QQ登录

只需一步,快速开始

展开

通知     

全站
4天前
查看: 3948|回复: 18
收起左侧

[已解决] 这张板金工程图这样出图可以吗?

[复制链接]
发表于 2010-8-29 12:48:31 | 显示全部楼层 |阅读模式 来自: 中国浙江丽水

马上注册,结识高手,享用更多资源,轻松玩转三维网社区。

您需要 登录 才可以下载或查看,没有帐号?注册

x
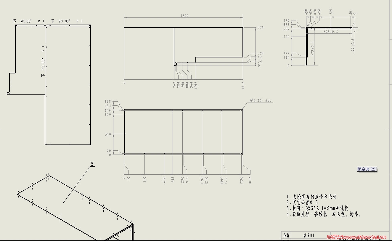
这是一块机架外壳的板金结构,这张板金工程图这样出图可以吗?本人第一次出图,搞不太清楚要求,请各位指点一下。
" K2 N* S# z" c" K6 W2 m, f3 E1.尺寸标注及其它标注
' B% I: L. Q. i5 x* n1 q  G* L. N2.技术要求; n; Y( T6 S- q+ `; ~
3.孔表
0 k# d( Q$ o, Q' ?4.视图布局
/ J( s1 ~+ d% ^以上几点还有什么问题?那位朋友帮忙出个样板图好吗?谢谢了!4 I( h* a3 h7 `. y3 m
2010-8-29 12-31-44.jpg 2010-8-29 12-29-09.jpg 9 i5 T7 g) R% [! d& ^
板金01.rar (296.83 KB, 下载次数: 71)
发表于 2010-8-29 16:07:22 | 显示全部楼层 来自: 中国广东佛山
我还没见过钣金件用孔表的,当然我的见识可能浅薄。
 楼主| 发表于 2010-8-29 18:34:46 | 显示全部楼层 来自: 中国浙江丽水
我还没见过钣金件用孔表的,当然我的见识可能浅薄。
; S$ P) c1 i4 s8 z- B) L. reasyb 发表于 2010-8-29 16:07 http://www.3dportal.cn/discuz/images/common/back.gif
/ }& K. ?/ N. L& o( j8 U0 f1 c
孔主要是用来固定板金在机架外壳上的,不用孔表那尺寸标注不是很麻烦吗?

评分

参与人数 1三维币 +2 收起 理由
chenjun520601 + 2 技术讨论

查看全部评分

发表于 2010-8-29 19:10:04 | 显示全部楼层 来自: 中国台湾
本帖最后由 hottee2009 于 2010-8-29 19:13 编辑
/ w$ n7 E6 C5 l# D# p& \
/ j7 F. M/ j/ Z+ K8 ~* d如果出给您自己可以,要给别人简单的说不可以出图!!
 楼主| 发表于 2010-8-29 21:08:14 | 显示全部楼层 来自: 中国浙江丽水
帮忙指出点问题吧,或帮忙出一张示范一下好吗?源文件在上面了。
发表于 2010-8-29 23:18:59 | 显示全部楼层 来自: 中国台湾
您确定您的尺寸要精确到小数点后3位??加工厂家找到了吗??
 楼主| 发表于 2010-8-29 23:41:55 | 显示全部楼层 来自: 中国浙江丽水
6# hottee2009 & }) B- K8 i) p# W  W8 A7 Z1 E" W
精确小数是系统自动生成的,只要在技术要求中再去规定一下就可以了,有0.5就可以了。请求帮忙出个图吧,谢谢你了!; h0 V/ U% `! D8 W
朋友若是行家我们也许可以合作?
发表于 2010-8-30 09:50:34 | 显示全部楼层 来自: 中国浙江金华
只要加工者能读懂就好了!
发表于 2010-8-30 13:04:41 | 显示全部楼层 来自: 中国江苏苏州
本帖最后由 tony_hao 于 2010-8-30 13:15 编辑 ; d" ?6 a& W7 z8 \$ U
8 l* v& M7 d) a' X
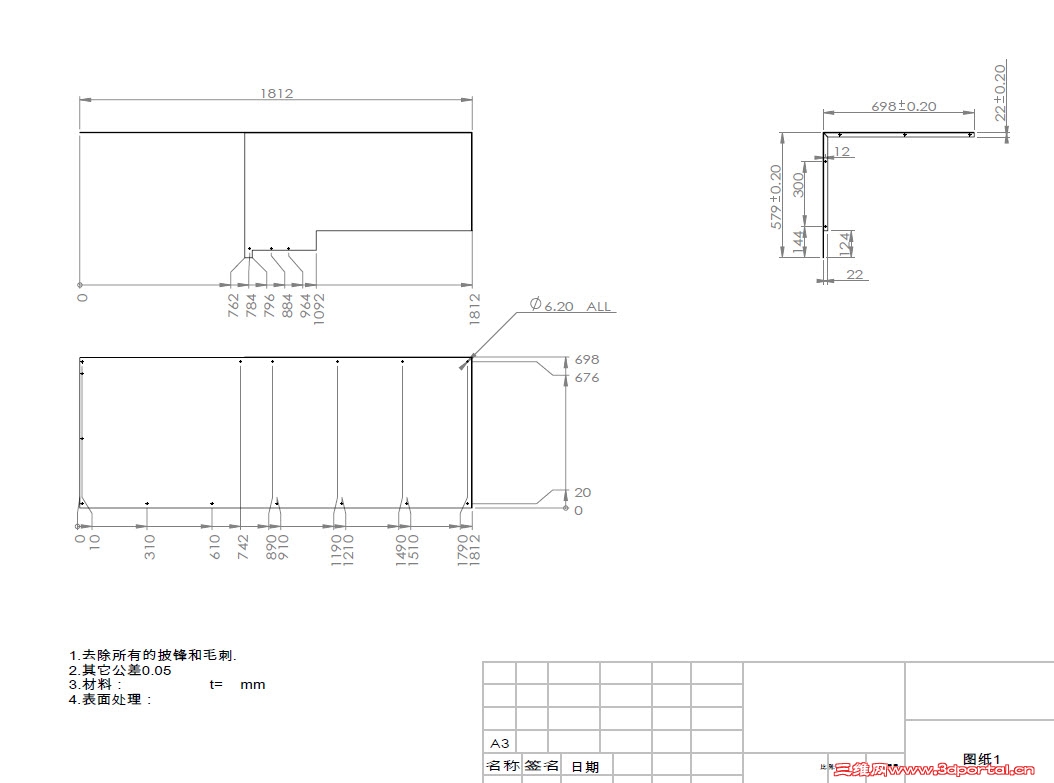
大概弄了一个,尺寸我没有标全。最好不要给展开,每个公司的展开工艺都有点不一样的,只能拿来参考,不能用来标注尺寸。
/ H7 z# t) ^3 h7 w9 F% B9 C! S- A不好意思,折弯尺寸精度要求0.50可以了,0.20要求有点高了,600的尺寸,又是用来安装的。那个20的折弯尺寸就0.20

XKQ-701-00-06-01.PDF

151.11 KB, 下载次数: 44

评分

参与人数 1三维币 +3 收起 理由
chenjun520601 + 3 应助

查看全部评分

 楼主| 发表于 2010-8-30 15:16:33 | 显示全部楼层 来自: 中国浙江丽水
本帖最后由 xf81519 于 2010-8-30 15:17 编辑 ; z/ ]+ j/ ]$ Y4 P* I% o2 Z

) z  q" t6 O: p' `5 r) k9# tony_hao
2 s1 I4 G* n% G7 a! L! [非常地谢谢!你给出了我的问题,这是我想要的,我想再问下:, g+ C7 y. C  V: X7 I
1.“600的尺寸”是指什么?我不太理解。# L4 w6 D/ Y8 o" Y4 P
2.用孔表来标注孔是否也可以?常用吗?
4 a- R: C. m, f3 ?0 q3.技术要求中,我想喷漆,先要如何处理?( b2 W6 @% ?6 Z1 t% P, }
2010-8-30 15-12-21.jpg
发表于 2010-8-30 22:15:48 | 显示全部楼层 来自: 中国浙江宁波
做钣金可加QQ76241189  一起来探讨 呵呵
发表于 2010-8-31 08:45:32 | 显示全部楼层 来自: 中国江苏苏州
本帖最后由 tony_hao 于 2010-8-31 08:47 编辑
, h- t" {$ ^' A  t/ Z- a8 M
! P+ Q; e$ U, L% {4 L10# xf81519 - [( T" a5 n/ c" A+ m) u; c0 q( b$ l
1 .600的尺寸,是指597和698的尺寸,我意思是600左右的尺寸(这里是指折弯尺寸)./ u2 @  |5 e, p% ^  {+ [
2.孔太多的话,用孔表也可以,但你这一种孔就算了吧.
' U  }2 O0 }" n+ j' w% t2.要表面处理的话,你要告知颜色,光泽度,色差,表面纹路,附着力等等.(如果你是问:板材如何前处理的话,那是供应商的工艺了,就不用你操心了)

评分

参与人数 1三维币 +3 收起 理由
华氏911 + 3 技术讨论

查看全部评分

发表于 2010-8-31 09:03:24 | 显示全部楼层 来自: 中国天津
如果已经确定加工商了,就管他们要折弯系数表,折弯半径,这样直接做出来的钣金展开图给他就行,不用标注,然后只给折弯图。你这样就太麻烦了

评分

参与人数 1三维币 +2 收起 理由
华氏911 + 2 技术讨论

查看全部评分

发表于 2010-8-31 09:26:51 | 显示全部楼层 来自: 中国广东东莞
远东地区相去甚远某某

评分

参与人数 1三维币 -3 收起 理由
华氏911 -3 灌水

查看全部评分

 楼主| 发表于 2010-8-31 11:06:11 | 显示全部楼层 来自: 中国浙江丽水
本帖最后由 xf81519 于 2010-8-31 11:14 编辑 & c# C, `1 x5 P$ H4 O6 E
: H& K; V1 o/ l) A3 f2 [  O# \
我做了一张,这样可以了吗?帮忙修改一下,谢谢!
# Y" q" A; v7 d  Z+ X+ B3 `! Q6 D
; O1 k# d* @$ V8 l
( z" i" H5 |' A3 a4 E2 @& R. `6 ~ 工程图1.rar (113.46 KB, 下载次数: 4)
2010-8-31 11-11-13.jpg
发表于 2010-8-31 11:33:55 | 显示全部楼层 来自: 中国江苏苏州
15# xf81519
  w% K9 C  U; A- B* G7 q  Z3 e其它公差0.05吧,0.5太大了,(这里的其它尺寸其实大部分就是指冲切尺寸)

评分

参与人数 1三维币 +2 收起 理由
chenjun520601 + 2 继续应助!

查看全部评分

 楼主| 发表于 2010-8-31 11:54:57 | 显示全部楼层 来自: 中国浙江丽水
16# tony_hao 0 K6 T; O% {; n" c% k( o: T
好的,谢谢!我能联系你吗?QQ:283523334   手机:13587181519
发表于 2010-9-1 08:12:54 | 显示全部楼层 来自: 中国台湾
孔表在很多国家标准是允许的$ k" `6 I+ U1 W* u
下为JIS标准& b' Y7 I& A  T" Y8 U. F  M  w
0 f% g  R: E- f4 q
2 G! C2 Y' h) l) S/ G" Q, L

* O7 M2 g1 n0 [' g+ s. ~2 u# Q q1.gif
( I6 X2 p8 T* p( g( R1 c
发表于 2010-9-1 08:44:33 | 显示全部楼层 来自: 中国台湾
至于公差看楼主使用的加工设备如何6 ~4 N! D0 y7 K; ]
如为CNC设备加工精度可到0.017 {0 q, u9 x7 b. t4 ~9 B$ a8 V
如为一般手工标定尺寸那公差定为0.5为合理; ~- v" _0 E' k8 g7 P6 q
另钻孔尺寸如为等距改用等分法标注(手工标定尺寸)+ ~  E2 ]2 F6 g# z7 S9 b
孔的尺寸∮6.2与∮6.20两者差别很大使用设备也相差很大
' q, o) m7 U# F  {4 z+ J8 Z: E同样∮6.2的钻头与∮6.20钻头价格也有差(有些小地方∮6.20钻头可能还买不到)
发表回复
您需要登录后才可以回帖 登录 | 注册

本版积分规则


Licensed Copyright © 2016-2020 http://www.3dportal.cn/ All Rights Reserved 京 ICP备13008828号

小黑屋|手机版|Archiver|三维网 ( 京ICP备2023026364号-1 )

快速回复 返回顶部 返回列表