QQ登录

只需一步,快速开始

登录 | 注册 | 找回密码

三维网

 找回密码
 注册

QQ登录

只需一步,快速开始

展开

通知     

全站
4天前
查看: 1623|回复: 3
收起左侧

[已解决] NX7制作工程图 怎么画阶梯剖啊 请高人指点

[复制链接]
发表于 2010-9-10 14:18:08 | 显示全部楼层 |阅读模式 来自: 中国河北秦皇岛

马上注册,结识高手,享用更多资源,轻松玩转三维网社区。

您需要 登录 才可以下载或查看,没有帐号?注册

x
NX7制作工程图 怎么画阶梯剖啊 请高人指点
发表于 2010-9-11 21:59:06 | 显示全部楼层 来自: 中国四川广元
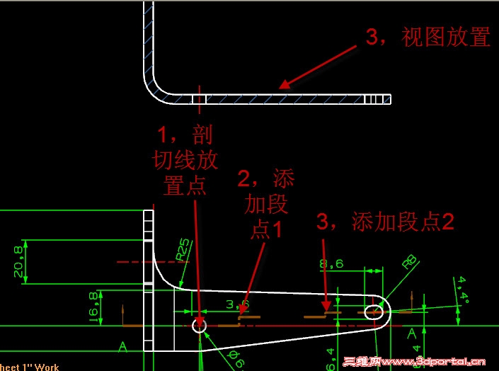
在剖切时用“添加段”$ V) X8 Q- U+ P! q+ Q! N7 H
[localimg=180,100]1[/localimg][localimg=130,150]2[/localimg]
发表于 2010-9-11 23:25:31 | 显示全部楼层 来自: 中国四川广元
在剖切时用“添加段”选择要阶梯剖的位置即可。[localimg=180,100]1[/localimg][localimg=130,150]2[/localimg]
发表于 2010-10-26 18:39:15 | 显示全部楼层 来自: 中国四川广元
不好意思,图片未传上,补图:
' o: H- v) ^; S# s+ I. s% n+ \ 1.jpg 2.jpg

评分

参与人数 1三维币 +5 收起 理由
beyond2009 + 5 应助

查看全部评分

发表回复
您需要登录后才可以回帖 登录 | 注册

本版积分规则

Licensed Copyright © 2016-2020 http://www.3dportal.cn/ All Rights Reserved 京 ICP备13008828号

小黑屋|手机版|Archiver|三维网 ( 京ICP备2023026364号-1 )

快速回复 返回顶部 返回列表