QQ登录

只需一步,快速开始

登录 | 注册 | 找回密码

三维网

 找回密码
 注册

QQ登录

只需一步,快速开始

展开

通知     

查看: 2017|回复: 8
收起左侧

[讨论] 一个铜条加工工艺的问题

[复制链接]
发表于 2010-9-15 15:49:36 | 显示全部楼层 |阅读模式 来自: 中国江苏苏州

马上注册,结识高手,享用更多资源,轻松玩转三维网社区。

您需要 登录 才可以下载或查看,没有帐号?注册

x
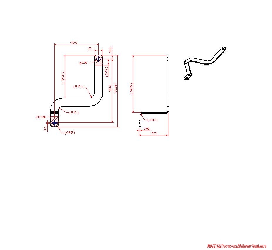
哪位朋友有做关于铜条加工的?对于像如下图示的产品,其加工的工序是怎样的?先折弯再加工孔吗?是用折弯机加工的吗?谢谢!
: Z4 B% W* h1 ^" i' C7 l4 R. J 36_362746_f4b11861f7e3b8f.jpg
发表于 2010-9-15 16:19:35 | 显示全部楼层 来自: 中国湖南长沙
先折弯再加工孔这是肯定的,看你的图只怕不能用用折弯机加工,很可能要加热后在简单模具内弯形,否则会变形严重。
 楼主| 发表于 2010-9-15 20:29:13 | 显示全部楼层 来自: 中国江苏苏州
材料是紫铜的,也需要加热后加工吗?
发表于 2010-9-15 21:26:44 | 显示全部楼层 来自: 中国江苏常州
做个折弯夹具,先加工孔在折弯,应该没问题的。。。
发表于 2010-9-16 11:31:26 | 显示全部楼层 来自: 中国山西太原
加工顺序:先按展开长度下料,作一简单模具压制成形,最后划线钻孔。在折弯机上不宜加工。
 楼主| 发表于 2010-9-16 12:34:09 | 显示全部楼层 来自: 中国江苏苏州
是用铜条的挤型材加工的。为什么不能在折弯机上加工的?谢谢!
发表于 2010-9-17 09:28:06 | 显示全部楼层 来自: 中国浙江宁波
我的建议是:1、开折弯模在冲床上加工。2、因为是紫铜,不好钻孔用冲孔,只有折弯前冲孔和折弯后冲孔都可以,这主要取决于你要加工零件的批量和模具的制造成本,
 楼主| 发表于 2010-9-17 11:06:28 | 显示全部楼层 来自: 中国江苏苏州
因为我们类似这样的产品较多,如果用冲压加工的话,需要较多冲模,这样模具费会很高的,所以希望是不用模具加工而使用折弯机加工的。
发表于 2010-9-17 13:09:42 | 显示全部楼层 来自: 中国浙江宁波
你这个零件的一般有2-3套模具就可以了,冲裁模具不可避免,主要成本也在冲裁模具上,折弯模具造价不会很高,而且二次弯曲用同一套模具即可解决,你如果用折弯机折弯精度不会很高,同时效力相对低一点。这些楼主都应考虑。
发表回复
您需要登录后才可以回帖 登录 | 注册

本版积分规则


Licensed Copyright © 2016-2020 http://www.3dportal.cn/ All Rights Reserved 京 ICP备13008828号

小黑屋|手机版|Archiver|三维网 ( 京ICP备2023026364号-1 )

快速回复 返回顶部 返回列表