QQ登录

只需一步,快速开始

登录 | 注册 | 找回密码

三维网

 找回密码
 注册

QQ登录

只需一步,快速开始

展开

通知     

查看: 1926|回复: 5
收起左侧

[求助] AM的倒角标注问题

[复制链接]
发表于 2010-9-20 10:35:03 | 显示全部楼层 |阅读模式 来自: 中国天津

马上注册,结识高手,享用更多资源,轻松玩转三维网社区。

您需要 登录 才可以下载或查看,没有帐号?注册

x
AM有没有专门标注倒角的命令
7 G" R4 G  S0 q- [- P+ L4 Q4 k现在每次标注倒角都是用注释命令+ h, Z0 t0 z+ T( t3 f8 D7 G
比较麻烦
发表于 2010-9-21 08:16:45 | 显示全部楼层 来自: 中国湖南益阳
选择AM倒角时,不要急于执行命令,先进入倒角设置,勾选“在倒角上插入标注”,并在标注样式中选择合适的标注形式,然后执行倒角。注意:标注文字一般在第一选择边侧。
发表于 2010-9-21 08:19:56 | 显示全部楼层 来自: 中国湖南益阳
还有,倒角时如果没有勾选“倒角时插入标注”,也可在倒角后执行倒角标注,ACADM2010及2011均提供了这个命令。以前版本不知有没有。
 楼主| 发表于 2010-9-24 13:47:40 | 显示全部楼层 来自: 中国天津
3# xxyumingao
% Q7 d& ~& Q; ^) x+ x' Q, j8 e' z/ \  \0 R1 j- y4 ~
1 G4 [% X* S! m+ n9 h# z* B1 J$ F
; g: T2 X4 P! H! z
感谢你的指点,基本解决。
. ~8 Q0 P0 J! j4 `( x: u8 O但还有一点小问题,向你请教
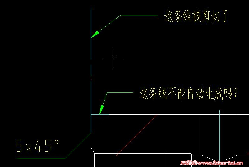
* A* s! P! }1 U; I) y" M8 _+ d我想标注成这样,如下图( v$ q9 {. C9 c  @: @! k4 J- R/ H
目标样式.jpg / u8 j4 @1 V. j5 K& ^5 A( w; O

+ t6 N. j! s4 `% U但AM只能标注如下图效果5 O8 s& \3 Y4 h( N7 z7 ]. {
实际问题.jpg
 楼主| 发表于 2010-9-26 20:28:14 | 显示全部楼层 来自: 中国天津
????????
" \8 g+ P2 z- ^+ e我问的问题很难吗?
发表于 2010-9-27 08:01:14 | 显示全部楼层 来自: 中国湖南益阳
倒角时选择不修剪边就行了。只是线宽与原线一致。如果需要线宽不一致,可采用断开并更改图层的手动方式
发表回复
您需要登录后才可以回帖 登录 | 注册

本版积分规则


Licensed Copyright © 2016-2020 http://www.3dportal.cn/ All Rights Reserved 京 ICP备13008828号

小黑屋|手机版|Archiver|三维网 ( 京ICP备2023026364号-1 )

快速回复 返回顶部 返回列表