QQ登录

只需一步,快速开始

登录 | 注册 | 找回密码

三维网

 找回密码
 注册

QQ登录

只需一步,快速开始

展开

通知     

全站
5天前
查看: 2312|回复: 15
收起左侧

[已解决] 请教一张达人的工程图

[复制链接]
发表于 2010-9-29 21:47:25 | 显示全部楼层 |阅读模式 来自: 中国江苏南通

马上注册,结识高手,享用更多资源,轻松玩转三维网社区。

您需要 登录 才可以下载或查看,没有帐号?注册

x
本帖最后由 chenjun520601 于 2010-9-30 19:29 编辑
. ?1 ?& o9 V( L( B4 K9 y
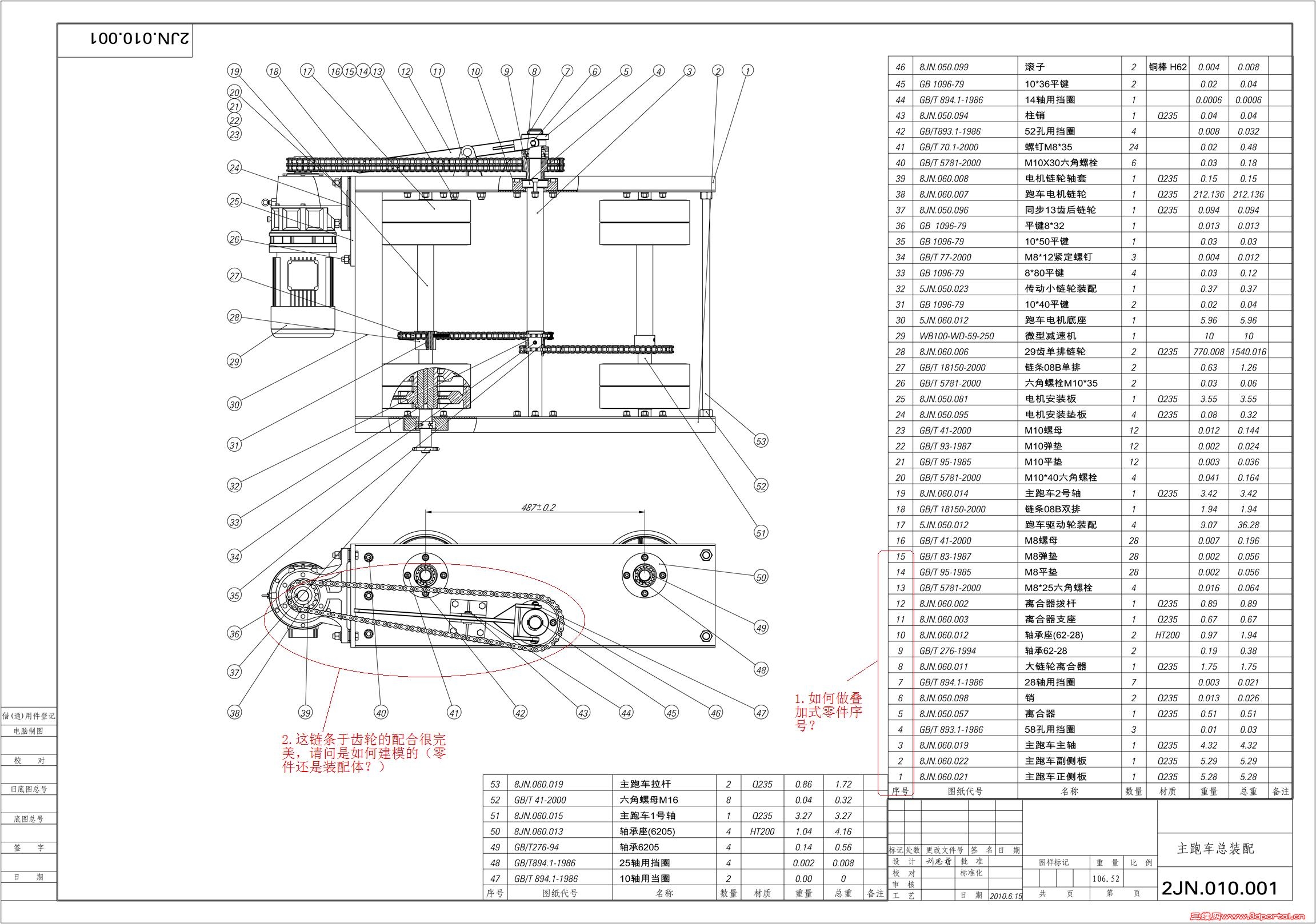
$ o$ M! L5 }  o. H) x) K, D6 ]$ D7 v各位达人,这是一位总工帖子里的工程图,我想请教大家两个问题:5 \7 ~6 S! ?2 P; G3 ^
1.按GB图纸应该像该图一样使用叠加模式,当然是以前手工绘制方便添加零件或装配体而定下的规矩,怎样使我们使用的工程图零件表也做成这个样式的?5 D, f/ }: R$ I5 J
2.图中的链条很完美,请教大家怎样做这链条的,做链条的装配体会很麻烦的,一个个装配上去,是这样的吗?
工程图.jpg
发表于 2010-9-30 00:23:09 | 显示全部楼层 来自: 中国广东汕头
这图的确实很完美,很漂亮,链条最好先做成个部装配件再加入总装配图比较好,而链条的画法记得有个论坛有讲过,楼主自己去找找。。我本人对这个标准件一般是简化,或根本不画

评分

参与人数 1三维币 +6 收起 理由
chenjun520601 + 6 技术讨论

查看全部评分

 楼主| 发表于 2010-9-30 12:11:29 | 显示全部楼层 来自: 中国江苏南通
2# aaronczl 0 K) T  M. f$ b9 _! J2 v* k! Q
好的,谢谢;在机械领域,对链条的标注要求不一样,谁有专业点的“链条”及建模啊?
头像被屏蔽
发表于 2010-9-30 12:41:54 | 显示全部楼层 来自: 中国辽宁营口
提示: 作者被禁止或删除 内容自动屏蔽
 楼主| 发表于 2010-9-30 12:56:59 | 显示全部楼层 来自: 中国江苏南通
4# 营口制造 1 p0 J; ^7 U, }6 N1 ~' A$ v
呵呵,就像一个不会英语的中国人到了美国的饭店,说了一些话,意思是他饿了,当然那美国的饭店服务员是理解了,他说:中国人,你英语表达不好,回去学好英语,再来这里吃饭!...
发表于 2010-9-30 13:41:57 | 显示全部楼层 来自: 中国辽宁沈阳
没明白什么是叠加序号。。是不是一个引线上多个序号啊
" O! R' o1 k  `% h( Y+ `链条的装配应该是子装配做的,不是很实际。
发表于 2010-9-30 14:21:25 | 显示全部楼层 来自: 中国广东阳江
楼上各位技术不错呵!
发表于 2010-9-30 14:48:01 | 显示全部楼层 来自: 中国辽宁沈阳
5# ntyanlei
0 ~8 ]3 U0 S7 i+ }有时间说这个还不如重新解释下“叠加”——知道你饿了,但不知道你喜欢吃什么啊
$ A/ |, V& E( _+ V+ g至于链条,我需要帮迈迪的插件做下广告么——我只知道迈迪可以做,但我没做过
发表于 2010-9-30 15:14:59 | 显示全部楼层 来自: 中国江苏常州
本帖最后由 chaoqun9452 于 2010-9-30 15:17 编辑 , R+ d0 N. Q  U: x$ g- K* b
呵呵,就像一个不会英语的中国人到了美国的饭店,说了一些话,意思是他饿了,当然那美国的饭店服务员是理解了,他说:中国人,你英语表达不好,回去学好英语,再来这里吃饭!...
4 l. D$ }% D& c" T. k" ?ntyanlei 发表于 2010-9-30 12:56 http://www.3dportal.cn/discuz/images/common/back.gif

7 f: O6 ]1 A5 q  F# c! v感觉楼主说话水平还是不错啊。。。O(∩_∩)O~
: ]7 m# J/ e) ^5 d不过,最后还请关注在你所问的问题上。这样人家才能回答。。
 楼主| 发表于 2010-9-30 18:25:54 | 显示全部楼层 来自: 中国江苏南通
好的,O(∩_∩)O谢谢各位!我只是打个比方,对于大家的帮助,还是很感激的!
发表于 2010-9-30 19:10:47 | 显示全部楼层 来自: 中国广东佛山
一.对于楼主的叠加式零件序号,我很难理解,插入材料明细表自然就有了
) h6 L& J) V. {. }; M2 [- M二.对于链条的画法,牛人的画法是,自建一个宏命令,点一下就自动出来了;我不懂这个方法,也没有迈迪的插件,我自己的笨方法是:1.先查国标,画出一节链条,另存;
  d% A* O' O% J7 @2.到你的总装图,孤立两个链轮,点插入\新零件,草图画出链条的轮廓,画好后打开零件(只有草图),点文件\从零件制作装配体;
: |4 k1 K# O, g1 L3.到装配体介面后,把零件的草图复制到装配体顶层;
" x5 v3 z8 N* U$ k1 I$ v% U8 i( l8 ]4.把步骤1中的一节链条调入到装配体,根据已有的草图布局链条,可在链节中添加参考配合,加快配合快速,直线的草图可线性阵列,曲线的草图配合好后将前一节链条固定,以方便下节链条的位置布置,推荐不采用草图阵列,那个不是一般的麻烦,反正我弄不了,链节会偏移.! y# R5 {) f& R; O$ P* ^5 z7 o( m
5.装配好后可另存为零件图(随你喜欢)
2 v( C* i  g4 T% Q. s7 w# X% M这种方法速度绝对比不上插件和宏命令,但绝对比你一节一节的装配(没技巧)要快,笨方法啊

评分

参与人数 1三维币 +25 收起 理由
chenjun520601 + 25 技术讨论

查看全部评分

发表于 2010-9-30 23:22:23 | 显示全部楼层 来自: 中国天津
陈伯雄老师对于楼主不以非专业为耻,反以为荣的心理不能理解,难道你到技术论坛就是让大伙猜谜的吗
 楼主| 发表于 2010-10-1 10:39:19 | 显示全部楼层 来自: 中国江苏南通
本帖最后由 ntyanlei 于 2010-10-1 10:44 编辑 " E, ^$ i, X  W* }5 {
2 K/ b4 _% `$ k2 X* f& D- n* Y
12# horseshoe - {# C  Y" e- l  h3 ^6 K! m
呵呵,我专业语言表达不好,没读好书是后天因素;但给予我“非专业”头衔的,是“没有看到”图中的注释,我没有帮你们分析其他因素了!我的版本不对啊,不像你们那样插入的材料明细表就出现零件序号“10、9、8、、7、6、5..."而是”1、2、3、4、5...",没人回答,哎,我真不应该怀疑人的本性啊!5 E0 K6 Q! b  H( D' B! G) Z
“以非专业为耻"真的唱出了一些人的心声了吗,谢谢大家了!
 楼主| 发表于 2010-10-1 10:46:03 | 显示全部楼层 来自: 中国江苏南通
11# easyb
: z# Y# h, `" C3 ]谢谢老大!
发表于 2010-10-2 04:19:07 | 显示全部楼层 来自: 中国广东广州
我认为不是完美的,这样的做法不方便,我提供一份,在SOLIDWORKS中绝对是自动生成。在工作中是常用的,如有兴趣需要,M我。加强论坛在工作方面的经验。是不是最好的办法对你们我不清楚,但我觉得比你们说的方法好用多了.
工作出资料处理.JPG
 楼主| 发表于 2010-10-2 19:25:33 | 显示全部楼层 来自: 中国江苏南通
15# fangguixi
- O$ U% g  X. ]! }$ h! n/ V3 K( K没有你的联系方式,我QQ:103309505
发表回复
您需要登录后才可以回帖 登录 | 注册

本版积分规则


Licensed Copyright © 2016-2020 http://www.3dportal.cn/ All Rights Reserved 京 ICP备13008828号

小黑屋|手机版|Archiver|三维网 ( 京ICP备2023026364号-1 )

快速回复 返回顶部 返回列表