QQ登录

只需一步,快速开始

登录 | 注册 | 找回密码

三维网

 找回密码
 注册

QQ登录

只需一步,快速开始

展开

通知     

查看: 1886|回复: 14
收起左侧

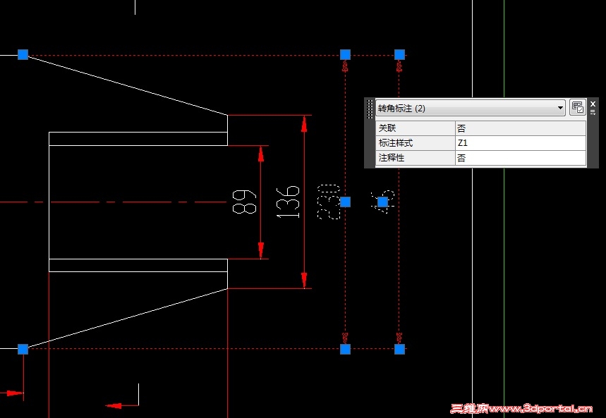
[求助] 同一个标注样式得出来的却是另一个尺寸

[复制链接]
发表于 2010-9-30 17:52:55 | 显示全部楼层 |阅读模式 来自: 中国山东济南

马上注册,结识高手,享用更多资源,轻松玩转三维网社区。

您需要 登录 才可以下载或查看,没有帐号?注册

x
朋友画的图,我用同一个标注样式得出来的却是另一个尺寸,他也没有文字替换。请高手指点。
捕获.jpg
发表于 2010-9-30 18:13:13 | 显示全部楼层 来自: 中国广东肇庆
上图来研究下
发表于 2010-10-1 15:47:48 | 显示全部楼层 来自: 中国安徽合肥
你朋友画的图标注时,其在标注样式中将主单位比例因子设置为5,而你的比例因子设置是1,所以得出来的却是另一个尺寸。
发表于 2010-10-2 00:59:36 | 显示全部楼层 来自: 中国上海
用哪个版本的CAD画的?
发表于 2010-10-2 07:32:48 | 显示全部楼层 来自: 中国江苏扬州
你肯定是直接标的,而你朋友用了比例因子5来标注
发表于 2010-10-2 10:08:17 | 显示全部楼层 来自: 中国江苏苏州
看下别人这个尺寸,用的标注样式,在看下自己的9 k' @# u1 ]) X# ^
你或者用格式化,匹配一下,愿意应该是楼上各位大侠所分析的那样,比例因子问题
 楼主| 发表于 2010-10-3 10:42:40 | 显示全部楼层 来自: 中国山东济南
同一个标注样式,里面的比例也应该是一样的。
发表于 2010-10-3 12:00:44 | 显示全部楼层 来自: 中国辽宁铁岭
同一个标注样式,里面的比例也应该是一样的。
: b* _) i% q/ y; ZSWJINGLING 发表于 2010-10-3 10:42 http://www.3dportal.cn/discuz/images/common/back.gif

- G0 b+ e" I! w% S不一定.可以通过特性管理器单独修改.
发表于 2010-10-3 20:12:03 | 显示全部楼层 来自: 中国江苏无锡
这么说的话一些外来的图纸都不能以实际标注尺寸为准了不是吗? 8# woaishuijia
发表于 2010-10-4 08:12:57 | 显示全部楼层 来自: 中国安徽合肥
外来的图纸应当以其图纸尺寸为准,若要转化也应该以其尺寸为基准。
发表于 2010-10-7 19:15:05 | 显示全部楼层 来自: 中国江苏镇江
同一个标注样式,里面的比例也应该是一样的。
  X6 b; u9 @, C, \  ^, \, S/ rSWJINGLING 发表于 2010-10-3 10:42 http://www.3dportal.cn/discuz/images/common/back.gif
; c  I% r; J; `( O6 l. p

8 @* |1 l7 ~2 b/ N: D3 s3 o如果你使用过标注的“替代”你会发现和你一样问题的。( x# q9 e" }& I, @# J. L
你恐怕就不会有这个疑问了。
发表于 2010-10-7 21:10:40 | 显示全部楼层 来自: 中国山东枣庄
比例因子问题毫无疑问。
发表于 2010-10-8 12:33:08 | 显示全部楼层 来自: 中国广东佛山
有这样的事情,请问是否是用同一种标注方式在同一时间标注出来的尺寸,而且没有进行过其他修改?
发表于 2010-10-9 10:12:26 | 显示全部楼层 来自: 中国贵州黔南布依族苗族自治州
这是在图纸空间标注,扑捉图纸空间的特征点造成的
发表于 2010-10-9 20:18:25 | 显示全部楼层 来自: 中国上海
大家用CAD要养成好的修改,标注要用标注样式来统一控制,不要随意在特性工具栏单独修改。
发表回复
您需要登录后才可以回帖 登录 | 注册

本版积分规则


Licensed Copyright © 2016-2020 http://www.3dportal.cn/ All Rights Reserved 京 ICP备13008828号

小黑屋|手机版|Archiver|三维网 ( 京ICP备2023026364号-1 )

快速回复 返回顶部 返回列表