|
|

楼主 |
发表于 2010-10-21 15:29:43
|
显示全部楼层
来自: 中国河北石家庄
本帖最后由 xhsww 于 2010-10-21 16:03 编辑
: q( l, b- N, l% \& D3 U& J' ?: m
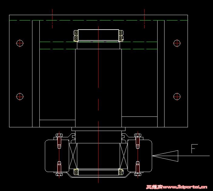
在相同的轴径和宽度下调心滚子轴承径向承载能力大很多。 q# |9 _ y& U% g" X- A# e
主要考虑承载能力和轴承宽度的原因。
: j1 S0 N$ f$ k' [! t( l. ~) G$ _. a( P0 M$ i$ S! j
我觉得还是能用。
$ C: n2 ^3 l$ s; ~. w; v- {: V6 n/ [, w; e, G; V* y) T, w
设备的制造、安装精度不用很高。2 P8 j$ {% q: z! C- C3 C
虽然因调心功能,如果轴承两端都顶紧,不用调心。轮子相对于轴和轴承就不会晃动和摆动。 |
|