QQ登录

只需一步,快速开始

登录 | 注册 | 找回密码

三维网

 找回密码
 注册

QQ登录

只需一步,快速开始

展开

通知     

全站
7天前
查看: 1654|回复: 8
收起左侧

[求助] 放大处添加不了角撑

[复制链接]
发表于 2010-11-6 11:16:13 | 显示全部楼层 |阅读模式 来自: 中国广东惠州

马上注册,结识高手,享用更多资源,轻松玩转三维网社区。

您需要 登录 才可以下载或查看,没有帐号?注册

x
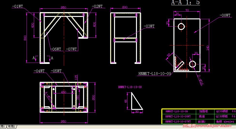
放大处添加不了角撑(4#角钢(δ4)内凹处与底固定板间欲添加角撑,可惜不行),请问大家是怎么处理的?我这个笨鸟在图中的做法就是拉伸了,大家有什么好建议
( c* k% A  k/ R6 v$ D# @. t4 |
0 ^6 ^3 h. S. d% S) I( k7 X- _3 N% H8 I9 w  M- K1 C3 o) `
2 Q" ?7 x& n' O! n$ f
abbr_7cd9725b5e2b5d244b900c93393982ec.jpg
发表于 2010-11-6 16:15:21 | 显示全部楼层 来自: 中国广东深圳
这个地方添加脚撑该说是画蛇添足,实在为了更稳固的话,可以在两长脚间加一条横撑要管用滴多。

评分

参与人数 1三维币 +3 收起 理由
chenjun520601 + 3 技术讨论

查看全部评分

 楼主| 发表于 2010-11-6 16:46:00 | 显示全部楼层 来自: 中国广东深圳
2# lyh020209
( Q9 L- l. `" }1 I' {& |
: E9 d! p' E, q( ~8 D9 v
. g2 E$ e1 O) n1 H
5 W6 x) f, e! }1 l' C 未命名.JPG
 楼主| 发表于 2010-11-6 17:05:52 | 显示全部楼层 来自: 中国广东惠州
在脚底处增加这样的角撑 对增加整个角钢架的稳定性是有帮助的 绝不是你所说的画蛇添足~
 楼主| 发表于 2010-11-6 17:12:47 | 显示全部楼层 来自: 中国广东惠州
附上设计的cad档截图,审图的是个老工程师 加这个角撑一定有它道理的" u, d" w; J% j5 d' m3 y6 ~$ [

. K, i8 t8 V" r  z
( D8 \! h3 u% v4 m" p& C 未命名.JPG
发表于 2010-11-6 18:41:59 | 显示全部楼层 来自: 中国新疆乌鲁木齐
呵呵,别说俺搞怪,俺也在设计院呆过十几年,各种钢结构图册看多了,自己也搞多了,就是不明白上面加个斜撑的利大于弊,哪位高人指点下。
发表于 2010-11-6 19:19:15 | 显示全部楼层 来自: 中国江苏镇江
好像意义不大,楼主见谅。
发表于 2010-11-6 21:45:37 | 显示全部楼层 来自: 中国重庆
左边的长斜梁直接撑到脚板上好了
发表于 2010-11-7 08:05:25 | 显示全部楼层 来自: 中国上海
不要迷信老工程师,自己做个静力分析
发表回复
您需要登录后才可以回帖 登录 | 注册

本版积分规则


Licensed Copyright © 2016-2020 http://www.3dportal.cn/ All Rights Reserved 京 ICP备13008828号

小黑屋|手机版|Archiver|三维网 ( 京ICP备2023026364号-1 )

快速回复 返回顶部 返回列表