QQ登录

只需一步,快速开始

登录 | 注册 | 找回密码

三维网

 找回密码
 注册

QQ登录

只需一步,快速开始

展开

通知     

查看: 2676|回复: 7
收起左侧

[讨论] 楔块夹紧机构

[复制链接]
发表于 2010-11-21 14:50:20 | 显示全部楼层 |阅读模式 来自: 中国湖北十堰

马上注册,结识高手,享用更多资源,轻松玩转三维网社区。

您需要 登录 才可以下载或查看,没有帐号?注册

x
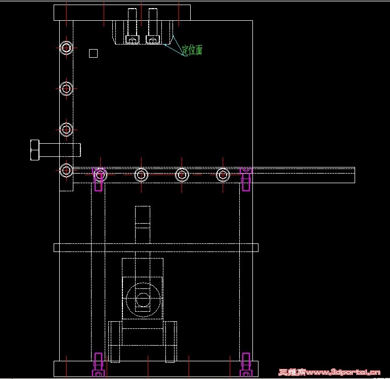
本人欲设计一套夹具要求从工件底面去夹紧。/ d! A) C& n: s* y4 O) Q
定位方式," P" i; z. H; e1 k3 r# c8 i5 ^
1通过工件上面的直槽进行定位,从而使工件只能艳槽方向运动/ J, q! h6 H7 \3 @, i% @: ~) L
2,夹紧处通过V型使工件不能延槽方向运动
7 y) i8 B- B$ [& ?' C% l3加工槽中间的一个孔要求不能与下面圆柱面错位
. x% c# U; W5 z4。下面采用楔块夹紧机构
6 J. {4 v) f" b: |现出现导向受力不平衡使定位不准
发表于 2010-11-21 19:33:42 | 显示全部楼层 来自: 中国山东烟台
是定位间隙太大了吧,最好上个图片
发表于 2010-11-21 21:24:46 | 显示全部楼层 来自: 中国江苏苏州
语言文字很难描述清楚这样的问题,你还是上图吧
发表于 2010-11-22 09:09:33 | 显示全部楼层 来自: 中国江苏常州
本帖最后由 nokin 于 2010-11-22 09:36 编辑 5 z" d+ D+ \% l

! n( t* d$ j9 ]+ X# c$ U有图有真相,图纸是工程师的语言!
 楼主| 发表于 2010-11-22 17:19:41 | 显示全部楼层 来自: 中国湖北十堰
公司文件加密,这能看图片

主视图

主视图

侧视图

侧视图

俯视图

俯视图
发表于 2010-11-24 02:40:54 | 显示全部楼层 来自: 中国河北石家庄
还是用芯轴比较好 再用两上下移动的销钉 左右定位槽 上下压紧工件 钻孔在中心不用很大压紧力
发表于 2010-11-26 11:22:20 | 显示全部楼层 来自: 中国北京
本帖最后由 hhq426 于 2010-11-26 11:28 编辑 ; U* t! a8 _* O5 T7 U, L
8 I( Z) T7 Y8 u8 I" n. W% f4 a9 g
我将自己以前设计的40mm升程气动斜铁辅助支撑发给你参考设计.当然它也是一个可以通用的结构.
fw1.jpg

40mm升程气动斜铁辅助支撑.part1.rar

1.87 MB, 下载次数: 4

40mm升程气动斜铁辅助支撑.part2.rar

1.87 MB, 下载次数: 4

40mm升程气动斜铁辅助支撑.part3.rar

346.52 KB, 下载次数: 3

 楼主| 发表于 2010-11-28 12:07:32 | 显示全部楼层 来自: 中国湖北十堰
高度方向有限制,我看你这个做的话高度有问题
发表回复
您需要登录后才可以回帖 登录 | 注册

本版积分规则


Licensed Copyright © 2016-2020 http://www.3dportal.cn/ All Rights Reserved 京 ICP备13008828号

小黑屋|手机版|Archiver|三维网 ( 京ICP备2023026364号-1 )

快速回复 返回顶部 返回列表