QQ登录

只需一步,快速开始

登录 | 注册 | 找回密码

三维网

 找回密码
 注册

QQ登录

只需一步,快速开始

展开

通知     

查看: 2302|回复: 11
收起左侧

[求助] 如何改进加工工艺(薄壁外圆精加工)

[复制链接]
发表于 2010-11-24 09:06:17 | 显示全部楼层 |阅读模式 来自: 中国上海

马上注册,结识高手,享用更多资源,轻松玩转三维网社区。

您需要 登录 才可以下载或查看,没有帐号?注册

x
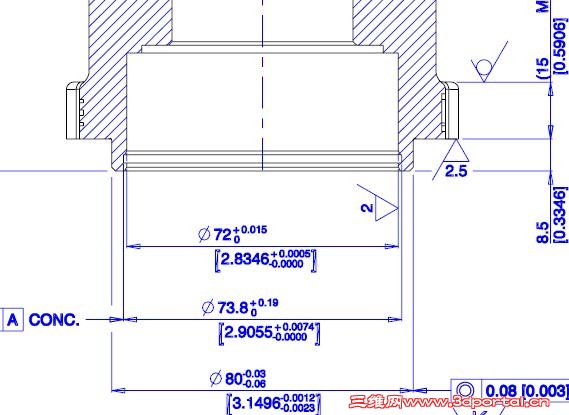
如图所示的外圆直径80(-0.03/-0.06),现实际工艺为:
% |' R7 i% k# j4 S$ [& b粗刀做到80.5,精刀为CBN刀片,S550,F100(机床为牧野A51),铸件材料为EN-GJS-500-7,也就是QT500.
0 n# {1 Q( {. M: u2 X2 w# x* _问题就是圆度很差,基本上达到0.01~0.015,尺寸波动也很大,很难稳定,调刀过于频繁,报废率很高.; |9 _% T3 u$ R+ h
请教大家有什么好办法能改进工艺?* r* E2 J& B; w" H# A7 u$ k6 [
(机床肯定不能换,材料也不能改,工件的锁紧扭矩已达最小极限.)
untitled.JPG
发表于 2010-11-24 10:13:15 | 显示全部楼层 来自: 中国江苏苏州
套铣加工就可以了
发表于 2010-11-24 10:16:04 | 显示全部楼层 来自: 中国江苏苏州
对了 你也没有说 是车床 还是加工中心。* C' g6 r) @5 J' {
用车床做的话 圆度肯定会有误差的。
5 Q1 r5 m4 O  L4 f) T不过在8.5方向上就差了0.01有点高了 ,你要检查夹具了!
 楼主| 发表于 2010-11-24 13:22:37 | 显示全部楼层 来自: 中国上海
对了 你也没有说 是车床 还是加工中心。
2 n2 R0 [( `1 Z+ o3 `用车床做的话 圆度肯定会有误差的。/ ~: u- S8 R( l) y( r3 i6 ^+ n) m
不过在8.5方向上就差了0.01有点高了 ,你要检查夹具了!
0 M9 o% \; f$ K) [- Tjyhself 发表于 2010-11-24 10:16 http://www.3dportal.cn/discuz/images/common/back.gif

; q3 ]/ _  @4 J8 B0 z牧野A51,当然是CNC啦~而且现在在用的就是套铣,一个刀片的铣刀;
1 H( b5 j) s$ `夹具上能调整的地方估计也没有了;* \2 b7 C4 u6 W$ C- ^( j
主要刀具选择和设置应如何改进?
发表于 2010-11-24 15:14:20 | 显示全部楼层 来自: 中国山东烟台
圆度问题可能就是机床的精度问题了,前端虽然薄,但是后端很厚
头像被屏蔽
发表于 2010-11-25 14:10:35 | 显示全部楼层 来自: 中国辽宁丹东
提示: 作者被禁止或删除 内容自动屏蔽
 楼主| 发表于 2010-11-26 17:26:57 | 显示全部楼层 来自: 中国上海
我们的精刀带内冷的,所以温度的影响应该很小;至于机床主轴精度,每半年校一次,而且有六台机床,结果全一样,估计机床本身精度是好的>
8 }7 k6 T; Y8 G0 S3 k4 K! d之前我们同样这个零件这个尺寸做得很稳定,但为了提高强度,设计将材料从原来的HT300改为现在的QT500,于是出现了一大堆新问题(因为所以的刀具和程序参数都是按灰铁设计的).
3 w9 }, y) w& }- A我们也做了大量的改进,但对于这个80的外圆始终没有找到真正的解决办法,肯请各位帮忙想想办法,球铁加工与灰铁差别很大吗?
发表于 2010-11-28 18:11:22 | 显示全部楼层 来自: 中国上海
加工球铁刀磨损很快的,转速要降好多,
发表于 2010-12-15 13:40:42 | 显示全部楼层 来自: 中国北京
本帖最后由 hhq426 于 2010-12-15 13:43 编辑
8 E5 U6 ~* J# v7 m% k" B/ l
3 K, f$ l# s! `+ `6 ?球铁加工与灰铁差别有较大,球铁更难加工.它界于灰铁与钢之间.精车余量0.5太大,应该在0.2以内.
 楼主| 发表于 2010-12-17 09:05:15 | 显示全部楼层 来自: 中国上海
球铁加工与灰铁差别有较大,球铁更难加工.它界于灰铁与钢之间.精车余量0.5太大,应该在0.2以内.
* v3 T7 Q9 |0 Q# o# E& `hhq426 发表于 2010-12-15 13:40 http://www.3dportal.cn/discuz/images/common/back.gif

% \! W& D* |; o) |3 L非常感谢你的建议!  D: G5 o1 ?) i2 b1 Y' w
现已将精刀余量留到0.2,并开始测试,最快明天能验证效果.
发表于 2010-12-18 14:37:59 | 显示全部楼层 来自: 中国江苏无锡
我觉得车加工到你现在这个精度差不多了。
发表于 2010-12-19 00:25:56 | 显示全部楼层 来自: 中国广东惠州
做灰铁能达到,说明床子无问题,应与材料加工特性差别有关,调整工艺参数试试看
发表回复
您需要登录后才可以回帖 登录 | 注册

本版积分规则


Licensed Copyright © 2016-2020 http://www.3dportal.cn/ All Rights Reserved 京 ICP备13008828号

小黑屋|手机版|Archiver|三维网 ( 京ICP备2023026364号-1 )

快速回复 返回顶部 返回列表