QQ登录

只需一步,快速开始

登录 | 注册 | 找回密码

三维网

 找回密码
 注册

QQ登录

只需一步,快速开始

展开

通知     

全站
12小时前
查看: 1363|回复: 1
收起左侧

[分享] 请高手指点迷津

[复制链接]
发表于 2010-12-7 16:19:05 | 显示全部楼层 |阅读模式 来自: 中国上海

马上注册,结识高手,享用更多资源,轻松玩转三维网社区。

您需要 登录 才可以下载或查看,没有帐号?注册

x
工程图的制图模板怎么制作?谁有视频或者相关的网址链接,万分感激!
发表于 2012-5-28 14:49:06 | 显示全部楼层 来自: 中国江苏南京
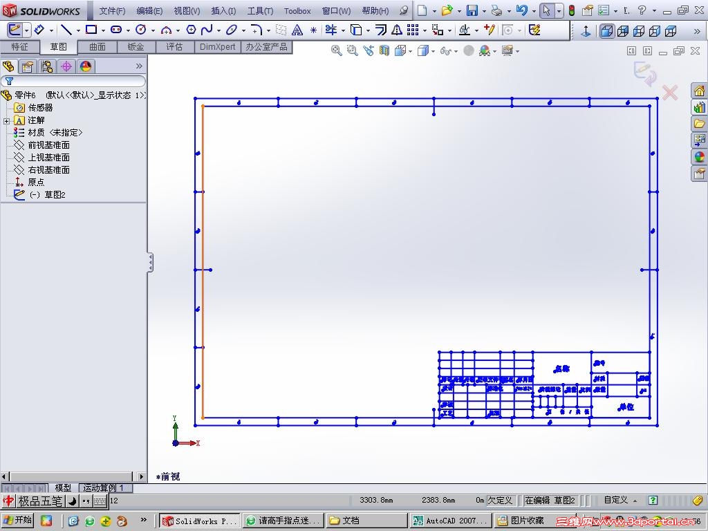
我来简单的说明一下,关于链接的问题下次有时间再讲:
" {$ f* Y. J# H4 o; E( ^1)先用CAD做一个工程图模板A4纸,并保存;
( p1 [5 y; `' R3 F: W2)打开SW零件模板,选择插入DXF/DWG,然后选择已保存的CAD模板,下一步,在输入数据单位选择毫米,下一步,定义草图原点为X0,0;Y0,0点击完成,在草图界面复制已生成的草图,并退出;: o6 {$ t, Z4 G4 f
3)打开SW A4 dwr模板,右击编辑图纸格式,框选原图形删除,,粘贴CAD模板,选择移动实体,将CAD图形移到图纸的角点;6 q( ?. l: L) k0 w" r) W  m
4)另存为,格式为工程图模板,改名为A4模向,至此,工程图模板制作暂告结束,# b7 s4 J8 m" D* v, r
下面贴几张图片参考
1.JPG
2.JPG
3.JPG
4.JPG
5.JPG
发表回复
您需要登录后才可以回帖 登录 | 注册

本版积分规则


Licensed Copyright © 2016-2020 http://www.3dportal.cn/ All Rights Reserved 京 ICP备13008828号

小黑屋|手机版|Archiver|三维网 ( 京ICP备2023026364号-1 )

快速回复 返回顶部 返回列表