QQ登录

只需一步,快速开始

登录 | 注册 | 找回密码

三维网

 找回密码
 注册

QQ登录

只需一步,快速开始

展开

通知     

查看: 1988|回复: 10
收起左侧

[求助] 有更好的方法吗?

[复制链接]
发表于 2010-12-13 12:57:29 | 显示全部楼层 |阅读模式 来自: 中国江苏无锡

马上注册,结识高手,享用更多资源,轻松玩转三维网社区。

您需要 登录 才可以下载或查看,没有帐号?注册

x
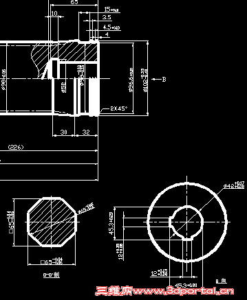
我们公司的轴底部十字键槽加工,都是使用的电脉冲,还有更好的加工方法吗?
发表于 2010-12-14 15:18:37 | 显示全部楼层 来自: 中国辽宁大连
十字键槽有很多加工方法,最好给个图,才能确定
 楼主| 发表于 2010-12-15 13:24:03 | 显示全部楼层 来自: 中国江苏无锡
2# 椰壳哒哒 6 f# y6 f, u0 P) M; [' g
看看吧!大体差不多都是这样的,只是大小和深度有区别。

未命名.rar

79.66 KB, 下载次数: 6

发表于 2010-12-15 21:16:06 | 显示全部楼层 来自: 中国山东青岛
直接截图行了,别发个压缩文件,想帮你,但是下载需要流量的。
 楼主| 发表于 2010-12-16 16:34:02 | 显示全部楼层 来自: 中国江苏无锡
4# wxh19870121
6 f; m$ P) v# v) {  ]3 N* n* n[img]file:///C:/Documents%20and%20Settings/Administrator/Application%20Data/Tencent/Users/891925813/QQ/WinTemp/RichOle/]XDHT}ECM)_TR(~$[2W_SHP.jpg[/img] 基本上就是键宽和深度有区别。请帮忙看看
 楼主| 发表于 2010-12-21 12:25:44 | 显示全部楼层 来自: 中国江苏无锡

就是键宽,内圆和深度有区别,但是要根据轴直径来的。。。。

就是键宽,内圆和深度有区别,但是要根据轴直径来的。。。。
4# wxh19870121
发表于 2010-12-21 21:52:40 | 显示全部楼层 来自: 中国内蒙古呼和浩特
用拉床,我觉得,不过需要投资啊,拉床加工出的即精度达标,有效率高
发表于 2010-12-23 19:08:02 | 显示全部楼层 来自: 中国浙江杭州
一般加工用的是刨床或是插床,精细点只能用电火花了
发表于 2010-12-23 19:29:19 | 显示全部楼层 来自: 中国江苏南京
盲孔不能用拉床,大批生产可用冷挤,用电脉冲进行精加工,以提高生产效率。
发表于 2010-12-24 14:19:34 | 显示全部楼层 来自: 中国江西景德镇
用插床就行,做个样板保证尺寸
发表于 2010-12-25 08:48:50 | 显示全部楼层 来自: 中国上海
我认为用油压机,做冲头冲就可以了.
发表回复
您需要登录后才可以回帖 登录 | 注册

本版积分规则


Licensed Copyright © 2016-2020 http://www.3dportal.cn/ All Rights Reserved 京 ICP备13008828号

小黑屋|手机版|Archiver|三维网 ( 京ICP备2023026364号-1 )

快速回复 返回顶部 返回列表