QQ登录

只需一步,快速开始

登录 | 注册 | 找回密码

三维网

 找回密码
 注册

QQ登录

只需一步,快速开始

展开

通知     

全站
2天前
查看: 2045|回复: 6
收起左侧

[讨论] 川崎K3VDT 大家来看看怎么回事

[复制链接]
发表于 2010-12-15 10:41:40 | 显示全部楼层 |阅读模式 来自: 中国浙江宁波

马上注册,结识高手,享用更多资源,轻松玩转三维网社区。

您需要 登录 才可以下载或查看,没有帐号?注册

x
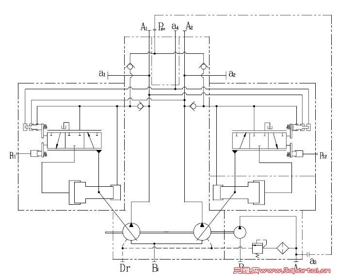
最近公司在做K3V63DT的性能试验,前泵加载后泵不加载的时候,前泵压差增大流量减小,后泵不变。而后泵加载前泵不加载的时候,后泵压差增大,流量无明显变化,前泵的流量却减小了。按正常分析后泵加载的时候由于阻尼孔的作用,后泵流量应该减小,前泵流量不变,而现在是后泵流量不变,前泵减小。不知是什么原因,请高手赐教。谢谢。泵应该是负流量控制+全功率控制。
未命名.JPG
发表于 2010-12-15 11:47:10 | 显示全部楼层 来自: 中国上海
1# 沙漠寂寞 做前泵实验时现象应该是正常的。做后泵实验时,现象不太正常,可以检测一下流量反馈压力pi,应该能找到问题所在
发表于 2010-12-15 12:12:39 | 显示全部楼层 来自: 中国江苏无锡
是不是后泵的压力阀弹簧调节的比较紧,不然压差大了油泵排量应该降低的
发表于 2010-12-15 15:49:29 | 显示全部楼层 来自: 中国山东
貌似你的图上按原理图看是交叉总功率,怎么会两个泵排量不同呢。你还是查查P11和P12两个LS口吧,把这两个口接油箱再看看,貌似我觉得两个泵流量不论何种情况,在总功率控制下应该流量一样的。
 楼主| 发表于 2010-12-15 19:36:00 | 显示全部楼层 来自: 中国浙江宁波
4# zzsbs . \# w- v; L2 H% m; K
您好,实验的时候一个加载,一个不加载,前后泵流量应该不一样吧。实际在挖机上是否前后泵同时加载,而且压差一样呢?谢谢
发表于 2010-12-16 13:21:13 | 显示全部楼层 来自: 中国辽宁本溪
本帖最后由 bohaiyan 于 2010-12-16 13:32 编辑 9 u: U( X, p; R. I' q/ L7 {

0 T9 y8 W8 z& e0 f0 d% H. S0 ?4楼讲的是对的。
0 _+ a* ^& E' }4 `  }& X) v, @7 L2 s; Y流量的改变值取决于双泵压力之和的一半(即平均压力)
4 r. m% B2 q! a# ~" n) ~7 _如果是单泵有负载时,相同流量的泵输出压力值应为两倍
全功率.JPG
 楼主| 发表于 2010-12-16 20:07:05 | 显示全部楼层 来自: 中国浙江宁波
6# bohaiyan : u( Y2 J3 B6 W9 I
您好,图片上的说明书能否发我一份,谢谢,我的邮箱bluerain2007@sina.com
发表回复
您需要登录后才可以回帖 登录 | 注册

本版积分规则

Licensed Copyright © 2016-2020 http://www.3dportal.cn/ All Rights Reserved 京 ICP备13008828号

小黑屋|手机版|Archiver|三维网 ( 京ICP备2023026364号-1 )

快速回复 返回顶部 返回列表