QQ登录

只需一步,快速开始

登录 | 注册 | 找回密码

三维网

 找回密码
 注册

QQ登录

只需一步,快速开始

展开

通知     

查看: 1411|回复: 2
收起左侧

[求助] 川崎K3VDT 该怎么调节

[复制链接]
发表于 2010-12-15 10:48:40 | 显示全部楼层 |阅读模式 来自: 中国浙江宁波

马上注册,结识高手,享用更多资源,轻松玩转三维网社区。

您需要 登录 才可以下载或查看,没有帐号?注册

x
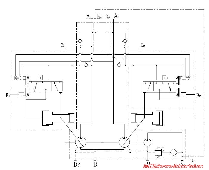
最近公司在做K3V63DT的性能试验,在前后泵同时加载,出口压力相同的情况下,该如何调节才能使前后泵输出流量相同。请高手赐教。谢谢。泵应该是负流量控制+全功率控制。
未命名.JPG
2.JPG
发表于 2010-12-15 17:15:29 | 显示全部楼层 来自: 中国江苏无锡
LZ有说明书吗,上面都有步骤的
 楼主| 发表于 2010-12-15 19:29:26 | 显示全部楼层 来自: 中国浙江宁波
2# Csxy_co_ltd
* ^( F. z9 k2 J' E) z. {2 s& a关于调节器的是有一个叫《01 K3V泵说明书》的说明书,可能K3V的调节器型号不一样调节也不同吧,您这边是否有更好的呢。谢谢
发表回复
您需要登录后才可以回帖 登录 | 注册

本版积分规则


Licensed Copyright © 2016-2020 http://www.3dportal.cn/ All Rights Reserved 京 ICP备13008828号

小黑屋|手机版|Archiver|三维网 ( 京ICP备2023026364号-1 )

快速回复 返回顶部 返回列表