QQ登录

只需一步,快速开始

登录 | 注册 | 找回密码

三维网

 找回密码
 注册

QQ登录

只需一步,快速开始

展开

通知     

查看: 2849|回复: 6
收起左侧

[求助] 三维实体剖切后无法合并?!

[复制链接]
发表于 2010-12-15 14:02:45 | 显示全部楼层 |阅读模式 来自: 中国四川德阳

马上注册,结识高手,享用更多资源,轻松玩转三维网社区。

您需要 登录 才可以下载或查看,没有帐号?注册

x

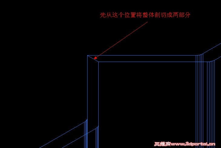
! f& Z0 K+ g; O1 J- E7 T' k+ X遇到的问题如下图所示:
, ^) f0 u, s' W 1.jpg
  _) g1 [! _3 m9 W; K+ h# R1 h 1.2.jpg
. w. o& e* s% o" I% l  W5 Z3 f 1.3.jpg / v/ p6 U6 O5 v6 a# }
2.jpg
6 q* W" M# J  G3 l% _9 D  ?( L. B8 g 3.jpg
4 \& q" Z2 O. ]  ^1 G; E 4.jpg $ f  j4 I. X( W8 s/ V
5.jpg
# p% l- Q; s3 S8 L
/ D" U9 I  W  L4 J0 z8 m# p# S, l" w. M, y( f# K! ?9 T: T

, _6 b* e9 b0 q/ k  y
; w) n! `( \" @" w' l, r5 p9 ]) _4 t问题模型: 模型.dwg (130.08 KB, 下载次数: 7)
发表于 2010-12-15 19:27:32 | 显示全部楼层 来自: 中国广东汕头
楼主给的文件已经是合并好的。
发表于 2010-12-15 19:41:51 | 显示全部楼层 来自: 中国辽宁
那里貌似一条线,其实是两条边,放大了看就知道了.局部细节太复杂了,CAD受不了了
Untitled-1.gif
Untitled-2.gif

评分

参与人数 1三维币 +5 收起 理由
wang2003 + 5 应助

查看全部评分

 楼主| 发表于 2010-12-16 08:42:54 | 显示全部楼层 来自: 中国四川德阳
本帖最后由 fergus1987 于 2010-12-16 08:44 编辑 8 b) t3 A8 s5 C3 n( x- q

5 h, S! J% v# q* `* w  L2#  
8 @! I+ [6 U6 H2 U- {* h8 a( j- `+ P7 U, E
谢谢你的回复  不过我需要将它先剖切开  然后再此合并 这样就出现问题了!
 楼主| 发表于 2010-12-16 08:45:24 | 显示全部楼层 来自: 中国四川德阳
3# woaishuijia
+ f7 q! A: A; R9 c- Z6 c5 n' B" L0 g4 a0 y( V9 }1 ?0 K  l' t- u
谢谢你的解答  请问有方法将两者合并吗  就是消除那条线  因为我在CAD里用di查询命令 两部分的长宽高都是一样的?! 急求!!
发表于 2010-12-16 11:52:31 | 显示全部楼层 来自: 中国广东汕头
请问下你是怎么剖切的,建议你移动坐标后用XY平面进行剖切,而不要用3点的方式取截面。然后再合并,这样可能不会出错。
 楼主| 发表于 2010-12-18 13:57:09 | 显示全部楼层 来自: 中国四川德阳
6# 唐昕晨 / B8 t1 T+ N' `2 ]/ G) z" d
7 I. A/ K3 {! j3 {2 W
我是三点剖切的  按照你的方法用坐标面剖切 结果一样的。。
发表回复
您需要登录后才可以回帖 登录 | 注册

本版积分规则


Licensed Copyright © 2016-2020 http://www.3dportal.cn/ All Rights Reserved 京 ICP备13008828号

小黑屋|手机版|Archiver|三维网 ( 京ICP备2023026364号-1 )

快速回复 返回顶部 返回列表