QQ登录

只需一步,快速开始

登录 | 注册 | 找回密码

三维网

 找回密码
 注册

QQ登录

只需一步,快速开始

展开

通知     

查看: 2012|回复: 6
收起左侧

[已解决] 请教内螺纹孔顶端三角的问题。

[复制链接]
发表于 2010-12-16 08:32:07 | 显示全部楼层 |阅读模式 来自: 中国江西鹰潭

马上注册,结识高手,享用更多资源,轻松玩转三维网社区。

您需要 登录 才可以下载或查看,没有帐号?注册

x
本帖最后由 juestice 于 2010-12-16 10:34 编辑
$ ?5 |, S2 A8 k0 r+ k" S2 @) c1 R$ n$ r7 t  h# ]. [" i
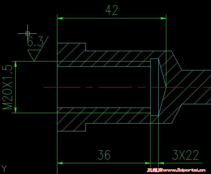
wtyzy.JPG
8 T. W2 A2 U  ~8 c; l/ B/ K, Q+ j$ m0 {; s* a
如图,因为要保证螺纹有效长度为36,而螺纹孔实测最长为42。但保证了退刀槽最少为3后,顶端的三角形顶角就不是120°了,请问,这样画符合标准吗?如不符合,需要调整哪几个数值呢,不胜感激。
发表于 2010-12-16 08:49:58 | 显示全部楼层 来自: 中国北京
顶端可以画成平面,按长度42的话,退刀槽可以加宽些或螺纹的长度加长。% i* C1 n/ I/ M5 {5 h0 W' J/ s
也可以按120度画,主要是钻孔的钻头锋角为120度,但这时120度的最大圆直径应按钻底孔时的钻头直径画(约为17.3mm)。
发表于 2010-12-16 09:55:08 | 显示全部楼层 来自: 中国山东青岛
那个退刀槽怎么加工
  O$ h! d4 ?& W$ q其实不需要退刀槽,只要孔加工深度够了,有效螺纹也就够长/ R: p: V1 c, [5 E% l4 _+ h
孔底面的锥形120度很正常,也可以设计成平面,钻头磨平加工
发表于 2010-12-16 10:05:25 | 显示全部楼层 来自: 中国山西太原
实际上螺纹孔底部的锥形孔是钻底孔形成的,标准麻花钻顶角为118°,画图时近似画成120°,加工退刀槽后,此处已没什么用处。标长度42,是便于钻底孔时看深度标尺。只要深度够了,加工好退刀槽,角度没有关系,制图标准并无角度规定。
 楼主| 发表于 2010-12-16 10:10:49 | 显示全部楼层 来自: 中国江西鹰潭
本帖最后由 juestice 于 2010-12-16 10:35 编辑
/ H) d( T9 j2 J' t* v" X1 N+ B
那个退刀槽怎么加工0 u+ m1 R, `1 Y# @- d
其实不需要退刀槽,只要孔加工深度够了,有效螺纹也就够长' O! b- d8 V1 s0 u/ i4 ?5 s7 b( \
孔底面的锥形120度很正常,也可以设计成平面,钻头磨平加工" V6 f$ q5 o% r
汉缆股份 发表于 2010-12-16 09:55 http://www.3dportal.cn/discuz/images/common/back.gif
顶端可以画成平面,按长度42的话,退刀槽可以加宽些或螺纹的长度加长。  z$ R$ u/ K3 f3 k0 e
也可以按120度画,主要是钻孔的钻头锋角为120度,但这时120度的最大圆直径应按钻底孔时的钻头直径画(约为17.3mm)。
; B) s* N- B+ L- P2 _1 h9 Alaoyu606 发表于 2010-12-16 08:49 http://images/common/back.gif

' O; T: w# ?9 D9 y% h) Y/ S! \( i6 n6 X# I# a
实际上螺纹孔底部的锥形孔是钻底孔形成的,标准麻花钻顶角为118°,画图时近似画成120°,加工退刀槽后,此处已没什么用处。标长度42,是便于钻底孔时看深度标尺。只要深度够了,加工好退刀槽,角度没有关系,制图标 ...- M; Q4 ~' q8 C
gaoyns 发表于 2010-12-16 10:05 http://images/common/back.gif

) M1 X& c0 s# W3 Y: F/ d, b: ?$ t" o
2 V2 k, f5 b- K) s9 m1 ~# {8 D3 Q感谢几位的回复,偶明白了,十分感激。
发表于 2010-12-16 12:52:32 | 显示全部楼层 来自: 中国辽宁沈阳
您这个图本身有些问题,这个120°只是攻螺纹前钻孔的,不应在M20处,可能我表达的不是很清楚,希望您能多看手册关于螺纹的标准画法,对您会很有帮助,楼上的说的非常对,不是所有的螺纹都需要有退刀槽的
发表于 2010-12-16 16:53:27 | 显示全部楼层 来自: 中国广东深圳
呵呵,看看,学习!
发表回复
您需要登录后才可以回帖 登录 | 注册

本版积分规则


Licensed Copyright © 2016-2020 http://www.3dportal.cn/ All Rights Reserved 京 ICP备13008828号

小黑屋|手机版|Archiver|三维网 ( 京ICP备2023026364号-1 )

快速回复 返回顶部 返回列表