QQ登录

只需一步,快速开始

登录 | 注册 | 找回密码

三维网

 找回密码
 注册

QQ登录

只需一步,快速开始

展开

通知     

查看: 2054|回复: 15
收起左侧

[已解决] 此图检测方法?

[复制链接]
发表于 2010-12-28 13:33:17 | 显示全部楼层 |阅读模式 来自: 中国四川资阳

马上注册,结识高手,享用更多资源,轻松玩转三维网社区。

您需要 登录 才可以下载或查看,没有帐号?注册

x
本帖最后由 xuexi520 于 2010-12-30 13:20 编辑 9 {1 ^: V" E* v5 U) k& c3 y; Z

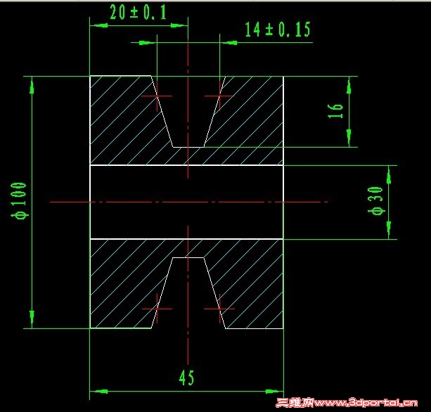
* V- Z7 d# g, C( h2 ^# `如图所示:: ^* x4 b0 V% m' e  P3 f1 O/ n

& [6 }; k! z  n6 g3 M* D7 u材料HT2008 o" Q! R/ X4 O5 T
数量 批量
* E  J1 q. O( S8 w3 m2 s6 U$ ]0 F; V; j2 W/ J' f+ M0 c. K3 g# x+ g
请问老师们
" W- z8 r# M% x9 ]5 e  N* v此皮带轮 轴向尺寸20+—0.1 以及  14+-0.15
* ~- ^4 Y" T8 o: Z怎么去测量?; ~7 e# g9 |4 M$ e
望老师们赐教...
01.jpg
发表于 2010-12-28 13:44:21 | 显示全部楼层 来自: 中国江苏常州
做两块样板即可。
发表于 2010-12-28 14:06:58 | 显示全部楼层 来自: 中国上海
可以参考:
# u# d8 {+ O2 m8 G2 B8 ~9 XGB/T11356.1-2008 带传动V带轮(基准宽度制)槽形检验* q6 F* u6 G7 H
http://www.3dportal.cn/discuz/viewthread.php?tid=820202

评分

参与人数 1三维币 +2 收起 理由
渔樵 + 2 应助

查看全部评分

发表于 2010-12-28 14:39:24 | 显示全部楼层 来自: 中国湖南岳阳
本帖最后由 TKG-09 于 2010-12-28 14:43 编辑
; j- E4 E! P. G9 }5 f* |
( ~* X, f" G7 [9 N- o皮带轮的测绘一般只需测量外形尺寸、几槽,槽部的大概尺寸,再对照V带标准,按标准绘图即可。
2.jpg

评分

参与人数 1三维币 +2 收起 理由
渔樵 + 2 应助

查看全部评分

 楼主| 发表于 2010-12-29 13:08:11 | 显示全部楼层 来自: 中国四川资阳
谢谢各位老师的指点!
. W7 ^/ M9 A& v* W& C; N. D& M7 ?1 l% M
小弟还有一疑问:
( u: G) l$ ~& I  U
8 j9 I$ h# h! a* C4 s$ Q8 W此图7 Z+ [5 Q8 H+ P. l6 B  R
# O/ z0 s' b9 Y8 B* v- F
如何检查皮带轮槽 的跳动??
01.jpg
发表于 2010-12-29 19:54:56 | 显示全部楼层 来自: 中国福建福州

赞成

同意呵
4 L8 m8 x7 B, L( B7 B, i6 f3 h# G(*^__^*) 潜力贴先回个……+ W( G3 A4 |) j- a3 \

6 s; @7 T- B5 \% Z- }7 t5 g1 V! A6 @
* F! V' t; k% X) E8 D5 U4 g) B

2 C" Y+ {5 U( H1 N
! `9 y; p' `3 F3 i! m  W( i
7 L6 }7 @& E  w; b" ~: k  F# O+ D8 C  ^- L% Z

; G! H9 \5 P+ P2 }. ?1 S
# C& M/ C9 x- S: }) S, p5 |
. N) C, i' S" x3 @' W! }5 ]* h. H$ S' B" ^$ c4 k  S$ N+ D; R
; @  _& G  a! X6 R

0 p7 h5 J, H, J/ B) a$ R9 U1 R/ x$ H8 J. ?" E) w3 s. L

; C4 d, P( i$ n( r6 ?+ _# ^( f" P8 P/ z) y
- f! B" @; `2 t9 i7 a, t2 A
/ j. N* r* F9 l* g

, J/ v0 Z2 [9 \; S/ G) d7 s
" V' [3 R) \) I; @% I" }9 r4 b7 f3 d, K( j

4 P! L) m  K% i6 ?8 ^& }/ W5 F( C! l8 Q6 b7 @: \
, {4 k; {7 T: ?% ]+ [6 ^' s1 Q9 d

- O5 q$ I- h: h/ |, b
1 u. K% o3 n9 C  p, Xhttp://club.alimama.com/images/default/sigline.gif/ K" `( @# U# ]3 D) N0 M/ ?
我是潮人我爱音乐!125301253012530
发表于 2010-12-29 20:10:28 | 显示全部楼层 来自: 中国广东中山
心轴,打百分表。

评分

参与人数 1三维币 +2 收起 理由
渔樵 + 2 应助

查看全部评分

发表于 2010-12-29 22:36:56 | 显示全部楼层 来自: 中国四川资阳
直接将B面贴到平台上,将百分表指针接触到槽面上,接着用手转动皮带轮,从而检测槽面的跳动.这样可以吗?
发表于 2010-12-29 22:39:33 | 显示全部楼层 来自: 中国四川资阳
各位群友觉得怎么样?
发表于 2010-12-30 07:52:26 | 显示全部楼层 来自: 中国浙江宁波
直接将B面贴到平台上是不可以的,除非轴线对B面的垂直度误差为零,但这是不可能做到的,还是应该参考haludyi  的方法比较好
发表于 2010-12-30 10:33:18 | 显示全部楼层 来自: 中国河南郑州
皮带轮跳动很少检测,设计手册上的,实际很少有人检测,因为精度低
! S5 d- x/ ~+ e' [! H" j! j, W测跳动一般都是心轴打表
4 a) L- L+ F7 c) ]另外你的a基准好像不对吧//
发表于 2010-12-30 10:36:58 | 显示全部楼层 来自: 中国陕西西安
如果是当带轮用,图示的公差和跳是没意义的。
发表于 2010-12-31 20:09:35 | 显示全部楼层 来自: 中国山东烟台
用钢珠应该就可以了,20的尺寸用高度尺加钢珠,14的尺寸用千分尺加钢珠间接测量
发表于 2011-1-1 16:28:47 | 显示全部楼层 来自: 中国湖北十堰
钢珠好像不太好测,我们一般用两个芯棒,外圆磨过的,比钢珠实际好操作点

评分

参与人数 1三维币 +7 收起 理由
xl.zhuo + 7 节日奖励5分+技术讨论

查看全部评分

 楼主| 发表于 2011-1-3 13:21:48 | 显示全部楼层 来自: 中国四川资阳
各位前辈 补充一下 & K5 U* m! Y: |7 I
; l& K8 ?; B7 L+ H# v% f
皮带轮槽宽(14尺寸)怎么 检测 啊 ?

评分

参与人数 1三维币 +5 收起 理由
xl.zhuo + 5 节日奖励

查看全部评分

发表于 2011-1-9 21:52:23 | 显示全部楼层 来自: 中国辽宁沈阳
是啊,和皮带轮结构一样,可以那么检测,用样板检测阿也可以
发表回复
您需要登录后才可以回帖 登录 | 注册

本版积分规则


Licensed Copyright © 2016-2020 http://www.3dportal.cn/ All Rights Reserved 京 ICP备13008828号

小黑屋|手机版|Archiver|三维网 ( 京ICP备2023026364号-1 )

快速回复 返回顶部 返回列表