QQ登录

只需一步,快速开始

登录 | 注册 | 找回密码

三维网

 找回密码
 注册

QQ登录

只需一步,快速开始

展开

通知     

全站
7天前
查看: 3459|回复: 7
收起左侧

[分享] 用圆柱形立铣刀加工方孔

[复制链接]
发表于 2010-12-30 15:12:47 | 显示全部楼层 |阅读模式 来自: 中国江苏常州

马上注册,结识高手,享用更多资源,轻松玩转三维网社区。

您需要 登录 才可以下载或查看,没有帐号?注册

x
本帖最后由 zpc64 于 2010-12-30 15:18 编辑 . _. j" A6 O* Z& y/ U

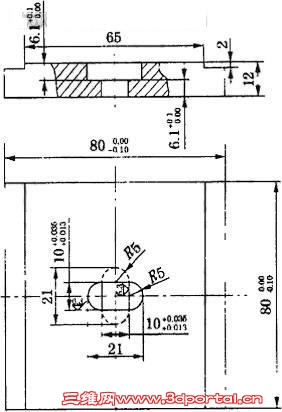
6 Q9 D, K" y" }; [. P2 H在加工一批端盖零件时需按图纸要求在零件中心加工一个方孔,方孔尺寸为10F8×10F8mm(见图)。通常加工方孔是采用专用方孔拉刀进行成型拉削,当加工批量较小(如50件)而一时又没有合适的方孔拉刀时,则由钳工进行手工修形。但方孔的人工修形加工既费时又难以保证加工精度。我们经过反复探索,使用标准立铣刀在普通立式铣床(如XA5032) 上加工方孔获得成功,实践证明加工效果良好。本文将介绍用立铣刀加工方孔的操作步骤和注意事项。$ ^8 M9 `9 Y/ Y! {5 U
201032910573999100.jpg
1 操作步骤 1 H5 A6 {7 T7 \9 |$ S7 B8 H$ x& \
' |' n- s" j4 e. r" W1 \
1) 用直径φ9.6mm的麻花钻在零件中心(方孔中心)钻一个通孔。 6 O* C  M# ~  t( m9 _" @: p( m
2 q- P4 s. A$ F0 e. [
2) 用直径φ10mm+0.013+0.025立铣刀在A面沿方孔中心线铣第一条槽,槽深6.1mm,长度为21mm(见图)。
' R: a: B( M" x% {8 g4 f1 u: U) D7 _6 ~/ `0 A+ b
3) 将零件翻身,并转位90°,在B 面与第一条槽正交处铣第二条槽,槽深6.1mm,长度为21mm。两槽在零件中心处相互沟通,形成方孔。 ( ?" `9 t# k3 t. w

  I; g2 G" N. U4 e& ~  J* k  S- t. P对已加工部位去毛刺并进行加工质量检验。
! o9 ~2 W  c; h1 Z" d* b5 C
( d5 D& S" @3 O8 c2 [, G2 注意事项
# @; T( V0 Z: d( T: K9 F
) ]  r& p2 z% P3 T; v' n1) 应根据方孔的尺寸及公差要求选用规格尺寸合适的立铣刀,必要时可按图纸要求修磨立铣刀切削部分的实际尺寸。
9 \9 z% a( p8 z' j
  A$ E7 e6 V$ ^2) 铣槽前,必须分别找正两槽的中心线,要求两槽的中心线必须正交,否则会影响方孔的尺寸和形状精度。图
" O) F8 M( D- l* T) [5 J# A0 x
3) 槽深应略大于零件厚度的1/2。一般情况下,取槽深比零件厚度的1/2 深0.1~0.2mm(此处选槽深为6.1mm) 。原则上以两槽相互沟通为宜,槽深不可过深,槽的长度也应适当(不可过长) 。 4 B) z4 d1 z, H1 L' u1 I) t
. }6 t3 Q/ j4 p% B' [; U: @7 w! W
3 加工要点   q3 C# p8 P% A, F
, i5 A1 z9 n* U, T0 A6 \
1) 用圆柱形立铣刀加工方孔时,首先应考虑基本不影响零件原有的强度和刚度,同时不影响零件的结构与装配。
* n# w  u) i" {) O/ P, `/ W
) M, c$ F# R' W; }2) 在批量生产时,应使用专用夹具,并使用专用分度装置(如分度盘) 转位,以确保零件定位正确,保证两槽的中心线正交。
) I# W5 L$ `7 D
4 ^3 F4 z4 c& B6 m0 c1 S# V  Z# ^用立铣刀铣削加工方孔,对设备和刀具无特殊要求,操作简单易行,加工效果良好,可节约专用拉刀购置费用,尤其适于单件、小批量生产,在普通机械加工厂也很容易实施。当然,这种方法并不是在任何情况下都适用,应根据具体零件的结构、强度与装配等方面要求酌情处理。
6 I: U( S( t' L* h  ?  X
6 ~' F( }3 N# e" O% W! D* ~根据立铣刀加工方孔的原理,也可使用三面刃铣刀(切削刃宽度应与方孔边长相等) 或半圆键槽铣刀(刀刃宽度应与方孔边长相等) 在普通卧式铣床(如X62W) 上加工方孔。不同的是,加工出的槽深与槽长比立铣刀加工时略大些。需要注意的是,加工方案是否可行仍然要看对零件的强度与刚度的影响是否在允许的范围之内。

0 g( g* c1 u/ E: \0 C, @* S! e
" T$ C/ D+ r" ?; c' l: }
发表于 2011-6-16 19:09:09 | 显示全部楼层 来自: 中国河南洛阳
有专用的钻方孔的钻头。也有用用曲柄带动行星减速器钻方孔的工具。
发表于 2011-6-17 14:43:10 | 显示全部楼层 来自: 中国上海
有专用的钻方孔的钻头。也有用用曲柄带动行星减速器钻方孔的工具。, [3 C! \' Q5 V! l9 @2 A1 I
lirui622 发表于 2011-6-16 19:09 http://www.3dportal.cn/discuz/images/common/back.gif
; a, g2 s. d! C8 d7 h/ D! z
好方法~~~~
发表于 2011-6-17 14:57:53 | 显示全部楼层 来自: 中国吉林辽源
好,很独特的创意
发表于 2011-6-19 08:37:00 | 显示全部楼层 来自: 中国浙江宁波
好方法。。。。。。。。。。。。
发表于 2011-7-4 09:47:54 | 显示全部楼层 来自: 中国湖北武汉
是个好办法.
发表于 2011-7-5 22:32:13 | 显示全部楼层 来自: 中国上海
这样做改变了产品的加工结构了,如果方孔又配合安装要求,这样的做法是肯定不行的
发表于 2013-11-30 11:20:01 | 显示全部楼层 来自: 中国安徽马鞍山
很好的方法
发表回复
您需要登录后才可以回帖 登录 | 注册

本版积分规则


Licensed Copyright © 2016-2020 http://www.3dportal.cn/ All Rights Reserved 京 ICP备13008828号

小黑屋|手机版|Archiver|三维网 ( 京ICP备2023026364号-1 )

快速回复 返回顶部 返回列表