QQ登录

只需一步,快速开始

登录 | 注册 | 找回密码

三维网

 找回密码
 注册

QQ登录

只需一步,快速开始

展开

通知     

楼主: 使力
收起左侧

[公告] 静压动力装置——多头泵、齿轮分油器样本

[复制链接]
发表于 2011-10-11 20:06:48 | 显示全部楼层 来自: 中国湖北武汉
我们现在很需要使力大师的帮助啊1 D; E' Z( p0 h: K: S% U
sxhdmt 发表于 2011-10-11 18:13 http://www.3dportal.cn/discuz/images/common/back.gif
/ l' o" n4 @6 U$ o7 N
可以在此留言。
发表于 2011-10-14 16:15:07 | 显示全部楼层 来自: 中国河南三门峡
我们设计了一台重型龙门移动式镗铣床,龙门架重量大约是50T,想采用恒流闭式静压导轨,龙门架立柱托板的尺寸是3470*1265。初步设计的油垫尺寸是L=400,B=300,l=200,b=240。在一个立柱的托板水平面上平行对应分布有8+8个这样的油腔,两个立柱托板就是16+16个油腔。侧面油腔(尺寸未定)打算采用1侧4个,那么一个立柱托板就是4+4个,两个立柱托板是4+4+4+4=16个。也就是一个托板上有16个承载油腔和8个侧油腔,总计24个,一套静压导轨油2个托板合计48个油腔。
发表于 2011-10-14 16:22:58 | 显示全部楼层 来自: 中国河南三门峡
按照负载和有效承载面积,单个油腔的压力是2kg/cm2,取油垫间隙=0.2mm,算下来流量是6L/min。想问几个问题:+ x8 ?  I2 w( W! K2 \
1、是否一定要设计对置油腔?由于龙门架移动速度很慢,快速时才1m/min,因此不打算设对置油腔,仅有承载油腔和侧油腔,可以吗?
- G4 w; g4 {! T. B2 Z. F# h" v2、油膜厚度取0.2mm是否合适?20丝和我们6.3米立车的浮起量差不多,所以取了这个值,但在论坛里看大家取用的都是0.0Xmm,才几丝的油膜厚度,不知道有什么优劣。" W# B/ l7 O9 W, `$ n9 {4 h4 @, T
3、流量算的6L/min自己都有点怀疑是否正确,如果流量如我计算的6L/min,是否只能选择多点齿轮分油器?+ i2 K0 n6 X5 z4 B
有没有大家在龙门移动式机床上静压导轨的经验分享下,万分感谢!
发表于 2011-10-14 16:23:59 | 显示全部楼层 来自: 中国河南三门峡
本帖最后由 sxhdmt 于 2011-10-14 16:26 编辑
" c3 Q: Y. S0 A; H. P2 {
, l0 t# R7 f* F' l3 v0 R' M 未命名.JPG & Z+ T! b1 I7 p- Q0 L# N4 [
' ^. l" b; H/ K1 W1 Y9 E8 U! j: p
这是轨道和托板的剖面图
发表于 2011-10-14 16:23:59 | 显示全部楼层 来自: 中国河南三门峡
版主,我电脑上的图片如何贴上来啊?[img][img]
 楼主| 发表于 2011-10-14 20:56:40 | 显示全部楼层 来自: 中国湖北武汉
本帖最后由 使力 于 2011-10-14 21:00 编辑
0 `7 }1 i) ?$ r! [6 l. H
' K# g  o0 w5 k' m( B8 n0.2肯定是不适合的。' L- ?) X7 G9 F4 E1 m( Z3 {$ ?6 X
直接上图,龙门移动式镗铣床滑座油腔。
0 n( J0 X# S$ ` DSC00749.JPG

评分

参与人数 1三维币 +3 收起 理由
洪哥 + 3 应助

查看全部评分

发表于 2011-10-14 21:15:48 | 显示全部楼层 来自: 中国辽宁大连
终于看到使力大师出手了!那一般厚膜厚度取多少?0.05mm?9 ]; u$ W; A$ M
看图上油腔是“回”字形的,我们打算用“口”字形的,我再算算0.05mm的流量需要多少。流量和油膜厚度是3次方的关系吧,我从0.2-->0.05,流量会小很多啊。; U: `1 U" A- W
从这个图片上不好看出有没有侧油腔和对置油腔,使力大师,我的第一个问题能解答下吗,谢谢!
发表于 2011-10-14 21:17:44 | 显示全部楼层 来自: 中国山东菏泽
对了,使力大师,我的这种50T负载的情况,通常是用多头泵还是多点齿轮分油器?谢谢!
发表于 2011-10-15 21:04:43 | 显示全部楼层 来自: 中国山东菏泽
说不定和使力的QX能进行一些业务上的合作,希望能联系上
 楼主| 发表于 2011-10-16 06:57:27 | 显示全部楼层 来自: 中国湖北武汉
关于油腔布置:: [# _0 s; C6 X- i7 i
龙门移动式镗铣床滑座油腔油腔布置最简单,不像落地镗铣床,需考虑滑枕、镗轴出入;主轴箱上下时的工作扭矩变化等对支承的影响;它只需求得重心后,油腔布置的承载对称于重心,使立柱在运行和静止时不得有倾斜。这就要求油腔布置如同人的脚掌,有支承还需稳定,在我上的图中能看出有的油腔是导向用和卸荷,有的只是卸荷。5 V& ?/ g" {7 Q1 N! R
关于油膜厚度:
1 w- y8 p4 j7 R4 H7 P油膜厚度选用需综合考虑,其1,床身导轨的形状误差,不至于工作时有的位置临界摩擦,有的地方滑动摩擦,这样对运行精度有太大的影响,重复定位精度就达不到要求;其2,对于低速运行的静压导轨副,摩擦功率很小,设计时不必考虑。
4 h' F* Q5 _+ q1 h& E' f, P; w关于静压流量:
9 j$ C, s8 Y1 u  I- h- K8 S2 n流量×压力=功率,选定了油膜厚度,流量即可计算出来,计算出的流量一定在多头泵型号流量参数之间,流量选择可取大的流量,保险。流量选择还可先确定流量,调整油腔各部尺寸,满足油膜厚度。
- U$ X2 m% y5 n8 O, ^以上纯文字,希望有原则上的帮助。

评分

参与人数 1三维币 +3 收起 理由
洪哥 + 3 应助

查看全部评分

发表于 2011-10-16 16:09:23 | 显示全部楼层 来自: 中国河南三门峡
谢谢使力的大力帮助!一下子清楚很多,多谢!我会继续再计算下。' ?5 C" f* Z* X7 j* M5 s
我们这台龙门移动镗铣床,不单在横梁上有Z轴的铣、镗,在左或右立柱也会设计一个侧面的镗铣头,因此也有类似落地镗铣床的功能。不过因为是龙门架式的结构,立柱上的这个动力头对导轨的影响应该较落地镗铣床小。
发表于 2011-10-17 17:11:54 | 显示全部楼层 来自: 中国河南三门峡
我算下来46#油,油膜厚度0.1mm,总共24个承载油腔,一个立柱拖板是12个,比原设计减少了4个。流量是180ml/min,我打算买16头300ml的多头泵。
 楼主| 发表于 2011-10-17 19:54:54 | 显示全部楼层 来自: 中国湖北武汉
把图发上来,我们探讨一下。6 X# s9 b  o4 F6 e- t% M
好像0.1太大。直觉,你一定计算有问题。是否在考虑平面度误差后油膜厚度能到0.02-0.025为好。
8 |7 i3 |" Z9 ?0 q& k5 \油,别看好多人用46#,你就也用它,建议22#或32#,这样就不需温控。

评分

参与人数 1三维币 +3 收起 理由
洪哥 + 3 应助:)

查看全部评分

发表于 2011-10-17 20:57:57 | 显示全部楼层 来自: 中国辽宁大连
我明天到单位把图发上来,谢谢帮助!/ `6 T; t5 c) G
选0.1是出于这样的考虑:
% ]8 o* Z2 z5 }2 y6 p2 O1、拖板底部是厂里自己磨的,而非刮研,整个拖板长3米47,因此考虑误差大一些
3 C1 G: b# L( H- {  w2、油腔是直接在拖板底部铣出来的,而非导轨板做油垫再装在拖板底部的,因此拖板磨削的误差会叠加在这里
8 {, t& J$ @! J8 I; O8 f0 H; }' D0 e& m3、考虑到整个液压站的元件的效率和装配的优劣,可能设计是0.1,实际能浮起的最多是0.08吧,范围设计的宽一些,期望在前给泵上做一些调节
- u! A# o! k1 u) O, B* v, y选46#油是我们厂一直都在用46#做液压油,也就从了经验,还是用46#,22或32会不会太稀?
发表于 2011-10-18 10:54:44 | 显示全部楼层 来自: 中国河南三门峡
这是拖板的上平面图。12个大螺栓孔就是立柱的投影位置,上平面没有标注油腔的尺寸
, P8 B( h( `) _# B5 w; F9 s3 o
- E. r/ D2 @% ?7 f! \* q6 R3 j 上面.JPG
发表于 2011-10-18 10:58:56 | 显示全部楼层 来自: 中国河南三门峡
这是拖板的下平面图,油腔还是原设计的一边8个,一个拖板总计16个。油腔尺寸是200*240,在拖板长度上是200mm,在拖板宽度上是240mm。油垫尺寸:长(取两油腔中间)400,宽300mm。* f. A# h) k  j0 [

* G6 Y* C& n4 N 底面.JPG
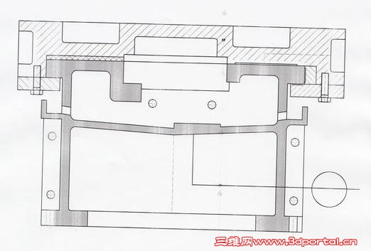
发表于 2011-10-18 11:08:40 | 显示全部楼层 来自: 中国河南三门峡
再上一个剖面图,拖板有镶板和压板,在两侧有侧面油腔,一边4个,一个拖板共8个。由于负载基本恒定,对置油腔没有设计。
- X9 O& Z/ R% ]$ z' f, f0 Y: ^2 M9 A8 A5 j2 ^% F& O1 q/ w
剖面.JPG
发表于 2011-10-18 11:46:12 | 显示全部楼层 来自: 中国河南三门峡
本帖最后由 sxhdmt 于 2011-10-18 11:50 编辑 $ K3 Y, d$ W( L% c: ]
* o, W3 R( O% l. e2 W- K- ?" T
因为理解的实在不深,很多地方是套公式,不知其所以然,所以结果上肯定有不合理的地方,先谢. T/ m( F9 z+ E& h1 O8 ~+ _
谢使力的帮助!也算是抛砖引玉,大家都可以借这个例子学习下吧。谢谢!* o! C) [) {; H& z  b
3 q# {# o( d' K5 Z
1、负载为整个龙门架的重量,按50T计算。承载油腔暂时还是按原设计32个,因此每个油腔的负载6 r6 h* C: P3 G
是50*1000/32=1562.5kg≈16000N(取略大点)2 Z: e# o- s1 |9 f5 x# U
6 }- j. t+ k. U8 k+ K
2、有效承载面积:油腔l=200mm,b=240mm,油垫L=400mm,B=300mm,A=[(200+400)/2]*
5 m& `5 ~7 h5 n) ?) ]+ l  a. I) k[(240+300)/2]=81000m㎡=810c㎡
# B% d& J9 ~0 L8 n2 a; W
# r- [4 ]" T, F# h# }5 C& T9 \" F3、每个油腔的压力P=16000N/810c㎡=19.75N/c㎡≈20N/c㎡(取略大点)( x% K7 R. k3 Y7 U

/ t  I1 W; D% R) _3 c3、46#油粘度取u=4.3*10^-8(N.s/m㎡) = 4.3*10^-6(N.s/c㎡) ,油膜厚度取h=0.1mm=0.01cm, v- {1 ?8 S, R* P
) W7 \2 N, P  s, {! T
4、流量Q= (P*h^3/6u)*[(l/(B-b))+(b/(L-l))] = (20*(0.01)^3/6*4.3*10^-6)*[(20/(30-24))+(24/(40-20))] =3.514c㎡/s=210.84ml/min/ F+ M! }1 J4 A% o

/ |4 C& s3 A9 w8 b0 N8 E( t5 S5、得:每个油腔的流量是210.84ml/min,范围取大,就需要300ml的多头泵。5 Z% N4 F) H' Z) Z+ p1 q
: j: {# Q% d. e' P* Q6 }
我是这样计算的,请使力和大家看看有何不妥或错误,非常感谢!
发表于 2011-10-18 13:00:25 | 显示全部楼层 来自: 中国湖北武汉
再上一个剖面图,拖板有镶板和压板,在两侧有侧面油腔,一边4个,一个拖板共8个。由于负载基本恒定,对置油腔没有设计。6 ~# A# i8 b+ g0 c

  ]2 u0 ?4 W* ~0 O0 s; `1955504  C- Q+ q- ^$ Z. Y) |1 L
sxhdmt 发表于 2011-10-18 11:08 http://www.3dportal.cn/discuz/images/common/back.gif

7 O8 d3 U9 m5 D1 [从这张设计图的比例来看,似乎有以下问题:1 F8 z- s; F  @0 F( d  ^7 r
1)床身导轨板的厚尺寸应大于导轨板下面垂直板的厚度尺寸2倍左右;
9 P) Z; n; g4 L5 D" O) q8 v2)床身两侧垂直板如果是各一条的话,它应该在导轨板下面的中心线上。* l( \1 x' `) y0 p* v4 `+ I
仅供参考。
发表于 2011-10-18 15:15:50 | 显示全部楼层 来自: 中国河南三门峡
本帖最后由 sxhdmt 于 2011-10-18 15:17 编辑
; h  c* D. D" g
) n3 J8 R0 B( t5 K44# 洪哥 # L0 w, R- k; Y
) X  E6 x" d8 d& ]7 c
谢谢洪哥。
% i( d- Y$ |1 b/ t; T3 G这个剖面是龙门的一条轨道的剖面,不是工作台剖面。这次的镗铣床,是龙门架移动,工作台固定。静压也是作用在龙门架左右立柱下的轨道上。' j5 q  n4 v9 ]1 r9 a2 j9 {
结构上是左右立柱下各螺栓固定一个拖板,就是前面发的上平面和下平面所述的拖板,拖板下平面设置静压油腔。无静压时,拖板与剖视图中的轨道接触。有静压时,拖板下平面与轨道之间形成油膜,两个拖板分别托举起左右立柱以及立柱之间的横梁、动力头等。% C& ?" E" a; U9 q" _5 o0 u+ i
3 G1 c( ?4 s/ _! S- I
原来是想用导轨板制作油腔再胶合到拖板下平面的,后来考虑拖板移动速度很低(1m/min),就想直接在拖板铸件的下平面铣出油腔来。不知这样的做法可行吗,有没有人这样做过。
发表于 2011-10-18 15:20:42 | 显示全部楼层 来自: 中国河南三门峡
本帖最后由 洪哥 于 2011-10-18 17:29 编辑
: C+ G. J! X. e, V7 z* Q  ?) s# v; G" ^
44# 洪哥
$ {* L; r6 m6 N* w, X+ Y2 h# k( ?4 |  X& s' T* Y5 [7 V8 w
洪哥,您说的这个导轨板下面的垂直板是哪个? 床身纵向支撑导轨的垂直钢板(如果是结果件的话)。
+ C  s& q. r5 _- E+ `* K3 j5 g
7 h5 T" i3 u# @' H6 G
您第2条的意思我明白,是导轨板的中心应该和下面轨道的垂直支撑的中心线吻合——是。
发表于 2011-10-19 09:36:26 | 显示全部楼层 来自: 中国山东菏泽
我理解您这里说的床身就是我的轨道体,轨道体上面是拖板,拖板是移动件,开有油腔。床身=轨道体;工作台=拖板。
2 X4 J1 {( R2 B1 a/ l" J2 Q轨道体是HT250的铸件,纵向支撑的厚度还是挺厚的,用导轨板做油垫的话,厚度要大于铸件纵向支撑厚度的2倍。
  q( Q: {) Q, d; f& g; ~1 N! i原来是想用导轨板制作油垫再胶合到拖板下平面的,后来考虑拖板移动速度很低(1m/min),就想直接在拖板铸件的下平面铣出油腔来。不知这样的做法可行吗,有没有人这样做过?
发表于 2011-10-19 13:26:48 | 显示全部楼层 来自: 中国湖北武汉
我理解您这里说的床身就是我的轨道体,轨道体上面是拖板,拖板是移动件,开有油腔。床身=轨道体;工作台=拖板。
) ?/ k( N( P4 o  J' D1 M2 o轨道体是HT250的铸件,纵向支撑的厚度还是挺厚的,用导轨板做油垫的话,厚度要大于铸件纵向支撑厚度的 ...1 g2 S& u3 d( g: Y3 O
sxhdmt 发表于 2011-10-19 09:36 http://www.3dportal.cn/discuz/images/common/back.gif
4 M5 X3 A  i7 ?4 y! \; l5 ?( T
1)拖板下面一般镶有色金属材料的导轨板,在导轨板上开油槽,这样做的好处很多;
0 u0 o2 J5 x1 [- v& y  \; z* f! O+ z% k2)为了提高工作效率,拖板的快移速度一般在5米以上。
 楼主| 发表于 2011-10-20 03:27:58 | 显示全部楼层 来自: 中国湖北武汉
如果导轨配合精度达不到要求,0.1也会出问题。通常,地基变形,水平没调好都会使静压失效,出现局部比压大,研伤导轨面。8 \& Q6 {1 n+ i% w/ p( w" z5 o
如果一切满足要求,拖把不用减磨材料也未尝不可。$ Y; z" P" P5 p( U* b
如果一切满足要求,浮升又能达到0.1,你是否考虑过,当加工上平面时停电等情况会打刀呀?$ {, _+ v7 S& v! O0 h4 K! @
回油是个容易忽视的问题,注意到这点。油箱设计请考虑一个回油周期的用油量。
0 H8 x: x$ X" C4 X. {拖板快速怎么也要到4m/min,不然操作工很烦。

评分

参与人数 1三维币 +3 收起 理由
洪哥 + 3 应助

查看全部评分

发表于 2011-10-20 09:46:10 | 显示全部楼层 来自: 中国河南三门峡
谢谢两位的指点,我会请设计再考虑导轨板和快移的问题。加工上平面打刀也被忽略了,我得去提醒下,非常感谢!
. ~7 e+ ?. j2 v9 P; B- B! ~对回油周期,请两位大师看看我前面算的这个“每个油腔的流量是210.84ml/min,范围取大,就需要300ml的多头泵”正确吗?
/ U- I% u6 c4 M! ^/ X7 c* Q再次多谢!
发表回复
您需要登录后才可以回帖 登录 | 注册

本版积分规则


Licensed Copyright © 2016-2020 http://www.3dportal.cn/ All Rights Reserved 京 ICP备13008828号

小黑屋|手机版|Archiver|三维网 ( 京ICP备2023026364号-1 )

快速回复 返回顶部 返回列表