QQ登录

只需一步,快速开始

登录 | 注册 | 找回密码

三维网

 找回密码
 注册

QQ登录

只需一步,快速开始

展开

通知     

全站
9天前
楼主: mengfansheng
收起左侧

[讨论] 去除工艺台变形

[复制链接]
发表于 2013-2-14 21:26:26 | 显示全部楼层 来自: 中国江苏常州
本帖最后由 ftgww123 于 2013-2-14 21:30 编辑
0 ?$ W* s/ z- ~. M" b7 K4 U& w
1.高精度的内涨心轴当然比较贵,但批量大的话是可以考虑的。
: R" t2 c! @& P, f5 O- W2.如果只用于加工车削工艺台阶端面,端面跳动要求又不太高的话(比如0.1),夹具精度就相对低一点了,批量小的话,手动螺旋夹紧也行。当然工件较大,精度还是不低的的。我原来的单位自制夹具,现在不联系了。能加工的单位很多啊,大家说说。
发表于 2013-2-14 21:46:12 | 显示全部楼层 来自: 中国江苏常州
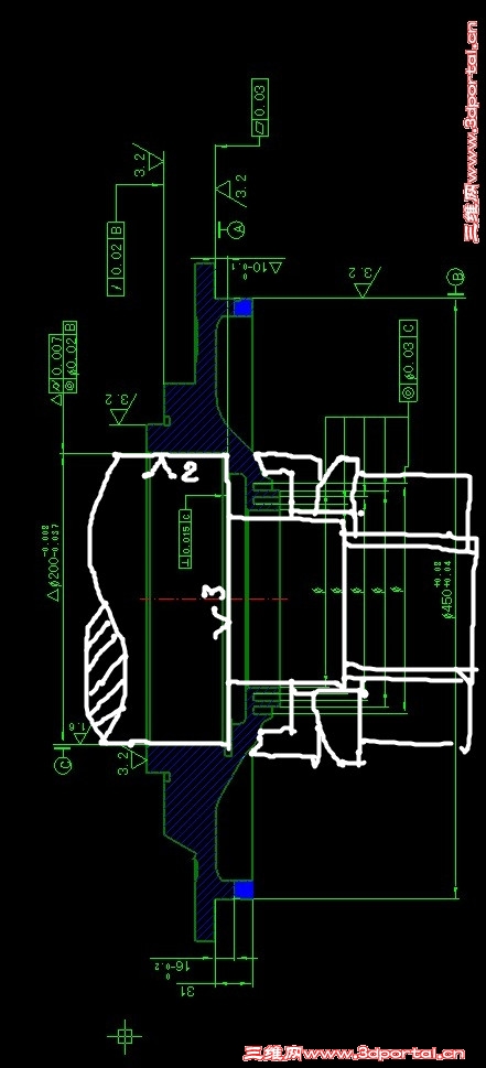
不用内涨夹具的话,定位夹紧位置的选择很重要,这个前面几位已经提到过了。
; l5 l7 u7 o3 c8 C2 Y2 E2 X& B我再提供一个定位夹紧的方案,在你图纸上简单地涂鸦了一下。
6 U5 Z& N; N$ W0 c% F200内径及内端面定位,与内端面定位位置相对的外端面通过球面垫圈副,用螺母夹紧。
; v+ a# A6 i  c: e6 `6 f定位夹紧位置相对应,应该变形不大。
7 Y9 Y# q7 ~' B7 ?  I+ R8 i" T夹紧力是否足够防转呢. E8 {  H% |" O- u# ]
104011xoaoavaa84vmc5al_副本.jpg
8 u' ]' `% O2 p+ J% V

评分

参与人数 1三维币 +2 收起 理由
mengfansheng + 2 技术讨论

查看全部评分

 楼主| 发表于 2013-2-17 18:25:54 | 显示全部楼层 来自: 中国山东烟台
图示所压的区域为加工的区域,不过定位方案可以一试,开始我怕加工区域离加工位置较远,会发颤没有采用你的这个方案,而且夹紧力也是个问题;近期也在考虑这个问题,如果还是采用压大端面,而在200处加支撑,会更好一些,毕竟变形的方向有规律可循,正是重力的方向,谢谢楼上了。
发表回复
您需要登录后才可以回帖 登录 | 注册

本版积分规则


Licensed Copyright © 2016-2020 http://www.3dportal.cn/ All Rights Reserved 京 ICP备13008828号

小黑屋|手机版|Archiver|三维网 ( 京ICP备2023026364号-1 )

快速回复 返回顶部 返回列表