QQ登录

只需一步,快速开始

登录 | 注册 | 找回密码

三维网

 找回密码
 注册

QQ登录

只需一步,快速开始

展开

通知     

楼主: 小刘-到
收起左侧

[已解决] 平行度,平整度标注的疑问

[复制链接]
发表于 2014-8-16 09:41:23 | 显示全部楼层 来自: 中国广东梅州
哎,中国标准,美国标准,欧洲标准。。。
发表于 2014-8-16 09:42:15 | 显示全部楼层 来自: 中国广东梅州
香港都有标准。
发表于 2014-8-16 10:11:05 | 显示全部楼层 来自: 中国广东梅州
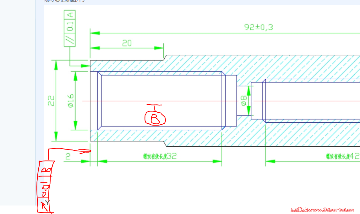
我以前刚刚看宝洁公司的图纸,就闹了个笑话。人家单位是英寸,我说这么小的工件没有加工过。后来才知道人家公差也不标注的,是按照标注的尺寸就知道公差范围。比如尺寸小数点后越多,尺寸公差越精密。
 楼主| 发表于 2014-8-16 14:03:14 | 显示全部楼层 来自: 中国广东深圳
非主流~不离 发表于 2014-8-16 10:11 static/image/common/back.gif
9 I9 C( t& r! I$ X我以前刚刚看宝洁公司的图纸,就闹了个笑话。人家单位是英寸,我说这么小的工件没有加工过。后来才知 ...

- q; F  M7 Z! w6 j, f9 U对呀,未标注公差的就按图框里面的公差计算,我也见过。
发表于 2014-8-16 15:33:11 | 显示全部楼层 来自: 中国陕西西安
小刘-到 发表于 2014-8-13 08:39 static/image/common/back.gif* T9 z  b4 u5 c1 e& A% x
谢谢前辈的指导!!!
. ^+ w1 I8 o7 A1、直径8毫米的孔,我专门又问过师父了,他说要留着,我就先不纠结它了。0 m# y# S3 s) U% R, i
2、孔口 ...
, M% B& X" b! n; I
小数分隔符号的设置:/ n5 q9 J, V' e/ n! j
0 L3 E( i3 {  V  {1 g, E
20140816-6.PNG

评分

参与人数 1三维币 +5 收起 理由
2005llnn + 5 应助

查看全部评分

发表于 2014-8-16 15:39:12 | 显示全部楼层 来自: 中国陕西西安
小刘-到 发表于 2014-8-13 15:59 static/image/common/back.gif
4 I4 ?" j6 G5 J' d1 |8 i前辈说的也是,可是怎么标呀?4 H* a! B- b, x& I
还有一个疑问,像图纸这样画出来,明显垂直的,究竟需不需要说明呢?以前 ...

8 A# ^* g  }! X. Y端面跳动标法:6 V  w6 _8 [! m; v
1 Z: }" s) e8 S: I! [& j
20140816-7.PNG

评分

参与人数 1三维币 +5 收起 理由
2005llnn + 5 应助

查看全部评分

 楼主| 发表于 2014-8-20 08:31:14 | 显示全部楼层 来自: 中国广东深圳
我爱用acad 发表于 2014-8-16 15:33 static/image/common/back.gif
( H( u: j1 o! K小数分隔符号的设置:

& |6 P2 {! P9 ], A谢谢前辈,已经按前辈的方法修改啦!
发表回复
您需要登录后才可以回帖 登录 | 注册

本版积分规则


Licensed Copyright © 2016-2020 http://www.3dportal.cn/ All Rights Reserved 京 ICP备13008828号

小黑屋|手机版|Archiver|三维网 ( 京ICP备2023026364号-1 )

快速回复 返回顶部 返回列表