QQ登录

只需一步,快速开始

登录 | 注册 | 找回密码

三维网

 找回密码
 注册

QQ登录

只需一步,快速开始

展开

通知     

楼主: muhdi
收起左侧

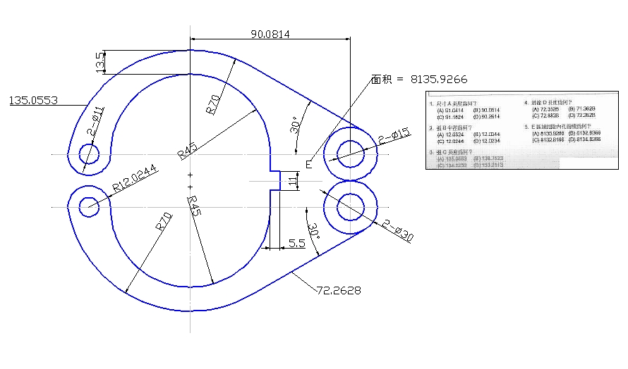
[练习题] 基础综合练习14

[复制链接]
发表于 2009-3-25 09:29:52 | 显示全部楼层 来自: 中国台湾
发表于 2009-5-10 09:42:18 | 显示全部楼层 来自: 中国广东中山

回复 1# muhdi 的帖子

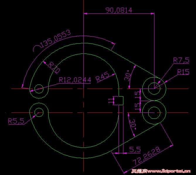
答案标注在图上 2.jpeg

评分

参与人数 1三维币 +5 收起 理由
2005llnn + 5 参与鼓励

查看全部评分

发表于 2009-5-10 11:32:33 | 显示全部楼层 来自: 中国浙江杭州
闲来无事,做做练习!
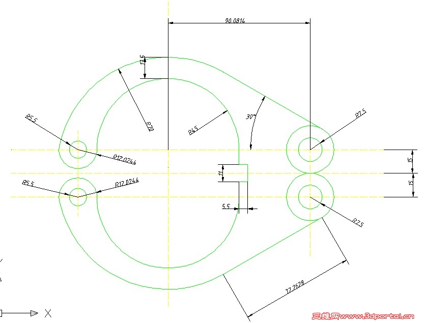
练习1.jpg
练习2.jpg

lianxi1.dwg

48.22 KB, 下载次数: 12

评分

参与人数 1三维币 +5 收起 理由
2005llnn + 5 参与鼓励

查看全部评分

发表于 2009-5-22 10:01:13 | 显示全部楼层 来自: 中国山东烟台
刚才那张图漏了几个尺寸,重发一张( p$ M' q# U4 N& Y2 R6 n! O
基础练习14.jpg

评分

参与人数 1三维币 +5 收起 理由
2005llnn + 5 参与鼓励

查看全部评分

发表于 2009-7-19 09:16:21 | 显示全部楼层 来自: 中国山东东营
面积不对,不知问题出在哪儿?
. K( r: j* A* R  g3 b- h 14.GIF

评分

参与人数 1三维币 +5 收起 理由
2005llnn + 5 参与鼓励

查看全部评分

发表于 2009-7-23 17:59:13 | 显示全部楼层 来自: 中国福建莆田
1B 2C  3A  4D 5A7 |6 E9 x3 |3 y# q7 q1 z) F4 I
未命名.jpg

评分

参与人数 1三维币 +5 收起 理由
2005llnn + 5 参与鼓励

查看全部评分

发表于 2009-8-4 22:15:46 | 显示全部楼层 来自: 中国江苏无锡
我也来画一个。。。。。
14.jpg

评分

参与人数 1三维币 +5 收起 理由
2005llnn + 5 参与鼓励

查看全部评分

发表于 2009-9-25 17:56:56 | 显示全部楼层 来自: 中国广东汕头
来交作业了,答案是1B   2C   3A   4D   5A
Drawing1.dwgF.jpg

评分

参与人数 1三维币 +5 收起 理由
2005llnn + 5 参与鼓励

查看全部评分

发表于 2009-10-12 17:31:42 | 显示全部楼层 来自: 中国北京
基础综合练习14
练习14.JPG

评分

参与人数 1三维币 +5 收起 理由
2005llnn + 5 参与鼓励

查看全部评分

发表于 2010-1-5 10:02:42 | 显示全部楼层 来自: 中国广东广州
交作业啦~~~
3.jpg

评分

参与人数 1三维币 +3 收起 理由
2005llnn + 3 参与鼓励

查看全部评分

发表于 2010-3-30 11:50:32 | 显示全部楼层 来自: 中国浙江金华

RE: 基础综合练习14

本帖最后由 wujiwei 于 2010-3-30 11:54 编辑
: _* T# o$ Z! q* d( r& i" O" e
! P' i& B) r5 G) [" m2 G" _练习练习,答案为BCADA,之前没看序号。。。。。答案顺序错了,还少答了一个。。。
基础练习14.jpg
发表于 2010-8-8 23:48:16 | 显示全部楼层 来自: 中国广东东莞
新生来指教
14.jpg

评分

参与人数 1三维币 +3 收起 理由
2005llnn + 3 参与鼓励

查看全部评分

发表于 2010-9-6 20:12:05 | 显示全部楼层 来自: 中国江苏镇江
终于画出来了
图象 539x422.jpg

评分

参与人数 1三维币 +3 收起 理由
2005llnn + 3 参与鼓励

查看全部评分

发表于 2010-9-14 13:10:31 | 显示全部楼层 来自: 中国浙江宁波
本帖最后由 fu140226 于 2010-9-14 13:41 编辑 5 i) S& S8 Y. j& t3 j$ c

; q! Z, D/ T& A" W, ]做好了,还是不会计算,哎。。。弧度不会算,谁给教下,其他四个答案我都对的。
1.jpg
1.jpg

评分

参与人数 1三维币 +2 收起 理由
2005llnn + 2 参与鼓励

查看全部评分

发表于 2010-9-16 15:14:33 | 显示全部楼层 来自: 中国江苏南京
BCADA! 14.jpg

评分

参与人数 1三维币 +2 收起 理由
2005llnn + 2 参与鼓励

查看全部评分

发表于 2010-12-19 15:17:16 | 显示全部楼层 来自: 中国广东湛江
本帖最后由 2005llnn 于 2010-12-23 16:03 编辑 2 a& F& n! k5 V3 [5 Q

; q" A7 H) J$ z. W/ C% f' A3 |& W1 X练习了。。! Q, |1 a4 \- l, ~

- [& K7 R. Q) {0 _1 M怎么jpeg格式的图片都上传不了??1 k0 s$ A) j9 h( C% R+ o

& E8 [) Q1 ?+ _; [+ o. Z+ ^ 练习14.dwg (35.37 KB, 下载次数: 3)
练习14.jpg

评分

参与人数 1三维币 +2 收起 理由
2005llnn + 2 参与鼓励

查看全部评分

发表于 2011-5-23 18:52:39 | 显示全部楼层 来自: 中国北京
交作业2 E9 O- K) F# e1 X! L4 k0 S
Drawing3-Model.jpg

评分

参与人数 1三维币 +3 收起 理由
2005llnn + 3 参与鼓励

查看全部评分

发表于 2011-6-11 21:51:17 | 显示全部楼层 来自: 中国江苏苏州
1.B 2.C 3.A 4.D 5.A/ U. b% s' k" ?# F8 \' |; ?2 p1 G' `
坚持练习!再次感谢楼主分享!
练习14.jpg

评分

参与人数 1三维币 +3 收起 理由
2005llnn + 3 参与鼓励

查看全部评分

发表于 2011-8-2 11:58:47 | 显示全部楼层 来自: 中国湖北武汉
答案:1.B    2.C    3.A    4.D    5.A
基础综合练习14.jpg

评分

参与人数 1三维币 +3 收起 理由
2005llnn + 3 参与鼓励

查看全部评分

发表于 2011-8-9 19:46:16 | 显示全部楼层 来自: 中国江苏
本帖最后由 tangwanyong1987 于 2011-8-9 19:50 编辑
" d' a, H# E* C: _5 a9 W
1 ?& _9 r4 f8 l! Y$ b& A; |# y多多参考,增加练习  : }) [3 a& z$ b' k( ^2 N$ N! w
好像题有误?
( I/ b' N0 W$ e 练习题.jpg

评分

参与人数 1三维币 +3 收起 理由
2005llnn + 3 参与鼓励

查看全部评分

发表于 2011-9-18 11:03:18 | 显示全部楼层 来自: 中国江苏盐城
画了一个8 l% ^6 Q9 G' ~7 a* v6 y
未命名.JPG

评分

参与人数 1三维币 +3 收起 理由
2005llnn + 3 参与鼓励

查看全部评分

发表于 2011-11-9 14:40:13 | 显示全部楼层 来自: 中国山东菏泽
想了好久,画出来了,可感觉不对
0 Q7 v+ ~" P3 d* r+ J希望高人能把正确的制图过程上传下,供大家学习分享
: J2 ^" \" R. m+ u; E: \8 R不胜感激
未命名.jpg

评分

参与人数 1三维币 +3 收起 理由
2005llnn + 3 参与鼓励

查看全部评分

发表于 2011-11-13 16:56:34 | 显示全部楼层 来自: 中国陕西西安
画画图 ,交作业
14,.jpg

评分

参与人数 1三维币 +3 收起 理由
2005llnn + 3 参与鼓励

查看全部评分

发表于 2012-1-15 16:20:07 | 显示全部楼层 来自: 中国福建泉州
作业又完成11-16
; k# ~7 j! z4 R' R1 C 基础综合练习14.JPG (203.86 KB, 下载次数: 0)

评分

参与人数 1三维币 +3 收起 理由
2005llnn + 3 参与鼓励

查看全部评分

发表于 2012-1-23 15:00:27 | 显示全部楼层 来自: 中国广东佛山
呵呵~!做了我两天~!
14.jpg

评分

参与人数 1三维币 +15 收起 理由
woaishuijia + 15 参与鼓励&节日红包

查看全部评分

发表回复
您需要登录后才可以回帖 登录 | 注册

本版积分规则


Licensed Copyright © 2016-2020 http://www.3dportal.cn/ All Rights Reserved 京 ICP备13008828号

小黑屋|手机版|Archiver|三维网 ( 京ICP备2023026364号-1 )

快速回复 返回顶部 返回列表