QQ登录

只需一步,快速开始

登录 | 注册 | 找回密码

三维网

 找回密码
 注册

QQ登录

只需一步,快速开始

展开

通知     

楼主: 5585471
收起左侧

[已解决] 等分问题

[复制链接]
 楼主| 发表于 2009-6-1 13:50:38 | 显示全部楼层 来自: 中国广东佛山
还是不明白你们是怎样等分相等的弧长出来的。。我数学学不好。。郁闷,可以说清楚一点吗、、、?
发表于 2009-6-1 16:09:32 | 显示全部楼层 来自: 中国福建福州

回复 26# 5585471 的帖子

用命今DIV就好了
 楼主| 发表于 2009-6-1 16:55:46 | 显示全部楼层 来自: 中国广东佛山

回复 27# zhangzhener 的帖子

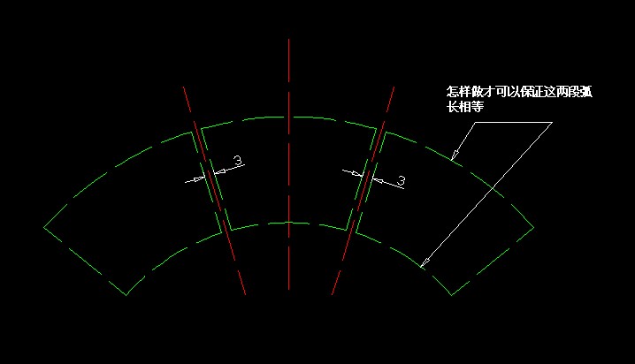
你是说吧弧长3等分吧。。我也是这样做,但是在偏移了3mm的等分线后,弧长就不相等了
 楼主| 发表于 2009-6-1 17:04:59 | 显示全部楼层 来自: 中国广东佛山
如图所示,保证等分线3mm的前提下,在保证弧长相等
未命名.jpg
 楼主| 发表于 2009-6-3 09:31:06 | 显示全部楼层 来自: 中国广东佛山
自己顶一个,希望有朋友能帮帮忙
发表于 2009-6-3 11:02:23 | 显示全部楼层 来自: 中国广西河池

回复 29# 5585471 的帖子

请参考21#结果:等分问题终结篇——楼主的题目无解。
发表于 2009-6-5 08:03:30 | 显示全部楼层 来自: 中国江苏无锡
如果说用CAD作图法来解决这个问题,我想应该很难吧,如果用函数来计算,那这个问题还不是很复杂。% o/ o5 Q$ w) t$ b9 k* p- q
一、设圆心坐标为(0,0),并为分割线设两个变量m,n。
3 [9 s% E+ |/ S3 ^0 I二、首先求A点的坐标,不难。( }$ P: y+ p' G, B  G
三、再求直线L1的表达式,用m,n来表示。
# |- W: Q3 @0 f/ f3 d% W四、再推出L2和L3的表达式。
5 r7 y+ D8 ?% q) W& @( a五、计算交点B、C的坐标。
' \+ t% v/ n5 P+ N六、线段AB的距离等于C点x坐标的两倍,从而得到关于m,n的一个方程。1 u6 k! N( o) A2 ^" m
七、大圆弧作同样的计算,得到关于m,n的另一个方程。7 a# n9 j. U$ F5 {
对于解方程问题,excel还是有一套的,且其精度尚可。
1 k6 ~5 k4 h; _  f1 D; _7 Z% G 未命名.JPG
发表回复
您需要登录后才可以回帖 登录 | 注册

本版积分规则


Licensed Copyright © 2016-2020 http://www.3dportal.cn/ All Rights Reserved 京 ICP备13008828号

小黑屋|手机版|Archiver|三维网 ( 京ICP备2023026364号-1 )

快速回复 返回顶部 返回列表