QQ登录

只需一步,快速开始

登录 | 注册 | 找回密码

三维网

 找回密码
 注册

QQ登录

只需一步,快速开始

展开

通知     

楼主: muhdi
收起左侧

[练习题] 基础综合练习03

[复制链接]
发表于 2008-11-8 18:20:38 | 显示全部楼层 来自: 中国河北邯郸
请教一下右下角的小圆弧的画法,想了半天搞不明白。
2 j+ J. |4 [% W1 E' H8 ?5 @. R( v: N2 y6 X$ s8 k9 y
改了一下,版主看下对吗???) K9 A/ K% Q  Y* N% k6 V* ~8 D# r
. N; Y7 T4 r* n% ]
[ 本帖最后由 hiuhangzhe 于 2008-11-10 14:04 编辑 ]
5.JPG
5.JPG

基础练习03.dwg

105.28 KB, 阅读权限: 90, 下载次数: 0

评分

参与人数 1三维币 +3 收起 理由
2005llnn + 3 鼓励,图下方虚线部分没有画好

查看全部评分

发表于 2008-11-15 18:35:22 | 显示全部楼层 来自: 中国重庆

sdda

学习中!画了好久哟!
ddd.jpg

评分

参与人数 1三维币 +5 收起 理由
2005llnn + 5 很好

查看全部评分

发表于 2008-11-16 09:02:04 | 显示全部楼层 来自: 中国江苏苏州
迟到的练习。
3.jpg

评分

参与人数 1三维币 +5 收起 理由
2005llnn + 5 很好

查看全部评分

发表于 2008-11-23 21:52:38 | 显示全部楼层 来自: 中国河北保定
请问楼主,R10和R105怎么画呢,谢谢!
发表于 2008-11-24 13:26:06 | 显示全部楼层 来自: 中国上海
交一下作业
3.GIF

评分

参与人数 1三维币 +5 收起 理由
2005llnn + 5 很好

查看全部评分

发表于 2008-11-30 11:03:49 | 显示全部楼层 来自: 中国广东佛山

基础综合练习03

基础综合练习03
J03.jpg

J03.rar

37.17 KB, 阅读权限: 100, 下载次数: 0

评分

参与人数 1三维币 +5 收起 理由
2005llnn + 5 很好

查看全部评分

发表于 2008-11-30 17:01:23 | 显示全部楼层 来自: 中国广东中山
还真费神啊,,, )10*(9 g7 ?' `8 m2 I5 u- Q  {

; `$ K7 f0 F; N! f, A8 }2 q+ U[ 本帖最后由 2005llnn 于 2008-12-1 16:35 编辑 ]
基础综合练习-03.jpg

基础综合练习-03.dwg

49.88 KB, 下载次数: 24

评分

参与人数 1三维币 +3 收起 理由
2005llnn + 3 鼓励,以后请直接贴图。

查看全部评分

发表于 2008-12-3 13:40:26 | 显示全部楼层 来自: 中国湖南长沙
作得不好看,让行家见笑了
练习3.jpg

评分

参与人数 1三维币 +4 收起 理由
2005llnn + 4 鼓励,尺寸45标注有误

查看全部评分

发表于 2008-12-3 14:44:09 | 显示全部楼层 来自: 中国湖南长沙
版主真是细心啊,谢谢,已修改
修改.jpg

评分

参与人数 1三维币 +1 收起 理由
2005llnn + 1 很好

查看全部评分

发表于 2008-12-6 20:31:01 | 显示全部楼层 来自: 中国安徽蚌埠
做题~
/ ?0 z2 Z9 U: J6 Y/ b 基础综合练习03.jpg

评分

参与人数 1三维币 +5 收起 理由
2005llnn + 5 很好

查看全部评分

发表于 2008-12-13 21:08:18 | 显示全部楼层 来自: 中国江苏无锡

基础练习T3

画了好久总算画出来了。。学习得加快。。能不能把练习要点提示下呢?
练习3.jpg

评分

参与人数 1三维币 +5 收起 理由
2005llnn + 5 很好

查看全部评分

发表于 2008-12-13 22:35:18 | 显示全部楼层 来自: 中国浙江杭州
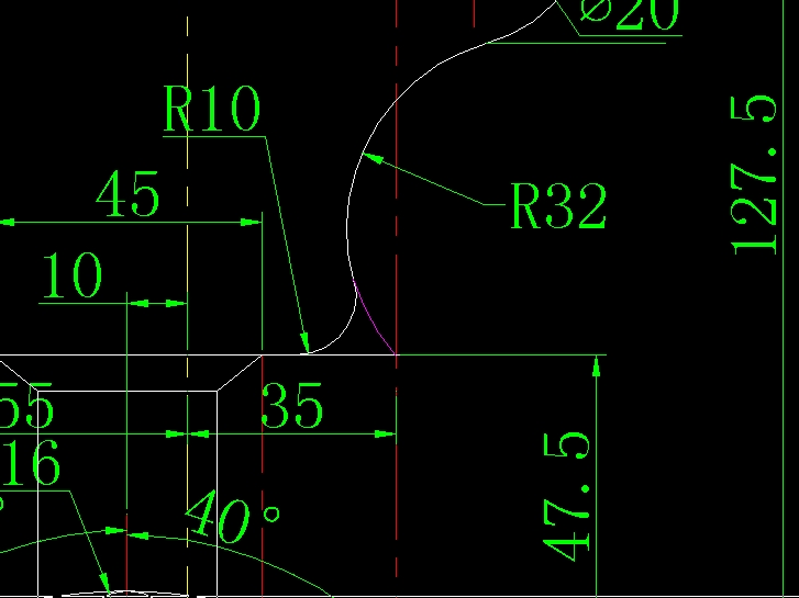
斑竹请过目
二维基础综合03.png

评分

参与人数 1三维币 +4 收起 理由
2005llnn + 4 很好,但右边尺寸128应该为127.5

查看全部评分

发表于 2008-12-16 13:05:31 | 显示全部楼层 来自: 中国北京
我也做完了!
未命名.JPG

评分

参与人数 1三维币 +5 收起 理由
2005llnn + 5 很好

查看全部评分

发表于 2008-12-16 13:59:48 | 显示全部楼层 来自: 中国四川德阳
我是新来了会员,对这里面的很多知识很感兴趣,请问楼主,在那里可以下载CAD绘图软件
发表于 2008-12-25 14:45:51 | 显示全部楼层 来自: 中国广西贺州
练习了 4.JPG

评分

参与人数 1三维币 +4 收起 理由
wang2003 + 4 参与鼓励

查看全部评分

发表于 2008-12-29 18:48:33 | 显示全部楼层 来自: 中国上海
基础综合练习03.png

评分

参与人数 1三维币 +3 收起 理由
wang2003 + 3 鼓励参与

查看全部评分

发表于 2009-1-6 13:34:21 | 显示全部楼层 来自: 新加坡
交作业,多多加强
练习3.JPG

评分

参与人数 1三维币 +3 收起 理由
2005llnn + 3 参与奖

查看全部评分

发表于 2009-1-7 09:15:52 | 显示全部楼层 来自: 中国福建厦门
完成!交作业~
未命名.JPG

评分

参与人数 1三维币 +3 收起 理由
2005llnn + 3 参与鼓励

查看全部评分

发表于 2009-1-7 11:28:33 | 显示全部楼层 来自: 中国上海
交作业了,花了不少时间,看来还需多多学习。
$ R, E$ l5 w, T+ X3 F3 z) \' k 未命名.JPG

评分

参与人数 1三维币 +3 收起 理由
2005llnn + 3 参与鼓励

查看全部评分

发表于 2009-1-15 16:02:32 | 显示全部楼层 来自: 中国山东滨州
练习了。。。
未命名.JPG

评分

参与人数 1三维币 +3 收起 理由
2005llnn + 3 参与鼓励

查看全部评分

发表于 2009-1-29 14:18:59 | 显示全部楼层 来自: 中国
过年不忘学习
练习3L.JPG

评分

参与人数 1三维币 +3 收起 理由
2005llnn + 3 参与鼓励

查看全部评分

发表于 2009-1-30 20:20:23 | 显示全部楼层 来自: 中国河南安阳
做了好长时间 00001.jpg

评分

参与人数 1三维币 +3 收起 理由
2005llnn + 3 参与鼓励

查看全部评分

发表于 2009-2-2 13:12:08 | 显示全部楼层 来自: 中国内蒙古兴安盟

谢谢MUHDI

谢谢MUHDI老师
001.jpg

评分

参与人数 1三维币 +3 收起 理由
2005llnn + 3 参与鼓励

查看全部评分

发表于 2009-2-15 12:39:57 | 显示全部楼层 来自: 中国广东江门
练习啦
QQ截图未命名.jpg

评分

参与人数 1三维币 +3 收起 理由
2005llnn + 3 参与鼓励

查看全部评分

发表于 2009-2-28 11:39:30 | 显示全部楼层 来自: 中国辽宁抚顺
31.bak.jpg 交卷!!!!!!!!!!

评分

参与人数 1三维币 +3 收起 理由
2005llnn + 3 参与鼓励

查看全部评分

发表回复
您需要登录后才可以回帖 登录 | 注册

本版积分规则


Licensed Copyright © 2016-2020 http://www.3dportal.cn/ All Rights Reserved 京 ICP备13008828号

小黑屋|手机版|Archiver|三维网 ( 京ICP备2023026364号-1 )

快速回复 返回顶部 返回列表