QQ登录

只需一步,快速开始

登录 | 注册 | 找回密码

三维网

 找回密码
 注册

QQ登录

只需一步,快速开始

展开

通知     

全站
6天前
楼主: muhdi
收起左侧

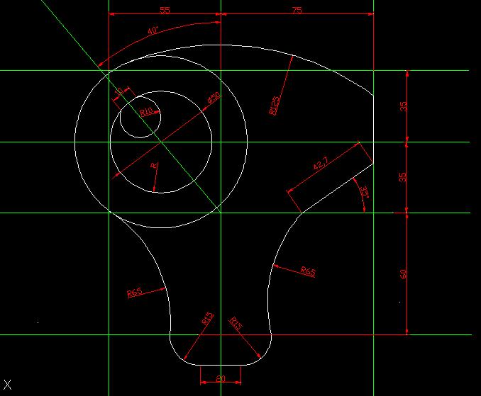
[练习题] 基础综合练习04

[复制链接]
发表于 2008-12-2 20:33:45 | 显示全部楼层 来自: 中国安徽蚌埠
勤学苦练1 o" ~' X+ B! q7 Q/ I2 z! ^
基础综合练习04.jpg

评分

参与人数 1三维币 +5 收起 理由
2005llnn + 5 很好

查看全部评分

发表于 2008-12-3 17:02:25 | 显示全部楼层 来自: 中国湖南长沙
说起来真不好意思,42.7那个尺寸做了我一个多小时
练习4.jpg

评分

参与人数 1三维币 +5 收起 理由
2005llnn + 5 很好

查看全部评分

发表于 2008-12-4 22:21:41 | 显示全部楼层 来自: 中国辽宁大连
请教一下  R125那个圆弧怎么画,一直找不齐约束条件
发表于 2008-12-9 16:29:02 | 显示全部楼层 来自: 中国上海
试了一下,还行吧,有几个地方要动一下脑子!
截图01.jpg

评分

参与人数 1三维币 +5 收起 理由
2005llnn + 5 很好

查看全部评分

发表于 2008-12-15 22:05:34 | 显示全部楼层 来自: 中国江苏无锡
......请问一下。。2004版  画圆没有  圆心-切点  怎么去定义R圆呢?! B+ ]3 Q4 X+ f/ |0 o7 L" @4 u
    想了半天都弄不明白。。。。请指教。。- \! D( M, b0 q& g( P1 q: M- |# j
   这个问题为难了我两天了。。。
发表于 2008-12-16 14:38:48 | 显示全部楼层 来自: 中国北京
请版主审阅
/ h; H! F" z- ?8 C4 i6 B& \* g" n  X- o2 E) y( j
[ 本帖最后由 cjh303557 于 2008-12-16 14:42 编辑 ]
未命名.JPG

评分

参与人数 1三维币 +5 收起 理由
2005llnn + 5 很好

查看全部评分

发表于 2008-12-17 18:45:48 | 显示全部楼层 来自: 中国江苏无锡

练习T4

想了两天。。用CAXA画了一次。。9 P( ]7 N  x  B. [+ r! Q
    然后才用AUTOCAD画出来。。瀑布汗
练习4.jpg

评分

参与人数 1三维币 +5 收起 理由
2005llnn + 5 很好

查看全部评分

发表于 2008-12-22 22:16:14 | 显示全部楼层 来自: 中国江苏苏州
4.jpg
7 ^, _6 r* a) _老师请指教

评分

参与人数 1三维币 +4 收起 理由
wang2003 + 4 鼓励参与

查看全部评分

发表于 2008-12-25 15:19:50 | 显示全部楼层 来自: 中国广西贺州
练习了. u& |5 j7 b- S; {% i
1.JPG

评分

参与人数 1三维币 +4 收起 理由
wang2003 + 4 鼓励参与

查看全部评分

发表于 2008-12-25 15:38:01 | 显示全部楼层 来自: 中国辽宁大连
基础综合练习04
基础综合练习04.jpg

评分

参与人数 1三维币 +4 收起 理由
wang2003 + 4 鼓励参与

查看全部评分

发表于 2008-12-29 20:46:27 | 显示全部楼层 来自: 中国上海
基础综合练习04.png

评分

参与人数 1三维币 +3 收起 理由
wang2003 + 3 参与鼓励

查看全部评分

发表于 2009-1-6 13:32:44 | 显示全部楼层 来自: 新加坡
请检阅!谢谢
练习4.JPG

评分

参与人数 1三维币 +3 收起 理由
2005llnn + 3 参与鼓励

查看全部评分

发表于 2009-1-7 11:49:12 | 显示全部楼层 来自: 中国福建厦门
呵呵 终于画出来了
QQ截图未命名.jpg

评分

参与人数 1三维币 +3 收起 理由
2005llnn + 3 参与鼓励

查看全部评分

发表于 2009-1-7 14:14:44 | 显示全部楼层 来自: 中国上海
交作业,请多多指教!
3 L# B2 Y; F1 \! {6 b谢谢大家!  d4 G- k- t: f+ i
未命名.JPG

评分

参与人数 1三维币 +3 收起 理由
2005llnn + 3 参与鼓励

查看全部评分

发表于 2009-2-15 21:27:19 | 显示全部楼层 来自: 中国广东江门
我来交作业!5 j6 O7 ?' |6 M# Z! n6 z
! n7 ]0 g8 j; R2 V8 l# h
[ 本帖最后由 hslhe 于 2009-2-15 21:31 编辑 ]
未命名.jpg

评分

参与人数 1三维币 +3 收起 理由
2005llnn + 3 参与鼓励

查看全部评分

发表于 2009-2-28 12:56:40 | 显示全部楼层 来自: 中国辽宁抚顺
44.bak.jpg 交卷!!!!!!

评分

参与人数 1三维币 +3 收起 理由
2005llnn + 3 参与鼓励

查看全部评分

发表于 2009-3-23 21:59:48 | 显示全部楼层 来自: 中国台湾
发表于 2009-4-12 14:08:59 | 显示全部楼层 来自: 中国广东广州
这题  53min
" |" \: M' X- q3 c1 A( X7 e! t; U8 L7 x/ k  P! i7 F
希望大家交作业的时候随便把自己做的时间打上吧    作为一种竞争也好参考也好 finish.gif

评分

参与人数 1三维币 +3 收起 理由
2005llnn + 3 参与鼓励

查看全部评分

发表于 2009-4-19 20:17:27 | 显示全部楼层 来自: 中国四川德阳

学做了个,也不知道对不对

: D: \# }- |' g0 H- o3 V
$ N) I( @# s4 }, P4 z
[ 本帖最后由 2005llnn 于 2009-4-21 12:29 编辑 ]
Drawing2.jpg

评分

参与人数 1三维币 +3 收起 理由
2005llnn + 3 参与鼓励

查看全部评分

发表于 2009-4-23 17:11:19 | 显示全部楼层 来自: 中国湖南常德
练习一下咯
练习.jpeg

评分

参与人数 1三维币 +3 收起 理由
2005llnn + 3 参与鼓励

查看全部评分

发表于 2009-4-28 20:19:49 | 显示全部楼层 来自: 中国广东东莞
确实不是对称,42.7那条线,用偏移,偏移距离是手动到正好与第2条线(高60)有交点,不知道对不对,是否有什么好的方法,高手解释下啊!
xi1.jpg

评分

参与人数 1三维币 +3 收起 理由
2005llnn + 3 参与鼓励

查看全部评分

发表于 2009-5-19 14:25:20 | 显示全部楼层 来自: 中国山东烟台
练习一下,基础练习4
% y0 O' q2 X$ A1 v; ? 基础练习4.jpg

评分

参与人数 1三维币 +3 收起 理由
2005llnn + 3 参与鼓励

查看全部评分

发表于 2009-5-21 15:58:01 | 显示全部楼层 来自: 中国浙江杭州

基础综合练习4

基础综合练习4
基础综合练习4.jpg

基础综合练习4.dwg

57.68 KB, 阅读权限: 100, 下载次数: 0

评分

参与人数 1三维币 +3 收起 理由
2005llnn + 3 参与鼓励

查看全部评分

发表于 2009-6-1 18:53:07 | 显示全部楼层 来自: 中国福建泉州
原帖由 绝对 于 2008-11-7 22:27 发表 http://www.3dportal.cn/discuz/images/common/back.gif
7 l* x# X4 v# J3 ]; H0 G我想了很久了,睡不好觉,觉得少R的尺寸,能提示一下吗?感谢!
  咋做R啊  我也想了好久啊
发表于 2009-6-5 12:39:19 | 显示全部楼层 来自: 中国浙江宁波
第一次来练习,好了 {9EE0301C-010C-4323-BD8D-F4CB6FB21890}.jpg 6 @" k; g8 j' q
8 U- l% I+ ?( P! j
[ 本帖最后由 tty0116 于 2009-6-8 10:53 编辑 ]

评分

参与人数 1三维币 +3 收起 理由
2005llnn + 3 参与鼓励

查看全部评分

发表回复
您需要登录后才可以回帖 登录 | 注册

本版积分规则


Licensed Copyright © 2016-2020 http://www.3dportal.cn/ All Rights Reserved 京 ICP备13008828号

小黑屋|手机版|Archiver|三维网 ( 京ICP备2023026364号-1 )

快速回复 返回顶部 返回列表