QQ登录

只需一步,快速开始

登录 | 注册 | 找回密码

三维网

 找回密码
 注册

QQ登录

只需一步,快速开始

展开

通知     

楼主: muhdi
收起左侧

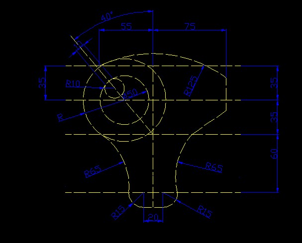
[练习题] 基础综合练习04

[复制链接]
发表于 2009-6-6 20:52:20 | 显示全部楼层 来自: 中国山东东营
练习了一下,不知怎么R不等于50,不知对不对
- |; U, U8 R2 @" t% u Drawing4.dwg (82.13 KB, 下载次数: 7)
Drawing4.jpg

评分

参与人数 1三维币 +3 收起 理由
2005llnn + 3 参与鼓励

查看全部评分

发表于 2009-6-15 21:21:05 | 显示全部楼层 来自: 中国福建泉州

回复 1# muhdi 的帖子

刚学不久,不知有没画错,有劳各位指正,谢谢." v, h2 l8 v8 ^, t/ L  {8 D

* R, D0 i) Y1 c* w[ 本帖最后由 wws218 于 2009-6-15 21:24 编辑 ]
04.jpg

评分

参与人数 1三维币 +3 收起 理由
2005llnn + 3 参与鼓励

查看全部评分

发表于 2009-6-25 14:46:57 | 显示全部楼层 来自: 中国北京

新手练习

我确定弧R125的圆心在对称轴上开始画的,确定了弧R125后别的就都确定了,不知道对不对,老师指导一下,谢谢。
CAD2P004.jpg

评分

参与人数 1三维币 +3 收起 理由
2005llnn + 3 参与鼓励

查看全部评分

发表于 2009-7-6 21:09:36 | 显示全部楼层 来自: 中国广东中山
参与练习一下
图形11.gif

评分

参与人数 1三维币 +3 收起 理由
2005llnn + 3 参与鼓励

查看全部评分

发表于 2009-7-18 15:47:40 | 显示全部楼层 来自: 中国福建莆田
不知道画得对不对+ X0 C. V* }! f( G+ x% B# k
未命名.jpg

评分

参与人数 1三维币 +3 收起 理由
2005llnn + 3 参与鼓励

查看全部评分

发表于 2009-7-29 21:37:32 | 显示全部楼层 来自: 中国江苏无锡
我也画一个。。。。
444.jpg

评分

参与人数 1三维币 +3 收起 理由
2005llnn + 3 参与鼓励

查看全部评分

发表于 2009-7-30 20:49:48 | 显示全部楼层 来自: 中国北京
R值是固定的么
基础综合练习4.jpg

Drawing4.dwg

102.5 KB, 下载次数: 3

评分

参与人数 1三维币 +2 收起 理由
2005llnn + 2 参与鼓励,R125位置错

查看全部评分

发表于 2009-7-30 21:58:10 | 显示全部楼层 来自: 中国北京
是上面那个正确还是这个,或者 ............ :funk: :mad: :mad: :L

Drawing4(1).dwg

73.22 KB, 下载次数: 5

发表于 2009-9-9 23:04:47 | 显示全部楼层 来自: 中国湖北荆州
少标了一个尺寸
作业 4.png

评分

参与人数 1三维币 +3 收起 理由
2005llnn + 3 参与鼓励

查看全部评分

发表于 2009-9-10 21:05:56 | 显示全部楼层 来自: 中国吉林吉林市
125的圆画的可能不对
QQ截图未命名.jpg

评分

参与人数 1三维币 +3 收起 理由
2005llnn + 3 参与鼓励

查看全部评分

发表于 2009-10-4 22:30:08 | 显示全部楼层 来自: 中国云南昆明
新手交作业了哈~会继续努力学习的~/ U: u8 S; g& _! [5 X

  Q7 V% y# w3 k& }* v, M JHMMA)C5RKRJBTBB(CKKP4O.jpg

评分

参与人数 1三维币 +3 收起 理由
2005llnn + 3 参与鼓励

查看全部评分

发表于 2009-10-5 13:05:20 | 显示全部楼层 来自: 中国广西梧州

可以不?

2009.dwg (88.23 KB, 下载次数: 3)
2009.jpg

评分

参与人数 1三维币 +3 收起 理由
2005llnn + 3 参与鼓励

查看全部评分

发表于 2009-10-9 14:56:44 | 显示全部楼层 来自: 中国北京

终于画完了,不知道对不

:L:L
4.jpg

评分

参与人数 1三维币 +3 收起 理由
2005llnn + 3 参与鼓励

查看全部评分

发表于 2009-12-13 19:03:42 | 显示全部楼层 来自: 中国山东济南

终于画好了

想了好久终于画好
发表于 2010-1-3 17:38:14 | 显示全部楼层 来自: 中国广东广州
玩上瘾了,哈哈1 D7 b1 f2 R% Z1 }# Q5 E# N9 n
感觉自己画的方法有点笨啊2 |- K; @1 S0 `6 o" W: O
有参考答案看不,看看自己差距在哪
3.jpg

评分

参与人数 1三维币 +3 收起 理由
2005llnn + 3 参与鼓励

查看全部评分

 楼主| 发表于 2010-2-19 15:55:40 | 显示全部楼层 来自: 中国台湾
本帖最后由 muhdi 于 2010-2-19 15:57 编辑 4 c& r- i  M. P: J2 F

% \  a$ Y" H0 K2 H2 V4 H回網友
7 p1 j& _9 u) E  ^         lw24k 8 U$ H1 N9 c4 J+ ^' F" Y3 O
         請問您基礎綜合練習04  R是怎麼確定的??謝謝!!

104.dwg

259.19 KB, 下载次数: 23

发表于 2010-2-21 13:52:16 | 显示全部楼层 来自: 中国浙江金华
试着画了一个。[img][/img]
发表于 2010-2-21 13:53:04 | 显示全部楼层 来自: 中国浙江金华
图片怎么贴上来的啊。。。
发表于 2010-2-27 18:24:45 | 显示全部楼层 来自: 中国广东肇庆
那个R是不是42.36啊
发表于 2010-5-24 14:45:29 | 显示全部楼层 来自: 中国河北秦皇岛
试着画了一个,不知道对不对?
发表于 2010-8-8 21:15:05 | 显示全部楼层 来自: 中国广东东莞
新手来指教
04.jpg

评分

参与人数 1三维币 +3 收起 理由
2005llnn + 3 参与鼓励

查看全部评分

发表于 2010-9-4 12:26:41 | 显示全部楼层 来自: 中国江苏镇江
刚学没几天的
图象 618x465.jpg

评分

参与人数 1三维币 +3 收起 理由
2005llnn + 3 参与鼓励

查看全部评分

发表于 2010-9-6 20:25:31 | 显示全部楼层 来自: 中国江苏南京
上图了,不是文件! 4.jpg

评分

参与人数 1三维币 +3 收起 理由
2005llnn + 3 参与鼓励

查看全部评分

发表于 2010-9-10 15:30:18 | 显示全部楼层 来自: 中国浙江宁波
本帖最后由 fu140226 于 2010-9-10 15:32 编辑 : z+ w9 _$ H3 G  m1 v) }& B8 p8 e
. C0 P0 L  V; C# t7 X
万岁,我终于画出来了。
1.jpg
1.jpg

评分

参与人数 1三维币 +3 收起 理由
2005llnn + 3 参与鼓励

查看全部评分

发表于 2010-11-17 14:37:25 | 显示全部楼层 来自: 中国江苏南京
交作业了,不知道对不对
QQ截图未命名4.png

评分

参与人数 1三维币 +3 收起 理由
2005llnn + 3 参与鼓励

查看全部评分

发表回复
您需要登录后才可以回帖 登录 | 注册

本版积分规则


Licensed Copyright © 2016-2020 http://www.3dportal.cn/ All Rights Reserved 京 ICP备13008828号

小黑屋|手机版|Archiver|三维网 ( 京ICP备2023026364号-1 )

快速回复 返回顶部 返回列表