QQ登录

只需一步,快速开始

登录 | 注册 | 找回密码

三维网

 找回密码
 注册

QQ登录

只需一步,快速开始

展开

通知     

查看: 3682|回复: 8
收起左侧

[求助] 多头内螺纹三维图如何画?要送加工中心加工的。

[复制链接]
发表于 2012-1-7 14:31:41 | 显示全部楼层 |阅读模式 来自: 中国浙江嘉兴

马上注册,结识高手,享用更多资源,轻松玩转三维网社区。

您需要 登录 才可以下载或查看,没有帐号?注册

x
本帖最后由 yxd7778205 于 2012-1-8 12:45 编辑
+ s, P. p, Q! c. Z/ T2 \7 X
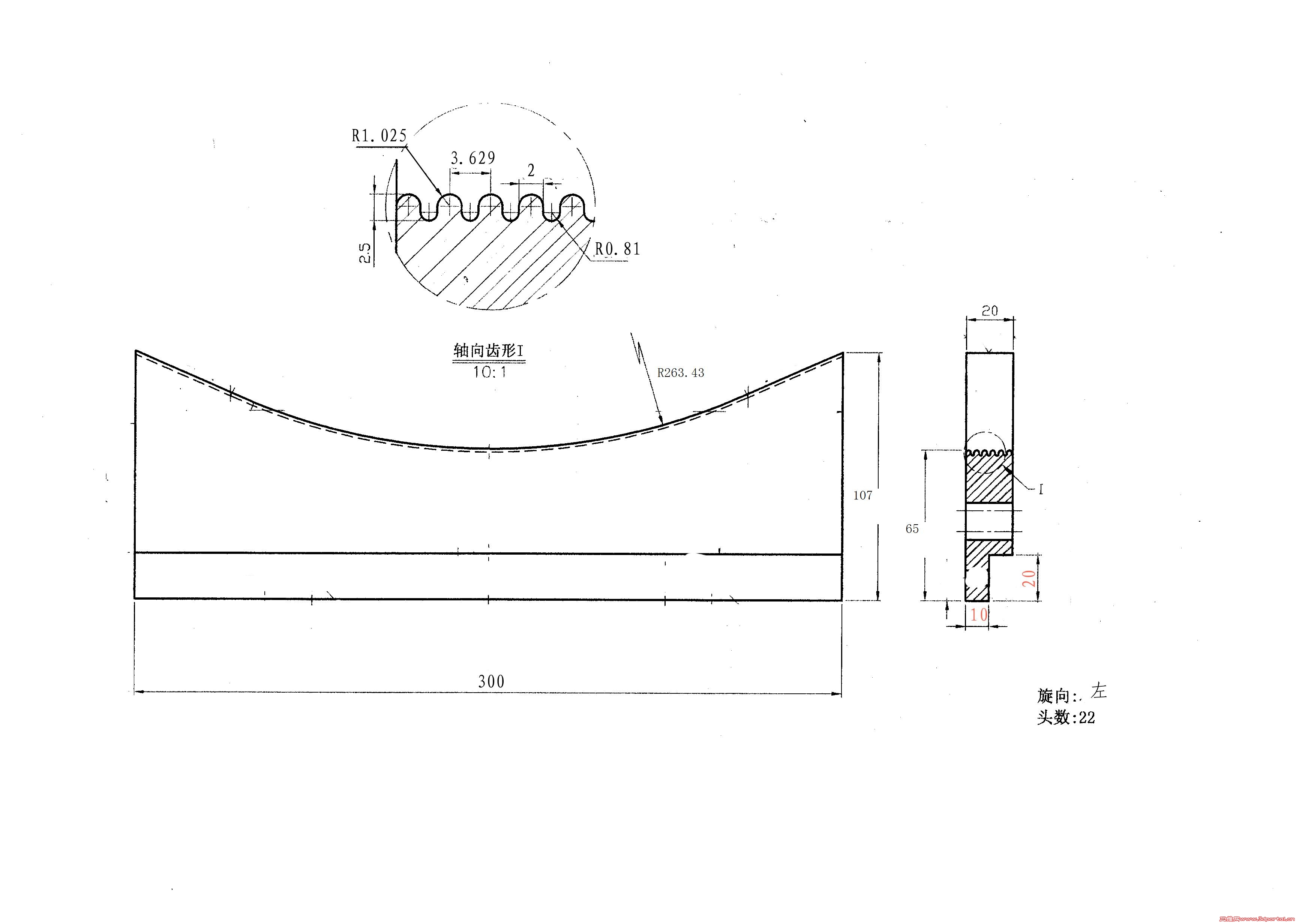
, \! z7 g0 X8 f) l1 f如题。画成三维的。 这是一块模具,,,螺纹是22头的。左旋。牙距3.629.具体看手工画的草图。。。% |8 a; Z; J4 Y7 ^: K9 J
要求用CAD2010或SW2008画(因小弟手上只有这2个画图软件)。。电子图纸要送去加工的,所以要求挺高的,尺寸要求正确。
8 f7 q4 i( [7 t* V) A  A$ e8 @请各位高手帮帮忙,,这次任务有点急。最好能有绘图过程,或者详细说明螺纹部分的画法,小弟对三维还是门外汉。。先谢过了。% g% A6 p4 g/ X' O. h1 F
8 R7 L$ ?# C$ r5 X. K" Q
可发我邮箱yxddxm@163.comQQ383713040@QQ.com
扫描时间 2012-1-7 13-53副本.jpg
发表于 2012-1-29 20:54:27 | 显示全部楼层 来自: 中国上海
给图不完全,螺纹无截面图(真实形状)还有.......
发表于 2012-3-20 13:18:06 | 显示全部楼层 来自: 中国北京
有会的木有
发表于 2012-3-29 14:21:18 | 显示全部楼层 来自: 中国北京
你下载个教程学学
发表于 2014-1-16 23:42:00 | 显示全部楼层 来自: 中国广东揭阳
头数有22吗?
发表于 2014-1-17 00:58:54 | 显示全部楼层 来自: 中国四川攀枝花
本帖最后由 pzhzs 于 2014-1-17 10:20 编辑
, X' w6 }' Q1 ^( d6 F7 F" U
* q# |# J1 F- K+ [, m, m多头螺纹就是把单头螺纹按头数的数量做一个圆周阵列而已,7 q# U, B& R" j7 h# p' [, h) A- d, ~
螺距3.629,螺距应该是每英寸 7 牙,25.4÷7=3.6285714285714285714285714285714( P3 U- y- j4 e1 C% K2 Q" h
22 头的,导程就是:25.4÷7×22=79.828571428571428571428571428571
. k; v5 q2 p7 W3 i5 W% p. l8 @2 E这个导程就是单头螺旋线的螺距,先扫描出一个头来,然后做圆周阵列;7 n' X) j4 ^5 U1 Z" X. e2 B
也可以用上面的螺旋线为路径,扫描草图画出多个牙型,一个扫描切除就完成了。
发表于 2014-1-17 10:52:01 | 显示全部楼层 来自: 中国四川攀枝花
试着画了一下:$ w$ z$ j. b6 L1 F: x+ G. P
用第一种方法画出来的牙型的齿距总有些误差,而导程上没有误差,估计是圆周整列的精度不够;
4 T! f9 i6 E  {8 u& A5 Z第二种方法画出来的齿距就没有问题,推荐用第二方法来画多头牙型。9 P/ Z3 j& c. S
快照30.jpg . M- o+ Y* w+ s& x0 \' f2 _2 m

/ n8 z) n# i7 w这里给楼主的图提出几点问题:) T% y$ q2 u- ]$ X! d, k
下图中,保证300、107、65这三个尺寸的基础上,
( y4 N  B. X: q  F" W; w0 v) c圆弧半径就为288.857,楼主图里是263.43,这误差就有些大了。
/ k$ g8 K6 D8 E8 b$ E 快照26.jpg & H& ~. }& J7 ?; |& q
快照27.jpg
, Q0 v  [' e6 B, z1 S$ h# N% [上图放大图中R 0.81 的尺寸,在保证螺距的情况下要和两条距离 2mm 的竖线相切,圆弧半径就要大于0.81。# y6 e: O2 f( S( X$ M
快照29.jpg 8 n# ^, }0 k. z
鉴于楼主用的是08版的sw,我用的是14版的,这里就不上part文件了,8 A2 u- M4 b1 I6 V/ [) P
上一个x_t格式的文件给楼主参考: 螺纹.rar (132.88 KB, 下载次数: 8)

评分

参与人数 1三维币 +3 收起 理由
阿帕奇 + 3

查看全部评分

发表于 2014-1-17 10:56:47 | 显示全部楼层 来自: 中国四川攀枝花
刚才仔细看了下贴子,是2012年的老帖了,我还以为是新帖呢5 Z, C$ ]9 X* l. A3 ?: j: w% L$ N
这活肯定早就干出来了:lol::lol:
发表于 2014-2-12 17:38:50 | 显示全部楼层 来自: 中国四川成都
很详细,十分感谢呀
发表回复
您需要登录后才可以回帖 登录 | 注册

本版积分规则


Licensed Copyright © 2016-2020 http://www.3dportal.cn/ All Rights Reserved 京 ICP备13008828号

小黑屋|手机版|Archiver|三维网 ( 京ICP备2023026364号-1 )

快速回复 返回顶部 返回列表