QQ登录

只需一步,快速开始

登录 | 注册 | 找回密码

三维网

 找回密码
 注册

QQ登录

只需一步,快速开始

展开

通知     

查看: 9730|回复: 15
收起左侧

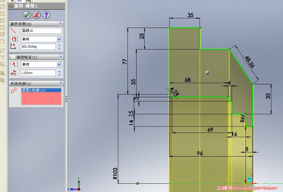
[求助] 为什么这个旋转特征中的那个”薄壁“老是去不掉。

[复制链接]
发表于 2012-12-26 01:07:21 | 显示全部楼层 |阅读模式 来自: 中国广东江门

马上注册,结识高手,享用更多资源,轻松玩转三维网社区。

您需要 登录 才可以下载或查看,没有帐号?注册

x
本帖最后由 keilei001 于 2012-12-26 01:14 编辑
; |4 q1 K+ h4 J3 q
% A; W3 A; c- u% |练习画一零件,用旋转基体来生成一个旋转特征,没想到硬是给加了个薄壁。
: f* X3 c9 u  I我以为是草图没封闭,反复检查哪里没封闭,检查草图合法性也没找到问题,但这个薄壁选项就是去不掉。
1 v# n! H: |/ N搞来搞去头都大了,当然可以重新画一个,但我想知道其中的原因,请教大家这究竟是怎么一回事。
$ j: @9 P/ m1 X# ^' R' S2 P9 m
- b9 Z6 n3 M3 E7 B2 b+ H; B) A3 t Snap1.jpg 0 U; G: c+ q$ W4 j/ G
) t, i: ]2 e+ T' z. P4 T1 A+ j- q6 @
Snap2.jpg 8 V0 P$ ^- H5 t# Y* {
6 R# I: G+ k# e1 E
Snap3.jpg 6 M6 z& n; |% ?. @/ O

/ r! s- C; A2 z: |& o0 O9 H07版源文件
7 E6 V- O- V0 t5 F( o6 V1 g9 R 有问题.rar (75.73 KB, 下载次数: 17)
发表于 2012-12-26 01:33:38 | 显示全部楼层 来自: 中国四川攀枝花
本帖最后由 pzhzs 于 2012-12-26 01:35 编辑
& D0 l& q/ E/ ~+ ~7 ]
  p3 V7 j3 V3 B( o: ?% G2013版里,直接利用草图1就能做出旋转特征,一点问题都没有。. |% A" u& t4 Q3 h& y+ v* f" m
快照1.png
9 V2 M' q) {/ V  q  v 快照2.png
; U) j* S' ]" Q
 楼主| 发表于 2012-12-26 01:54:47 | 显示全部楼层 来自: 中国广东江门
pzhzs 发表于 2012-12-26 01:33 static/image/common/back.gif
8 j0 F6 l! i4 m5 Y, C2013版里,直接利用草图1就能做出旋转特征,一点问题都没有。

& Y5 ~/ f) Q/ C# C; W, Z& i0 q9 O. d$ J请问你是在我原图里改的还是另建新零件没问题的呢?: h; A1 w* @9 i0 y$ K7 b1 F
我在2012打开文件还是去不了薄壁,但把草图复制到新零件中却没问题,这究竟是怎么回事?难道原图不能修改吗?
$ j, H3 ]/ w9 B- M, d, a' w8 I- v+ l2 J0 f1 x4 f1 Y3 \: x
Snap1.jpg
 楼主| 发表于 2012-12-26 02:11:15 | 显示全部楼层 来自: 中国广东江门
本帖最后由 keilei001 于 2012-12-26 02:12 编辑 : T7 z% r2 G+ o
4 r9 `+ O. `% t
我想大家画图都追求效率的,在按旋转基体时这个薄壁没任何提示,如果不注意看是很容易疏忽的。) c* r2 ^0 `. G
如果在这个特征上做了其他后续的特征,修改不了的话岂不是要推倒重来?就算能修改也要改其他特征的基准面,麻烦也大大的。
发表于 2012-12-26 02:24:42 | 显示全部楼层 来自: 新西兰
那是因為薄壁特徵被打開了,一旦打開後就無法更改,除非將特徵刪除重新建立。! ?$ `2 o6 K9 P6 D0 y9 l
1 F8 n, U1 ~9 ^
你的草圖沒問題。' z  _  c; `+ j5 J( B. v
) n* g0 ?) Y; w* I& E- U1 x
( ^- {! u* }5 ^. F, ^, f
03.png 1 ]- |' t3 `  `, ]

2 H/ m/ l- F2 y% h3 s
发表于 2012-12-26 08:10:31 | 显示全部楼层 来自: 中国江苏无锡
你的草图很好,一切正常。
; p' Y3 a- `  h) I1 L5 Y" d  x 20.有问题.gif
  P2 _  B2 e8 S7 _! R: P8 Q9 z. z. Y4 `/ U3 i* s" M
7 G" W' d9 W/ g2 W0 P7 _4 L
发表于 2012-12-26 08:26:00 | 显示全部楼层 来自: 中国广东东莞
SW真强啊!
发表于 2012-12-26 10:02:08 | 显示全部楼层 来自: 中国浙江温州
5楼的说明是对的,因为之前选过薄壁了,只需将特征删除,重新旋转就可以了!
发表于 2012-12-26 11:17:58 | 显示全部楼层 来自: 中国广东东莞
你草图定意太多改少就可
发表于 2012-12-26 11:18:58 | 显示全部楼层 来自: 中国安徽合肥
我常碰到,取消后下次还有。
发表于 2012-12-26 14:33:39 | 显示全部楼层 来自: 中国天津
没有问题啊 2010 直接打开了
kankan.JPG
发表于 2012-12-26 15:52:31 | 显示全部楼层 来自: 中国广东深圳
可以说是个软件BUG。
 楼主| 发表于 2012-12-27 11:40:30 | 显示全部楼层 来自: 中国广东江门
ugforrest 发表于 2012-12-26 15:52 static/image/common/back.gif
2 K+ r: s  V1 P可以说是个软件BUG。
: G! [; ?% U7 u$ P3 U
应该加个提示:: U  A1 f. {9 Z. B6 f4 \/ h; ?& {
该轮廓是开环,是否生成薄壁特征?
 楼主| 发表于 2012-12-27 14:07:28 | 显示全部楼层 来自: 中国广东江门
寂静天花板 发表于 2012-12-27 13:31 static/image/common/back.gif, ~) f8 p. |, F  e6 a
为什么要提示,生成薄壁特征也是合乎程序设计的,程序只对违反设定规则的建模有提示的,客户需不需要,那 ...
3 Y2 o- u3 G* N# a- x3 p/ H2 p
3D软件不是吹嘘可以很方便地进行修改的吗?
4 x' M% ^$ }- {比如这图我出错了,我把草图修改后应该允许把这个薄壁去掉。$ P% l" v- |& Y! H1 y/ V" ?/ E  g
人都有疏忽大意的时候,我认为软件也要人性化,软件发展的必然趋势是软件适应人而不是人适应软件。
$ {6 \6 j: o+ V当然我刚学这软件,上面说的也许是谬论。
发表于 2012-12-27 14:56:13 | 显示全部楼层 来自: 中国广东东莞
是人用电腦.不是电腦用人
 楼主| 发表于 2012-12-27 21:37:26 | 显示全部楼层 来自: 中国广东江门
寂静天花板 发表于 2012-12-27 19:29 static/image/common/back.gif3 f6 r  `" N* l1 S0 ]
你马虎了是你的事,别忘了,软件叫计算机辅助设计,是辅助设计,你要不薄壁特征那是你的事,有人需要啊, ...
8 G* b1 }* ?  y. u
有道理,软件的BUG存在是合理的,也不必去改进,人是可以适应的。
发表回复
您需要登录后才可以回帖 登录 | 注册

本版积分规则


Licensed Copyright © 2016-2020 http://www.3dportal.cn/ All Rights Reserved 京 ICP备13008828号

小黑屋|手机版|Archiver|三维网 ( 京ICP备2023026364号-1 )

快速回复 返回顶部 返回列表